Description

69,76 m²
3 pièces
2 chambres
1 sdb

🏡 Pierre-Bénite – Grand T3 rénové de 69,76 m² – Résidentiel & lumineux

Situé dans un quartier résidentiel recherché les Jardins de Voltaire, au 1er étage d’une copropriété à taille humaine, propre et bien entretenue, venez découvrir ce bel appartement T3 entièrement rafraîchi pour vous.
✨ Atouts du bien :
Surface : 69,76 m²
Place de stationnement incluse
Garage possible en location
Cave de 5 m²
Cellier/séchoir privatif sur palier : rare et très pratique !

Idéal pour un jeune couple en premier achat, cet appartement a été remis au goût du jour :
Il ne restera que quelques éléments de cuisine à repeindre en blanc pour une finition parfaite — et nous avons le bon artisan pour vous accompagner si besoin.

🛋️ Espace de vie

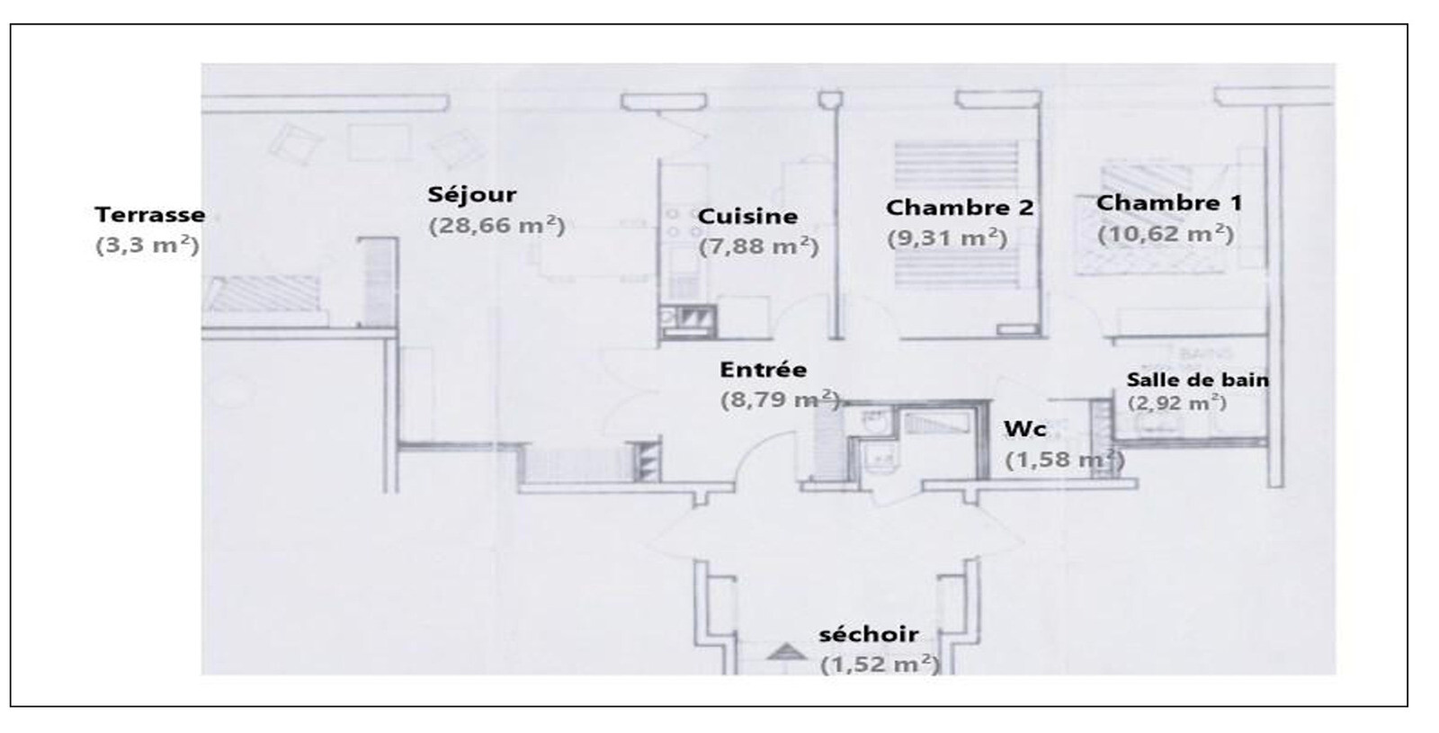
Séjour lumineux de 28,66 m²
Cuisine séparée de 7,88 m², avec possibilité d’ouverture → création d’un superbe espace de vie de + de 36 m²

🌙 Coin nuit

2 chambres avec placards intégrés
Salle de bains avec baignoire neuve et vasque
WC séparé

🏢 Parties communes
Au sous-sol, une grande salle polyvalente vous permet de stocker : vélos, motos, poussettes… ou même d’y faire un peu de gym !

🔥 Confort

Chauffage collectif avec compteurs individuels

Eau froide incluse
➡️ Charges : environ 160 €/mois

📍 Emplacement idéal

Métro B – Saint-Genis-Laval Hôpitaux Sud (2023)
Oullins centre

Commerces, écoles et Hôpital Lyon Sud à proximité
💛 Un appartement fonctionnel, lumineux, bien placé et prêt à accueillir ses nouveaux propriétaires !

📞 Béatrix et Pascale vous attendent pour une visite
06 81 07 79 88 – 06 10 59 31 47


Les informations sur les risques auxquels ce bien est exposé sont disponibles sur le site Géorisques : www.georisques.gouv.fr

Caractéristiques

Honoraires charge
mandant
Type
appartement
État général
excellent
Environnement
centre ville
Disponibilité
immédiate
Construction
1970
Surface habitable
69,76 m²
Étage
1
Floor count
3
Nb. chambres
2
Nb. salles de bains
1
Nb. cuisines
1
Nb. parking
1
Nb. balcons
1
Types de cuisine
équipée
Chauffages
gaz
Chauffage collectif
Parking privé
Sous-sol
Cave
Tout à l'égout
Bien soumis au statut de la copropriété
Procédure en cours
aucune
Charges budget prévisionnel annuel
1 900,00 €
Nb. de logements
45
Nb. de lots
90
Taxe foncière
967,00 €

Télécharger le barème des honoraires

Localisation Oullins Pierre Benite, 69310

Pour des raisons de confidentialité, la géolocalisation de ce bien a été dégradée.

Tous les outils pour vos projets immobiliers

Découvrez Mon CID,

mon compagnon immobilier digital

Accès à toutes les ventes immobilières,

boussole à réalité augmentée,

tester le débit de votre futur achat,

calculatrice de mensualité, etc.

Application mobile disponible sur

En savoir plus

Plans

Performance énergétique

logement extrêmement performant
bâtiment performantpassoire énergétique
  • A< 70
  • B70 - 110
  • C110 - 180
  • D180 - 250240kWh/m².an40 *kg CO2/m².an
  • E250 - 330
  • F330 - 420
  • G> 420
logement extrêmement peu performant

* Dont émissions de gaz à effet de serre

peu d'émissions de CO2
  • A< 6
  • B6 - 11
  • C11 - 30
  • D30 - 5040kg CO2/m².an
  • E50 - 70
  • F70 - 100
  • G> 100
émissions de CO2 très importantes

Estimation des dépenses annuelles d'énergie pour un usage standard

entre 1 300 € et 1 900 € / an *

* Prix moyens des énergies indexés pour l'année 2021 (abonnement compris).

Simulation de prêt

(10% du prix du bien)
%
(taux moyen hors assurance)

Montant estimé

1020 € / mois *

* Calculs effectués sur la base d'un prêt à taux fixe de 3,31% sur une durée de 25 ans avec un apport de 10% et hors assurance. Le coût de l'assurance de prêt dépend du capital assuré, de votre âge, de la durée du prêt, du taux d'intérêt du prêt, de votre questionnaire de santé et/ou médical, et de votre profession. Les calculs et solutions indiqués ne revêtent aucun caractère contractuel et ne sont en aucun cas une offre de prêt. Seuls les banques et organismes de financement sont habilités à accorder un financement. Pour tout crédit immobilier, vous êtes protégés par un délai de réflexion de 10 jours. Aucun versement de quelque nature que ce soit ne peut être exigé d'un particulier avant l'obtention d'un ou de plusieurs prêts d'argent. L'achat est subordonné à l'obtention du prêt. S'il n'est pas obtenu, le vendeur doit rembourser les sommes versées. Un crédit vous engage et doit être remboursé. Vérifiez vos capacités de remboursement avant de vous engager.

Cette annonce vous intéresse ?

Prenez contact avec Béatrix Quesada-Pouzin (EI)

Béatrix Quesada-Pouzin

Agent commercial en immobilier immatriculé au RSAC de Lyon sous le n°754097350


ou

Autres annonces à découvrir...

Logo La Fédération de l'Immobilier

La Fédération de l’Immobilier by LF met à disposition des professionnels une structure éprouvée, alliant outils technologiques, formation et accompagnement de haut niveau. Une vision claire : partager nos ressources pour bâtir un immobilier plus solide, plus agile, plus humain

Coordonnées

La Fédération de l'Immobilier

(France)

Chaque Membre de la Fédération est juridiquement et financièrement indépendant.

Filtres SVG
Logo La Fédération de l'Immobilier Logo La Fédération de l'Immobilier La Fédération de l'Immobilier

En poursuivant votre navigation sur ce site, vous acceptez l'utilisation de Cookies pour mesurer l'audience de notre site.

En savoir plus