Description

165 m²
729 m²
7 pièces
4 chambres
1 garage
2 sdb

62223 Sainte-Catherine - Maison individuelle
Venez découvrir avec Olivier Dhulu La Fourmi Immo cette maison construite en 2005 sur une parcelle de 730m² située dans un quartier résidentiel prisé à 5km de la gare d’Arras, à proximité des axes autoroutiers, de tous les commerces et des établissements scolaires.
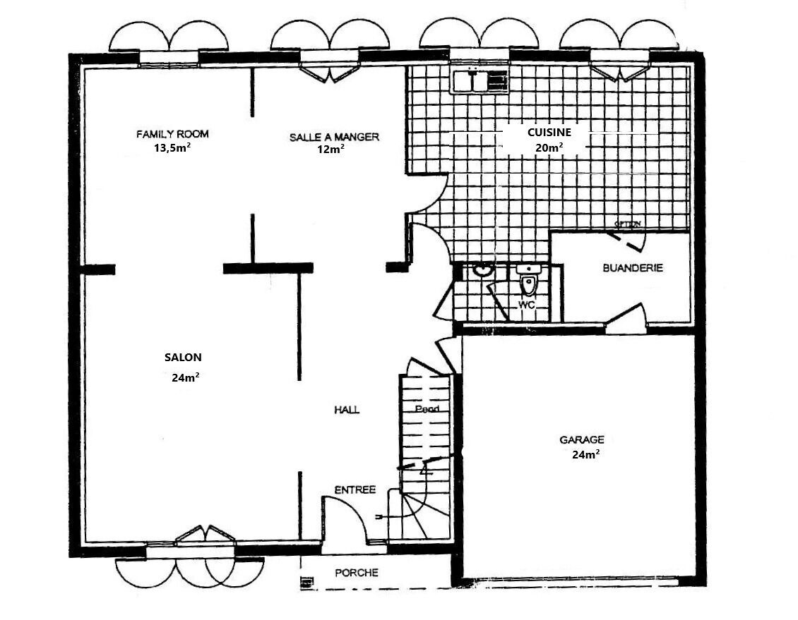
Elle se compose au rez-de-chaussée d'un hall d'entrée, d'une pièce de vie avec lumière traversante de 50m², d'une cuisine aménagée et équipée de 20m², d'une buanderie et de toilettes.
À l'étage, le hall de nuit distribue une suite parentale de 32m², 2 chambres de 12,5m² et 11m² avec penderies, d'un bureau de 9,5m² idéal pour le télétravail, d'une salle de bains et de toilettes.
À l'extérieur un jardin entièrement clos et sa terrasse en bois et un garage de 24m².

Les informations sur les risques auxquels ce bien est exposé sont disponibles sur le site Géorisques : www.georisques.gouv.fr

Caractéristiques

Prix hors honoraires d'agence
304 000,00 €
Honoraires charge
acquéreur
Pourcentage à la charge de l'acquéreur
3,62%
Type
maison
État général
bon
Environnement
lotissement
Disponibilité
à l'acte
Construction
2005
Surface terrain
729 m²
Surface habitable
165 m²
Nb. chambres
4
Nb. salles de bains
2
Nb. cuisines
1
Nb. garages
1
Nb. parking
2
Types de cuisine
équipée et aménagée
Chauffages
gaz
Terrasse
Tout à l'égout
Taxe foncière
1 615,00 €

Télécharger le barème des honoraires

Tous les outils pour vos projets immobiliers

Découvrez Mon CID,

mon compagnon immobilier digital

Accès à toutes les ventes immobilières,

boussole à réalité augmentée,

tester le débit de votre futur achat,

calculatrice de mensualité, etc.

Application mobile disponible sur

En savoir plus

Performance énergétique

logement extrêmement performant
bâtiment performantpassoire énergétique
  • A< 70
  • B70 - 110
  • C110 - 180110kWh/m².an22 *kg CO2/m².an
  • D180 - 250
  • E250 - 330
  • F330 - 420
  • G> 420
logement extrêmement peu performant

* Dont émissions de gaz à effet de serre

peu d'émissions de CO2
  • A< 6
  • B6 - 11
  • C11 - 3022kg CO2/m².an
  • D30 - 50
  • E50 - 70
  • F70 - 100
  • G> 100
émissions de CO2 très importantes

Estimation des dépenses annuelles d'énergie pour un usage standard

entre 1 270 € et 1 770 € / an *

* Prix moyens des énergies indexés pour l'année 2022 (abonnement compris).

Déjà vendu !

par Olivier Dhulu (EI)

Olivier Dhulu

Agent commercial en immobilier immatriculé au RSAC de ARRAS sous le n°834463093

Logo La Fédé de l'Immo

La Fédé de l’Immo rassemble des agences immobilières indépendantes qui ont choisi d’adhérer à un modèle plus collaboratif, plus puissant et plus moderne. Ici, chaque agence reste indépendante. Mais aucune n’est isolée. En rejoignant La Fédé de l’Immo, les agences mutualisent leurs outils, leur visibilité et leurs opportunités, tout en conservant leur identité locale.

Coordonnées du siège

La Fédé de l'Immo

(France)

Chaque Membre de la Fédération est juridiquement et financièrement indépendant.

Filtres SVG
Logo La Fédé de l'Immo Logo La Fédé de l'Immo La Fédé de l'Immo

En poursuivant votre navigation sur ce site, vous acceptez l'utilisation de Cookies pour mesurer l'audience de notre site.

En savoir plus