Description

85 m²
4 pièces
2 chambres
1 garage
1 sdb

Saint Maur des Fossés- Quartier Adamville -à 10 mn à pieds du RER Saint Maur le Parc ou Saint Maur Créteil- A proximité des commerces, du marché et des écoles:
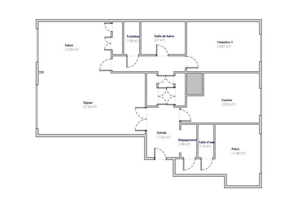
Appartement lumineux de 84,64 m2 / 4P, situé dans une résidence de standing des années 70, au calme et avec gardien, composé d'une entrée desservant 1 double séjour de 33 m2 avec accès terrasse exposée Sud et vue sur Parc Paysager, une cuisine indépendante récente, 2 chambres, une salle de bains, 1 salle d'eau, WC séparés.
2 caves et un box fermé en sous-sol viennent compléter ce bien. Possibilité d'une 2ème place de stationnement privative en sus. Résidence recherchée dans un secteur privilégié, à proximité de la future ligne de Metro 15.
Beaucoup de potentiel, une visite fera le reste!






Les informations sur les risques auxquels ce bien est exposé sont disponibles sur le site Géorisques : www.georisques.gouv.fr

Caractéristiques

Honoraires charge
mandant
Type
appartement
État général
à rafraîchir
Environnement
urbain
Orientation
Sud
Disponibilité
à l'acte
Construction
1970
Surface habitable
85 m²
Floor count
4
Nb. chambres
2
Nb. salles de bains
1
Nb. salles d'eau
1
Nb. cuisines
1
Nb. garages
1
Types de cuisine
équipée
Chauffages
électricité
Chauffage collectif
Cave
Ascenseur
Terrasse
Concierge
Tout à l'égout
Bien soumis au statut de la copropriété
Procédure en cours
aucune
Charges budget prévisionnel annuel
4 920,00 €
Nb. de logements
54
Nb. de lots
162

Télécharger le barème des honoraires

Localisation Saint Maur, 94100

Pour des raisons de confidentialité, la géolocalisation de ce bien a été dégradée.

Tous les outils pour vos projets immobiliers

Découvrez Mon CID,

mon compagnon immobilier digital

Accès à toutes les ventes immobilières,

boussole à réalité augmentée,

tester le débit de votre futur achat,

calculatrice de mensualité, etc.

Application mobile disponible sur

En savoir plus

Performance énergétique

logement extrêmement performant
bâtiment performantpassoire énergétique
  • A< 70
  • B70 - 110
  • C110 - 180
  • D180 - 250
  • E250 - 330
  • F330 - 420407kWh/m².an13 *kg CO2/m².anLogement à consommation énergétique excessive
  • G> 420
logement extrêmement peu performant

* Dont émissions de gaz à effet de serre

peu d'émissions de CO2
  • A< 6
  • B6 - 11
  • C11 - 3013kg CO2/m².an
  • D30 - 50
  • E50 - 70
  • F70 - 100
  • G> 100
émissions de CO2 très importantes

Estimation des dépenses annuelles d'énergie pour un usage standard

entre 2 110 € et 2 900 € / an *

* Prix moyens des énergies indexés pour l'année 2021 (abonnement compris).

Déjà vendu !

par Caroline Bouffet (EI)

Caroline Bouffet

Agent commercial en immobilier immatriculé au RSAC de BOBIGNY sous le n°898348354

Logo La Fédération de l’Immobilier

La Fédé de l’Immo rassemble des agences immobilières indépendantes qui ont choisi d’adhérer à un modèle plus collaboratif, plus puissant et plus moderne. Ici, chaque agence reste indépendante. Mais aucune n’est isolée. En rejoignant La Fédé de l’Immo, les agences mutualisent leurs outils, leur visibilité et leurs opportunités, tout en conservant leur identité locale.

Coordonnées du siège

La Fédération de l’Immobilier
34 avenue des Champs Elysées
Paris, 75008 (France)
+33 3 88 62 97 69
contact@lafede.immo

Chaque Membre de la Fédération est juridiquement et financièrement indépendant.

Filtres SVG
Logo La Fédération de l’Immobilier Logo La Fédération de l’Immobilier La Fédération de l’Immobilier

En poursuivant votre navigation sur ce site, vous acceptez l'utilisation de Cookies pour mesurer l'audience de notre site.

En savoir plus