Description

58 m²
24 m²
3 pièces
2 chambres

Lyon 3, à proximité de la place Rouget de l’Isle.
Appartement représentant la moitié d'une maison composée de 2 appartements (possibilité d'acquérir la maison en entier).
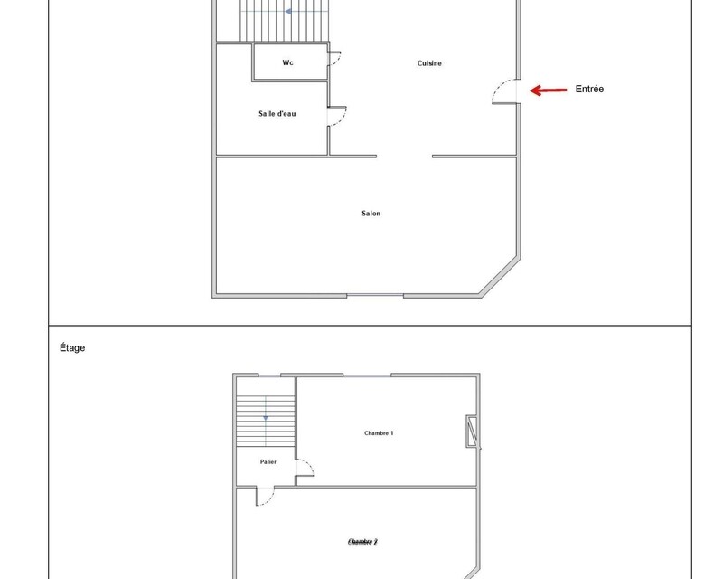
Je vous propose cet appartement en duplex d’environ 58,95 m² carrez, avec une courette et une cave d’environ 20,63 m².
Emplacement idéal ! Dans une rue calme. Proche de toutes commodités (commerces, transports, écoles, etc.).
Idéal investisseur. À rénover.
Possibilité d’acheter, en sus, un deuxième duplex d’environ 69,67 m², avec une courette et une cave d’environ 36,24 m².
Ces deux duplex forment l’ensemble des lots d’une seule et même maison de ville.
Excellente opportunité, rare.
Pour plus de précision ou pour une visite, n’hésitez pas à me contacter.

Les informations sur les risques auxquels ce bien est exposé sont disponibles sur le site Géorisques : www.georisques.gouv.fr

Caractéristiques

Honoraires charge
mandant
Type
duplex
État général
bon
Environnement
urbain
Disponibilité
à l'acte
Construction
1955
Surface totale
58 m²
Surface terrain
24 m²
Surface habitable
58 m²
Nb. chambres
2
Nb. salles d'eau
1
Nb. cuisines
1
Chauffages
gaz
Sous-sol
Cave
Tout à l'égout
Bien soumis au statut de la copropriété
Procédure en cours
aucune
Charges budget prévisionnel annuel
0,00 €
Nb. de logements
2
Nb. de lots
4

Télécharger le barème des honoraires

Localisation Lyon 3, 69003

Pour des raisons de confidentialité, la géolocalisation de ce bien a été dégradée.

Tous les outils pour vos projets immobiliers

Découvrez Mon CID,

mon compagnon immobilier digital

Accès à toutes les ventes immobilières,

boussole à réalité augmentée,

tester le débit de votre futur achat,

calculatrice de mensualité, etc.

Application mobile disponible sur

En savoir plus

Performance énergétique

logement extrêmement performant
bâtiment performantpassoire énergétique
  • A< 70
  • B70 - 110
  • C110 - 180
  • D180 - 250
  • E250 - 330
  • F330 - 420
  • G> 420603kWh/m².an20 *kg CO2/m².anLogement à consommation énergétique excessive
logement extrêmement peu performant

* Dont émissions de gaz à effet de serre

peu d'émissions de CO2
  • A< 6
  • B6 - 11
  • C11 - 3020kg CO2/m².an
  • D30 - 50
  • E50 - 70
  • F70 - 100
  • G> 100
émissions de CO2 très importantes

Estimation des dépenses annuelles d'énergie pour un usage standard

entre 2 130 € et 2 930 € / an *

* Prix moyens des énergies indexés pour l'année 2021 (abonnement compris).

Simulation de prêt

(10% du prix du bien)
%
(taux moyen hors assurance)

Montant estimé

1066 € / mois *

* Calculs effectués sur la base d'un prêt à taux fixe de 3,37% sur une durée de 25 ans avec un apport de 10% et hors assurance. Le coût de l'assurance de prêt dépend du capital assuré, de votre âge, de la durée du prêt, du taux d'intérêt du prêt, de votre questionnaire de santé et/ou médical, et de votre profession. Les calculs et solutions indiqués ne revêtent aucun caractère contractuel et ne sont en aucun cas une offre de prêt. Seuls les banques et organismes de financement sont habilités à accorder un financement. Pour tout crédit immobilier, vous êtes protégés par un délai de réflexion de 10 jours. Aucun versement de quelque nature que ce soit ne peut être exigé d'un particulier avant l'obtention d'un ou de plusieurs prêts d'argent. L'achat est subordonné à l'obtention du prêt. S'il n'est pas obtenu, le vendeur doit rembourser les sommes versées. Un crédit vous engage et doit être remboursé. Vérifiez vos capacités de remboursement avant de vous engager.

Cette annonce vous intéresse ?

Prenez contact avec Tarkan Bagdadi (EI)

Tarkan Bagdadi

Agent commercial en immobilier immatriculé au RSAC de Lyon sous le n°490103488


ou

Logo La Fédération de l’Immobilier

La Fédé de l’Immo rassemble des agences immobilières indépendantes qui ont choisi d’adhérer à un modèle plus collaboratif, plus puissant et plus moderne. Ici, chaque agence reste indépendante. Mais aucune n’est isolée. En rejoignant La Fédé de l’Immo, les agences mutualisent leurs outils, leur visibilité et leurs opportunités, tout en conservant leur identité locale.

Coordonnées du siège

La Fédération de l’Immobilier
34 avenue des Champs Elysées
Paris, 75008 (France)
+33 3 88 62 97 69
contact@lafede.immo

Chaque Membre de la Fédération est juridiquement et financièrement indépendant.

Filtres SVG
Logo La Fédération de l’Immobilier Logo La Fédération de l’Immobilier La Fédération de l’Immobilier

En poursuivant votre navigation sur ce site, vous acceptez l'utilisation de Cookies pour mesurer l'audience de notre site.

En savoir plus