Description

133 m²
805 m²
8 pièces
3 chambres
1 garage

59157 - Beauvois-en-Cambrésis - Longère avec dépendances
Venez découvrir avec Olivier Dhulu LF immo cette longère de 133m² et ses nombreuses dépendances bâties sur une parcelle de 805m².
Beauvois-en-Cambrésis est située à 3km de Caudry et à 13km de Cambrai. Vous trouverez sur la commune tous les commerces de proximité (boulangerie, boucherie, épicerie, pharmacie...) et deux écoles.
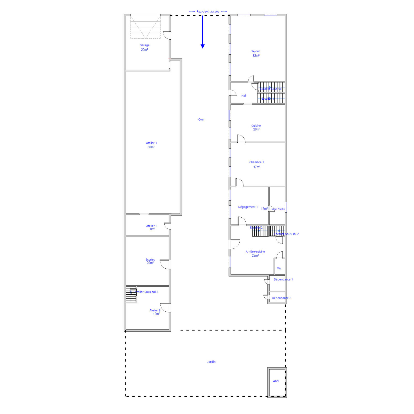
La longère se compose au rez-de-chaussée d'un hall d'entrée, d'un séjour de 32m², d'une cuisine de 20m², d’une chambre de 17m², d’un dégagement avec salle d’eau, d’une arrière cuisine et de toilettes et de 2 chambres de 15m² et d’un grenier à l'étage.
Les deux entrées et les deux cages d'escaliers de la maison, les nombreuses dépendances et les deux greniers offrent de nombreuses possibilité d'exploitation de ce bien.
Un garage avec porte motorisée et 3 caves viennent compléter ce bien. La maison est raccordée au tout à l'égout.
Ce bien a fait l'objet d'un audit énergétique.
Contactez-moi pour avoir accès à la visite virtuelle et mieux vous rendre compte des nombreuses possibilités d'exploitation.

Les informations sur les risques auxquels ce bien est exposé sont disponibles sur le site Géorisques : www.georisques.gouv.fr

Caractéristiques

Honoraires charge
mandant
Type
maison
État général
à rénover
Environnement
village
Disponibilité
à l'acte
Surface totale
243 m²
Surface terrain
805 m²
Surface habitable
133 m²
Nb. chambres
3
Nb. salles d'eau
1
Nb. cuisines
2
Nb. garages
1
Nb. parking
3
Chauffages
gaz
Cave
Tout à l'égout
Taxe foncière
1 156,00 €

Télécharger le barème des honoraires

Tous les outils pour vos projets immobiliers

Découvrez Mon CID,

mon compagnon immobilier digital

Accès à toutes les ventes immobilières,

boussole à réalité augmentée,

tester le débit de votre futur achat,

calculatrice de mensualité, etc.

Application mobile disponible sur

En savoir plus

Performance énergétique

logement extrêmement performant
bâtiment performantpassoire énergétique
  • A< 70
  • B70 - 110
  • C110 - 180
  • D180 - 250
  • E250 - 330
  • F330 - 420380kWh/m².an72 *kg CO2/m².anLogement à consommation énergétique excessive
  • G> 420
logement extrêmement peu performant

* Dont émissions de gaz à effet de serre

peu d'émissions de CO2
  • A< 6
  • B6 - 11
  • C11 - 30
  • D30 - 50
  • E50 - 70
  • F70 - 10072kg CO2/m².an
  • G> 100
émissions de CO2 très importantes

Estimation des dépenses annuelles d'énergie pour un usage standard

entre 3 090 € et 4 250 € / an *

* Prix moyens des énergies indexés pour l'année 2021 (abonnement compris).

Déjà vendu !

par Olivier Dhulu (EI)

Olivier Dhulu

Agent commercial en immobilier immatriculé au RSAC de ARRAS sous le n°834463093

Logo La Fédé de l'Immo

La Fédé de l’Immo rassemble des agences immobilières indépendantes qui ont choisi d’adhérer à un modèle plus collaboratif, plus puissant et plus moderne. Ici, chaque agence reste indépendante. Mais aucune n’est isolée. En rejoignant La Fédé de l’Immo, les agences mutualisent leurs outils, leur visibilité et leurs opportunités, tout en conservant leur identité locale.

Coordonnées du siège

La Fédé de l'Immo

(France)

Chaque Membre de la Fédération est juridiquement et financièrement indépendant.

Filtres SVG
Logo La Fédé de l'Immo Logo La Fédé de l'Immo La Fédé de l'Immo

En poursuivant votre navigation sur ce site, vous acceptez l'utilisation de Cookies pour mesurer l'audience de notre site.

En savoir plus