Description

48 m²
2 pièces
1 chambre

Agathe Guillot, La Fourmi immo vous propose un bel appartement dans une résidence de standing de 2005, sécurisée et très bien entretenue avec ascenseur, accès pour handicapés, digicode, interphone et un local à vélo.

proche de toutes commodités : de nombreux commerces et des écoles à proximité.

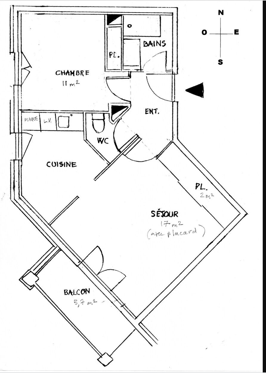
L'appartement de 48m2 (loi Carrez) possède un grand balcon face à la Seine sans vis à vis. Il se trouve au 1er étage sur 6. Il comprend : 1 entrée, 1 chambre avec dressing et armoire, 1 séjour avec un grand placard coulissant et un accès au balcon, cuisine aménagée et équipée, une salle d'eau et un Wc séparé. Le chauffage est individuel au gaz, orientation sud ouest, fenêtres en double vitrage. Local à vélo. Un parking au sous-sol avec la possibilité de raccorder une borne électrique (hub existant).

Bien à visiter rapidement.

DPE : (classe C énergie et D émission GES)
Charges mensuelles : 108€
Taxe foncière : 1394€
Les honoraires sont à la charge du vendeur.

Les informations sur les risques auxquels ce bien est exposé sont disponibles sur le site Géorisques : www.georisques.gouv.fr

Les informations sur les risques auxquels ce bien est exposé sont disponibles sur le site Géorisques : www.georisques.gouv.fr

Caractéristiques

Honoraires charge
mandant
Type
appartement
État général
excellent
Environnement
centre ville
Orientation
Sud
Disponibilité
immédiate
Construction
2005
Surface habitable
48 m²
Étage
1
Floor count
6
Nb. chambres
1
Nb. salles d'eau
1
Nb. cuisines
1
Nb. parking
1
Nb. balcons
1
Types de cuisine
aménagée
Chauffages
gaz
Accès handicapé
Ascenseur
Bien soumis au statut de la copropriété
Procédure en cours
aucune
Charges budget prévisionnel annuel
1 300,00 €
Nb. de logements
102
Nb. de lots
104
Taxe foncière
1 394,00 €

Télécharger le barème des honoraires

Tous les outils pour vos projets immobiliers

Découvrez Mon CID,

mon compagnon immobilier digital

Accès à toutes les ventes immobilières,

boussole à réalité augmentée,

tester le débit de votre futur achat,

calculatrice de mensualité, etc.

Application mobile disponible sur

En savoir plus

Performance énergétique

Logement économe
  • A< 51
  • B51 - 90
  • C91 - 150129
  • D151 - 230
  • E231 - 330
  • F331 - 450
  • G> 450
Logement énergivore

Consommations énergétiques

Consommations énergétiques (en énergie primaire) pour le chauffage, la production d'eau chaude sanitaire et le refroidissement.

Unité de mesure : kWh/m².an
Faible émission de GES
  • A< 6
  • B6 - 10
  • C11 - 20
  • D21 - 3524
  • E36 - 55
  • F56 - 80
  • G> 80
Forte émission de GES

Emissions de gaz à effet de serre (GES)

Emissions de gaz à effet de serre (GES) pour le chauffage, la production d'eau chaude sanitaire et le refroidissement.

Unité de mesure : kg CO2/m².an

Estimation des dépenses annuelles d'énergie pour un usage standard

environ 820 € / an *

* Prix moyens des énergies indexés pour l'année 2023 (abonnement compris).

Simulation de prêt

(10% du prix du bien)
%
(taux moyen hors assurance)

Montant estimé

1219 € / mois *

* Calculs effectués sur la base d'un prêt à taux fixe de 3,35% sur une durée de 25 ans avec un apport de 10% et hors assurance. Le coût de l'assurance de prêt dépend du capital assuré, de votre âge, de la durée du prêt, du taux d'intérêt du prêt, de votre questionnaire de santé et/ou médical, et de votre profession. Les calculs et solutions indiqués ne revêtent aucun caractère contractuel et ne sont en aucun cas une offre de prêt. Seuls les banques et organismes de financement sont habilités à accorder un financement. Pour tout crédit immobilier, vous êtes protégés par un délai de réflexion de 10 jours. Aucun versement de quelque nature que ce soit ne peut être exigé d'un particulier avant l'obtention d'un ou de plusieurs prêts d'argent. L'achat est subordonné à l'obtention du prêt. S'il n'est pas obtenu, le vendeur doit rembourser les sommes versées. Un crédit vous engage et doit être remboursé. Vérifiez vos capacités de remboursement avant de vous engager.

Cette annonce vous intéresse ?

Prenez contact avec Agathe Guillot (EI)

Agathe Guillot

Agent commercial en immobilier immatriculé au RSAC de PARIS sous le n°499473759


ou

Logo La Fédé de l'Immo

La Fédé de l’Immo rassemble des agences immobilières indépendantes qui ont choisi d’adhérer à un modèle plus collaboratif, plus puissant et plus moderne. Ici, chaque agence reste indépendante. Mais aucune n’est isolée. En rejoignant La Fédé de l’Immo, les agences mutualisent leurs outils, leur visibilité et leurs opportunités, tout en conservant leur identité locale.

Coordonnées du siège

La Fédé de l'Immo

(France)

Chaque Membre de la Fédération est juridiquement et financièrement indépendant.

Filtres SVG
Logo La Fédé de l'Immo Logo La Fédé de l'Immo La Fédé de l'Immo

En poursuivant votre navigation sur ce site, vous acceptez l'utilisation de Cookies pour mesurer l'audience de notre site.

En savoir plus