Description

168 m²
2839 m²
7 pièces
4 chambres
1 garage
2 sdb

A La Brède – Maison familiale avec un cadre naturel exceptionnel et un potentiel incroyable

À seulement 25 minutes de Bordeaux, découvrez cette maison pleine de charme, nichée au cœur d’un écrin de verdure. Avec son terrain de 2 839 m² piscinable, bordé par une zone naturelle préservée, elle vous offre un cadre unique avec beaucoup d'espace. Une opportunité rare à ne pas manquer à un prix très attractif pour le secteur.

Un espace de vie généreux et lumineux!
- Dès l’entrée, vous serez séduit par les volumes et la luminosité de cette maison
- Un séjour spacieux de 50 m², avec une belle hauteur sous plafond et une cheminée imposante
- Une cuisine spacieuse de 20 m², idéale pour des repas conviviaux
- 4 chambres dont une suite parentale de 19 m²
- Un garage et un atelier de 40 m², parfaits pour du rangement, un bureau, un studio indépendant ou une activité professionnelle
- Un extérieur exceptionnel et un potentiel immense

Le terrain de 2 839 m² offre un cadre de vie unique et un potentiel incroyable :
- Une immense terrasse de 150 m², à transformer en véritable espace de vie avec piscine, cuisine d’été, espace détente… laissez libre cours à vos envies
- Un environnement naturel et préservé, garantissant une tranquillité absolue.
- Des aménagements extérieurs à prévoir pour exploiter tout le potentiel de ce lieu unique (chiffrage disponible)

Une maison confortable et économique
- Pompe à chaleur installée en 2022
- Chauffe-eau thermodynamique solaire
- Maison pensée pour être économe en énergie et offrir un confort optimal tout au long de l’année
- Système d'aspiration centralisée
- Vide sanitaire

La Brède est une petite commune située à 25 mn de Bordeaux, 5 mn de l'A62 et dispose de toutes les commodités nécessaires au quotidien: médecins, écoles publiques et privées (de la maternelle au lycée), commerces de bouche de qualité, supermarchés, nombreuses activités sportives et associatives avec une vie communale animée.

Ne laissez pas passer cette opportunité unique. Cette maison a tout pour séduire et, à ce prix, elle ne restera pas longtemps sur le marché!

Contactez-moi dès maintenant pour organiser une visite et imaginer votre futur chez-vous.

Les informations sur les risques auxquels ce bien est exposé sont disponibles sur le site Géorisques : www.georisques.gouv.fr

Caractéristiques

Honoraires charge
mandant
Type
maison
État général
à rafraîchir
Environnement
campagne non-isolée
Orientation
Sud
Disponibilité
à l'acte
Construction
1998
Surface totale
210 m²
Surface terrain
2839 m²
Surface habitable
168 m²
Nb. chambres
4
Nb. salles de bains
2
Nb. salles d'eau
0
Nb. cuisines
1
Nb. garages
1
Nb. parking
2
Types de cuisine
équipée
Chauffages
électricité
Cave
Terrasse
Cheminée
Fosse septique (ANC)
Taxe foncière
1 800,00 €

Télécharger le barème des honoraires

Localisation La Brède, 33650

Pour des raisons de confidentialité, la géolocalisation de ce bien a été dégradée.

Tous les outils pour vos projets immobiliers

Découvrez Mon CID,

mon compagnon immobilier digital

Accès à toutes les ventes immobilières,

boussole à réalité augmentée,

tester le débit de votre futur achat,

calculatrice de mensualité, etc.

Application mobile disponible sur

En savoir plus

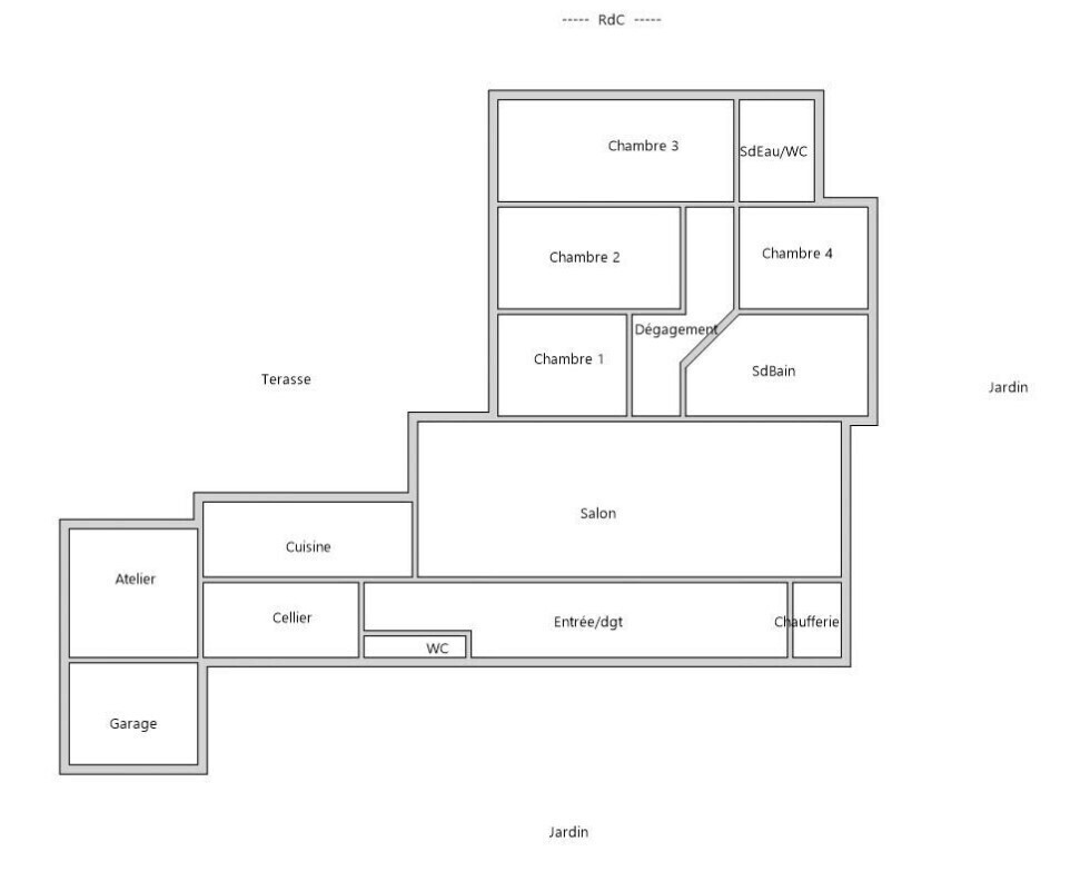
Plans

Détail des pièces

Entrée 14 m²
WC 1,5 m²
Cellier 8,2 m²
Cuisine 21 m²
Salon Séjour 50 m²
Dégagement 7,4 m²
Chambre 1 12 m²
Chambre 2 12 m²
Chambre 3 14 m²
Salle d'eau 4,9 m²
Chambre 4 11 m²
Salle de bain 6,8 m²
Chaufferie 5,1 m²
Atelier 22 m²
Garage 19 m²
Cave 26 m²

Performance énergétique

logement extrêmement performant
bâtiment performantpassoire énergétique
  • A< 70
  • B70 - 11098kWh/m².an3 *kg CO2/m².an
  • C110 - 180
  • D180 - 250
  • E250 - 330
  • F330 - 420
  • G> 420
logement extrêmement peu performant

* Dont émissions de gaz à effet de serre

peu d'émissions de CO2
  • A< 63kg CO2/m².an
  • B6 - 11
  • C11 - 30
  • D30 - 50
  • E50 - 70
  • F70 - 100
  • G> 100
émissions de CO2 très importantes

Estimation des dépenses annuelles d'énergie pour un usage standard

entre 1 000 € et 1 400 € / an *

* Prix moyens des énergies indexés pour l'année 2021 (abonnement compris).

Simulation de prêt

(10% du prix du bien)
%
(taux moyen hors assurance)

Montant estimé

2012 € / mois *

* Calculs effectués sur la base d'un prêt à taux fixe de 3,43% sur une durée de 25 ans avec un apport de 10% et hors assurance. Le coût de l'assurance de prêt dépend du capital assuré, de votre âge, de la durée du prêt, du taux d'intérêt du prêt, de votre questionnaire de santé et/ou médical, et de votre profession. Les calculs et solutions indiqués ne revêtent aucun caractère contractuel et ne sont en aucun cas une offre de prêt. Seuls les banques et organismes de financement sont habilités à accorder un financement. Pour tout crédit immobilier, vous êtes protégés par un délai de réflexion de 10 jours. Aucun versement de quelque nature que ce soit ne peut être exigé d'un particulier avant l'obtention d'un ou de plusieurs prêts d'argent. L'achat est subordonné à l'obtention du prêt. S'il n'est pas obtenu, le vendeur doit rembourser les sommes versées. Un crédit vous engage et doit être remboursé. Vérifiez vos capacités de remboursement avant de vous engager.

Cette annonce vous intéresse ?

Prenez contact avec Alice Dupont (EI)

Alice Dupont

Agent commercial en immobilier immatriculé au RSAC de Bordeaux sous le n°909831596

Développeur d'équipe Titan de bronze 2023/2024

ou

Autres annonces à découvrir...

Logo La Fédération de l’Immobilier

La Fédé de l’Immo rassemble des agences immobilières indépendantes qui ont choisi d’adhérer à un modèle plus collaboratif, plus puissant et plus moderne. Ici, chaque agence reste indépendante. Mais aucune n’est isolée. En rejoignant La Fédé de l’Immo, les agences mutualisent leurs outils, leur visibilité et leurs opportunités, tout en conservant leur identité locale.

Coordonnées du siège

La Fédération de l’Immobilier
34 avenue des Champs Elysées
Paris, 75008 (France)
+33 3 88 62 97 69
contact@lafede.immo

Chaque Membre de la Fédération est juridiquement et financièrement indépendant.

Filtres SVG
Logo La Fédération de l’Immobilier Logo La Fédération de l’Immobilier La Fédération de l’Immobilier

En poursuivant votre navigation sur ce site, vous acceptez l'utilisation de Cookies pour mesurer l'audience de notre site.

En savoir plus