Description

80 m²
180 m²
4 pièces
3 chambres
1 garage
piscine

Située à Vitrolles dans un quartier calme, vous serez séduit par cette maison mitoyenne de type 4 en R+1 d'environ 80m2 idéalement implantée à proximité des commerces, des axes autoroutiers, aéroport et gares,

Elle se compose au RDC d'une cuisine ouverte aménagée et équipée, d'un salon / salle à manger spacieux et lumineux et d'un wc.

A l'étage vous retrouverez 3 chambres avec dressing, une salle d'eau avec wc.

Coté extérieur, vous profiterez d'un jardin cosy, d'une terrasse carrelée, d'une piscine plein sud, et d'un garage avec mezzanine, le tout sur une parcelle d'environ 180m2

Aucun travaux, double vitrage et moustiquaires, climatisation réversible au rdc et à l'étage, à visiter sans tarder.

Les informations sur les risques auxquels ce bien est exposé sont disponibles sur le site Géorisques : www.georisques.gouv.fr

Caractéristiques

Honoraires charge
mandant
Type
maison
État général
bon
Environnement
lotissement
Orientation
Sud
Disponibilité
à l'acte
Construction
2010
Surface terrain
180 m²
Surface habitable
80 m²
Nb. chambres
3
Nb. salles de bains
0
Nb. salles d'eau
1
Nb. cuisines
1
Nb. garages
1
Types de cuisine
équipement de base et aménagée
Chauffages
électricité
Terrasse
Piscine
Tout à l'égout
Taxe foncière
1 513,00 €

Télécharger le barème des honoraires

Localisation Vitrolles, 13127

Pour des raisons de confidentialité, la géolocalisation de ce bien a été dégradée.

Tous les outils pour vos projets immobiliers

Découvrez Mon CID,

mon compagnon immobilier digital

Accès à toutes les ventes immobilières,

boussole à réalité augmentée,

tester le débit de votre futur achat,

calculatrice de mensualité, etc.

Application mobile disponible sur

En savoir plus

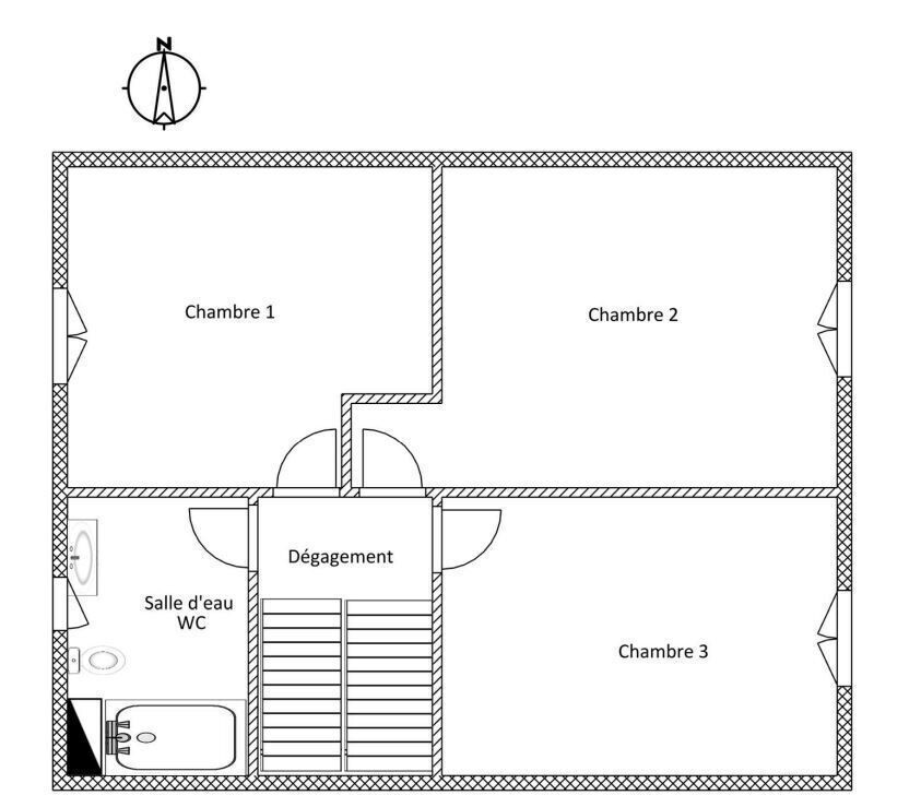
Plans

Détail des pièces

sejour/SAM/cuisine 40 m²
wc rdc 1,5 m²

chambre 1 9,2 m²
chambre 2 12 m²
chambre 3 10 m²
salle eau et wc 4,9 m²

garage 18 m²

Performance énergétique

logement extrêmement performant
bâtiment performantpassoire énergétique
  • A< 70
  • B70 - 110102kWh/m².an3 *kg CO2/m².an
  • C110 - 180
  • D180 - 250
  • E250 - 330
  • F330 - 420
  • G> 420
logement extrêmement peu performant

* Dont émissions de gaz à effet de serre

peu d'émissions de CO2
  • A< 63kg CO2/m².an
  • B6 - 11
  • C11 - 30
  • D30 - 50
  • E50 - 70
  • F70 - 100
  • G> 100
émissions de CO2 très importantes

Estimation des dépenses annuelles d'énergie pour un usage standard

entre 530 € et 780 € / an *

* Prix moyens des énergies indexés pour l'année 2021 (abonnement compris).

Déjà vendu !

par Valerie Jullian (EI)

Valerie Jullian

Agent commercial en immobilier immatriculé au RSAC de SALON DE PROVENCE sous le n°894343441

Autres annonces à découvrir...

Logo La Fédération de l'Immobilier

La Fédération de l’Immobilier by LF met à disposition des professionnels une structure éprouvée, alliant outils technologiques, formation et accompagnement de haut niveau. Une vision claire : partager nos ressources pour bâtir un immobilier plus solide, plus agile, plus humain

Coordonnées

La Fédération de l'Immobilier

(France)

Chaque Membre de la Fédération est juridiquement et financièrement indépendant.

Filtres SVG
Logo La Fédération de l'Immobilier Logo La Fédération de l'Immobilier La Fédération de l'Immobilier

En poursuivant votre navigation sur ce site, vous acceptez l'utilisation de Cookies pour mesurer l'audience de notre site.

En savoir plus