Description

90 m²
5 pièces
3 chambres

Emeline Beaudoux votre agent chez LF immo vous propose cette maison sur 90m2 habitable dans le quartier de Croix Saint Pierre.
Proche métro à 12mn à pieds, marché mardi, vendredi et dimanche, tous commerces sur la place de l'égalité.

Cette charmante maison de 90m² offrant 5 pièces spacieuses idéales pour une famille.

Cette propriété chaleureuse vous emmène dans un espace cocooning, la décoration et l'atmosphère très soigné par le propriétaire.

Profitez d'un espace de vie lumineux et convivial, idéal pour les moments de détente en famille. Située dans une rue à sens unique cette maison est parfaite pour ceux qui recherchent la tranquillité tout en restant proche des commodités. Ne manquez pas cette opportunité unique d'acquérir un bien de qualité à Croix.

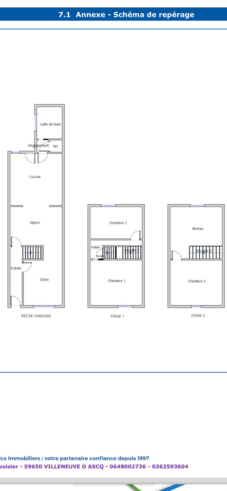
Elle se compose d'un salon-séjour en open-space sur la cuisine vous amenant vers la salle d'eau et une courette, il s'y trouve également un bureau.

Au 1er étage 2 pièces dont une belle chambre avec de beaux volumes, parquet d'origine revalorisé avec soin.
Au second 2 pièces passantes pouvant faire office de chambres, bureau? dressing? ou autre? à votre envie.

Contactez-moi dès maintenant pour organiser une visite!

Les plus de la maison :

De beaux volumes avec clarté
Une maison soigné avec gout
Le secteur proche toutes commodités
Un lieu paisible et apaisant

Les informations sur les risques auxquels ce bien est exposé sont disponibles sur le site Géorisques : www.georisques.gouv.fr

Caractéristiques

Honoraires charge
mandant
Type
maison
État général
bon
Environnement
urbain
Disponibilité
à l'acte
Construction
1930
Surface habitable
90 m²
Nb. chambres
3
Nb. salles d'eau
1
Nb. cuisines
1
Types de cuisine
équipée
Chauffages
gaz
Tout à l'égout
Taxe foncière
573,00 €

Télécharger le barème des honoraires

Localisation Croix, 59170

Pour des raisons de confidentialité, la géolocalisation de ce bien a été dégradée.

Tous les outils pour vos projets immobiliers

Découvrez Mon CID,

mon compagnon immobilier digital

Accès à toutes les ventes immobilières,

boussole à réalité augmentée,

tester le débit de votre futur achat,

calculatrice de mensualité, etc.

Application mobile disponible sur

En savoir plus

Plans

Performance énergétique

logement extrêmement performant
bâtiment performantpassoire énergétique
  • A< 70
  • B70 - 110
  • C110 - 180
  • D180 - 250
  • E250 - 330261kWh/m².an57 *kg CO2/m².an
  • F330 - 420
  • G> 420
logement extrêmement peu performant

* Dont émissions de gaz à effet de serre

peu d'émissions de CO2
  • A< 6
  • B6 - 11
  • C11 - 30
  • D30 - 50
  • E50 - 7057kg CO2/m².an
  • F70 - 100
  • G> 100
émissions de CO2 très importantes

Estimation des dépenses annuelles d'énergie pour un usage standard

entre 1 530 € et 2 120 € / an *

* Prix moyens des énergies indexés pour l'année 2023 (abonnement compris).

Déjà vendu !

par Emeline Beaudoux (EI)

Emeline Beaudoux

Agent commercial en immobilier immatriculé au RSAC de Lille sous le n°888415213

Logo La Fédération de l’Immobilier

La Fédé de l’Immo rassemble des agences immobilières indépendantes qui ont choisi d’adhérer à un modèle plus collaboratif, plus puissant et plus moderne. Ici, chaque agence reste indépendante. Mais aucune n’est isolée. En rejoignant La Fédé de l’Immo, les agences mutualisent leurs outils, leur visibilité et leurs opportunités, tout en conservant leur identité locale.

Coordonnées du siège

La Fédération de l’Immobilier
34 avenue des Champs Elysées
Paris, 75008 (France)
+33 3 88 62 97 69
contact@lafede.immo

Chaque Membre de la Fédération est juridiquement et financièrement indépendant.

Filtres SVG
Logo La Fédération de l’Immobilier Logo La Fédération de l’Immobilier La Fédération de l’Immobilier

En poursuivant votre navigation sur ce site, vous acceptez l'utilisation de Cookies pour mesurer l'audience de notre site.

En savoir plus