Description

95 m²
4 pièces
3 chambres
1 sdb

Emeline Beaudoux votre agent chez LF immo vous propose cette maison sur 95m2 habitable avec petite courette.
Dans une rue calme proche Avenue Gustave Delory, à sens unique, cette maison est idéale pour un 1er achat.

Non loin de l'église St Pierre, entourée de ses commerces, marché plusieurs fois dans la semaine et dimanche, à 600m du métro Croix mairie soit 8mn à pieds.

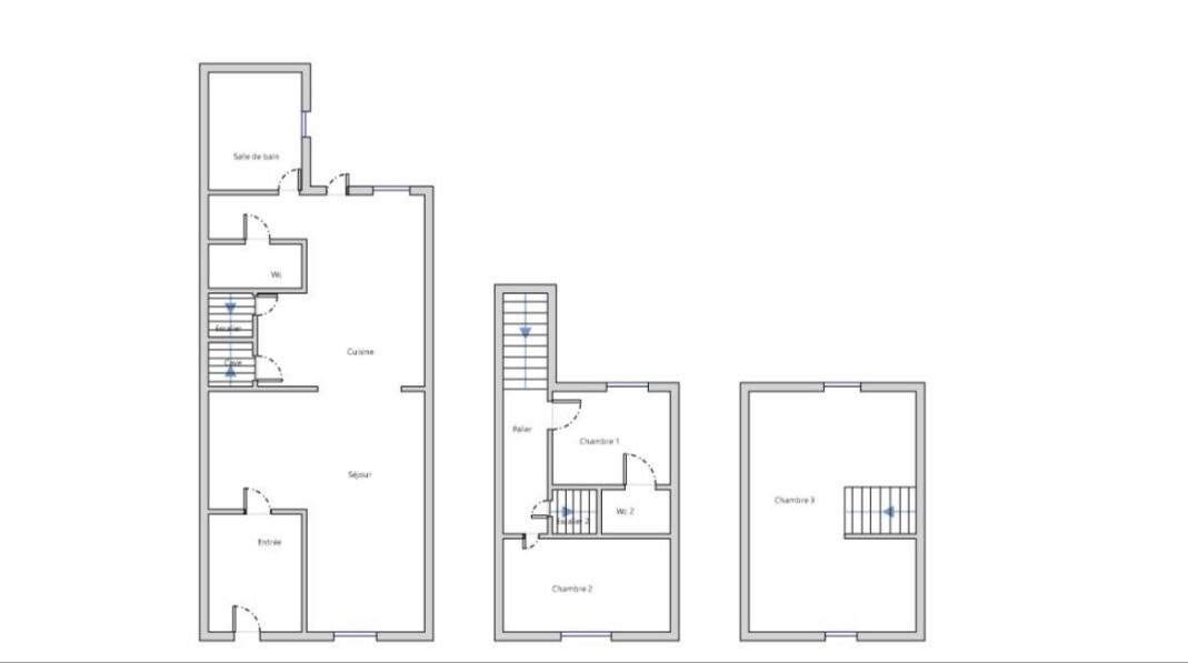
La maison se compose de 5 pièces, au au rez-de-chaussé un salon-séjour de 24m2 avec son carrelage d'origine avec cachet, une cuisine aménagée, une salle de bain, un toilette et une cour.

Au 1er vous y trouverez 2 pièces dont une chambre et l'autre avec un 2ème toilette pouvant servir de bureau.
Au 2nd 2 pièces passantes très large pouvant faire office de chambres.

Contactez-moi dès maintenant pour organiser une visite et découvrir par vous-même tout le potentiel de ce bien immobilier.

N'attendez plus, cette maison est faite pour vous !

Les informations sur les risques auxquels ce bien est exposé sont disponibles sur le site Géorisques : www.georisques.gouv.fr

Caractéristiques

Honoraires charge
mandant
Type
maison
État général
bon
Environnement
urbain
Disponibilité
à l'acte
Construction
1930
Surface habitable
95 m²
Nb. chambres
3
Nb. salles de bains
1
Nb. cuisines
1
Types de cuisine
aménagée
Chauffages
électricité et gaz
Cave
Taxe foncière
563,00 €

Télécharger le barème des honoraires

Localisation Croix, 59170

Pour des raisons de confidentialité, la géolocalisation de ce bien a été dégradée.

Tous les outils pour vos projets immobiliers

Découvrez Mon CID,

mon compagnon immobilier digital

Accès à toutes les ventes immobilières,

boussole à réalité augmentée,

tester le débit de votre futur achat,

calculatrice de mensualité, etc.

Application mobile disponible sur

En savoir plus

Performance énergétique

logement extrêmement performant
bâtiment performantpassoire énergétique
  • A< 70
  • B70 - 110
  • C110 - 180
  • D180 - 250211kWh/m².an33 *kg CO2/m².an
  • E250 - 330
  • F330 - 420
  • G> 420
logement extrêmement peu performant

* Dont émissions de gaz à effet de serre

peu d'émissions de CO2
  • A< 6
  • B6 - 11
  • C11 - 30
  • D30 - 5033kg CO2/m².an
  • E50 - 70
  • F70 - 100
  • G> 100
émissions de CO2 très importantes

Estimation des dépenses annuelles d'énergie pour un usage standard

entre 1 400 € et 1 940 € / an *

* Prix moyens des énergies indexés pour l'année 2024 (abonnement compris).

Déjà vendu !

par Emeline Beaudoux (EI)

Emeline Beaudoux

Agent commercial en immobilier immatriculé au RSAC de Lille sous le n°888415213

Logo La Fédération de l’Immobilier

La Fédé de l’Immo rassemble des agences immobilières indépendantes qui ont choisi d’adhérer à un modèle plus collaboratif, plus puissant et plus moderne. Ici, chaque agence reste indépendante. Mais aucune n’est isolée. En rejoignant La Fédé de l’Immo, les agences mutualisent leurs outils, leur visibilité et leurs opportunités, tout en conservant leur identité locale.

Coordonnées du siège

La Fédération de l’Immobilier
34 avenue des Champs Elysées
Paris, 75008 (France)
+33 3 88 62 97 69
contact@lafede.immo

Chaque Membre de la Fédération est juridiquement et financièrement indépendant.

Filtres SVG
Logo La Fédération de l’Immobilier Logo La Fédération de l’Immobilier La Fédération de l’Immobilier

En poursuivant votre navigation sur ce site, vous acceptez l'utilisation de Cookies pour mesurer l'audience de notre site.

En savoir plus