Description

215 m²
15000 m²
12 pièces
8 chambres
1 garage
piscine

À vendre : Magnifique corps de ferme et gîte de 215m² située à Bussière-Galant, 87230.
Cette propriété exceptionnelle offre un cadre de vie paisible et authentique, idéal pour les amoureux de la nature et de l'espace. avec un terrain de 15000m², classé PRL, offrant de nombreuses possibilités d'aménagement et d'exploitation.
Possibilité d'acquérir en plus 4ha comprenant un étang de 1.4 ha (aussi classés PRL)

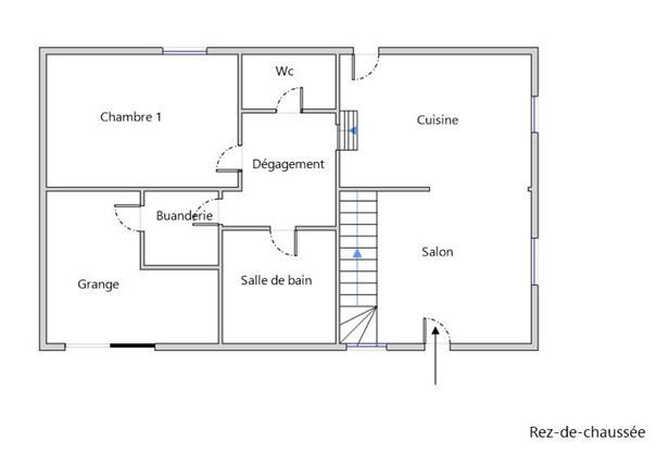
Cette ferme se compose de 12 pièces spacieuses et lumineuses,
Une partie habitation propose 5 chambres, salon, salle à manger avec cuisine ouverte.
Une partie gîte, 6/8 couchages, 3 chambres et salon, cuisine/salle à manger, buanderie. (combles et grange pour extension possible)
Le tout offrant un espace de vie confortable et chaleureux. Le chauffage est assuré principalement par un poêle à granulés par maison et un peu d'électrique d'appoint garantissent une ambiance cosy en toute saison.

L'emplacement de cette propriété est idéal pour ceux qui recherchent la tranquillité tout en restant proche des commodités, 7 min de Chalus et de Bussière-Galant, charmantes communes offrant un cadre de vie agréable et authentique, avec leurs paysages verdoyants et leurs traditions préservées sur les chemins de Richard Cœur de Lion.

Ne manquez pas cette opportunité unique d'acquérir une ferme d'exception dans un cadre enchanteur. Contactez-nous dès maintenant pour organiser une visite et découvrir tous les atouts de cette propriété rare sur le marché.

Les informations sur les risques auxquels ce bien est exposé sont disponibles sur le site Géorisques : www.georisques.gouv.fr

Caractéristiques

Honoraires charge
mandant
Type
ferme
État général
très bon
Environnement
campagne non-isolée
Orientation
Sud
Disponibilité
à l'acte
Construction
1941
Rénovation
2015
Surface terrain
15000 m²
Surface habitable
215 m²
Nb. chambres
8
Nb. salles de bains
1
Nb. salles d'eau
2
Nb. cuisines
2
Nb. garages
1
Nb. parking
2
Chauffages
électricité et poêle à granulés
Cave
Terrasse
Piscine
Fosse septique (ANC)
Taxe foncière
1 683,00 €

Télécharger le barème des honoraires

Localisation Bussiere-Galant, 87230

Pour des raisons de confidentialité, la géolocalisation de ce bien a été dégradée.

Tous les outils pour vos projets immobiliers

Découvrez Mon CID,

mon compagnon immobilier digital

Accès à toutes les ventes immobilières,

boussole à réalité augmentée,

tester le débit de votre futur achat,

calculatrice de mensualité, etc.

Application mobile disponible sur

En savoir plus

Performance énergétique

logement extrêmement performant
bâtiment performantpassoire énergétique
  • A< 70
  • B70 - 110
  • C110 - 180118kWh/m².an3 *kg CO2/m².an
  • D180 - 250
  • E250 - 330
  • F330 - 420
  • G> 420
logement extrêmement peu performant

* Dont émissions de gaz à effet de serre

peu d'émissions de CO2
  • A< 63kg CO2/m².an
  • B6 - 11
  • C11 - 30
  • D30 - 50
  • E50 - 70
  • F70 - 100
  • G> 100
émissions de CO2 très importantes

Estimation des dépenses annuelles d'énergie pour un usage standard

entre 750 € et 1 014 € / an *

* Prix moyens des énergies indexés pour l'année 2021 (abonnement compris).

Simulation de prêt

(10% du prix du bien)
%
(taux moyen hors assurance)

Montant estimé

1414 € / mois *

* Calculs effectués sur la base d'un prêt à taux fixe de 3,32% sur une durée de 25 ans avec un apport de 10% et hors assurance. Le coût de l'assurance de prêt dépend du capital assuré, de votre âge, de la durée du prêt, du taux d'intérêt du prêt, de votre questionnaire de santé et/ou médical, et de votre profession. Les calculs et solutions indiqués ne revêtent aucun caractère contractuel et ne sont en aucun cas une offre de prêt. Seuls les banques et organismes de financement sont habilités à accorder un financement. Pour tout crédit immobilier, vous êtes protégés par un délai de réflexion de 10 jours. Aucun versement de quelque nature que ce soit ne peut être exigé d'un particulier avant l'obtention d'un ou de plusieurs prêts d'argent. L'achat est subordonné à l'obtention du prêt. S'il n'est pas obtenu, le vendeur doit rembourser les sommes versées. Un crédit vous engage et doit être remboursé. Vérifiez vos capacités de remboursement avant de vous engager.

Cette annonce vous intéresse ?

Prenez contact avec Ludovic Cornillon (EI)

Ludovic Cornillon

Agent commercial en immobilier immatriculé au RSAC de LIMOGES sous le n°492413026


ou

Logo La Fédé de l'Immo

La Fédé de l’Immo rassemble des agences immobilières indépendantes qui ont choisi d’adhérer à un modèle plus collaboratif, plus puissant et plus moderne. Ici, chaque agence reste indépendante. Mais aucune n’est isolée. En rejoignant La Fédé de l’Immo, les agences mutualisent leurs outils, leur visibilité et leurs opportunités, tout en conservant leur identité locale.

Coordonnées du siège

La Fédé de l'Immo

(France)

Chaque Membre de la Fédération est juridiquement et financièrement indépendant.

Filtres SVG
Logo La Fédé de l'Immo Logo La Fédé de l'Immo La Fédé de l'Immo

En poursuivant votre navigation sur ce site, vous acceptez l'utilisation de Cookies pour mesurer l'audience de notre site.

En savoir plus