Description

50 m²
3 pièces
2 chambres
1 sdb


*Sous offre acceptée*En exclusivité, Catherine Boidron vous propose cet appartement de 50m2 (loi Carrez), au 2ème et dernier étage d'une petite copropriété, situé dans une rue paisible et dans un cadre verdoyant.
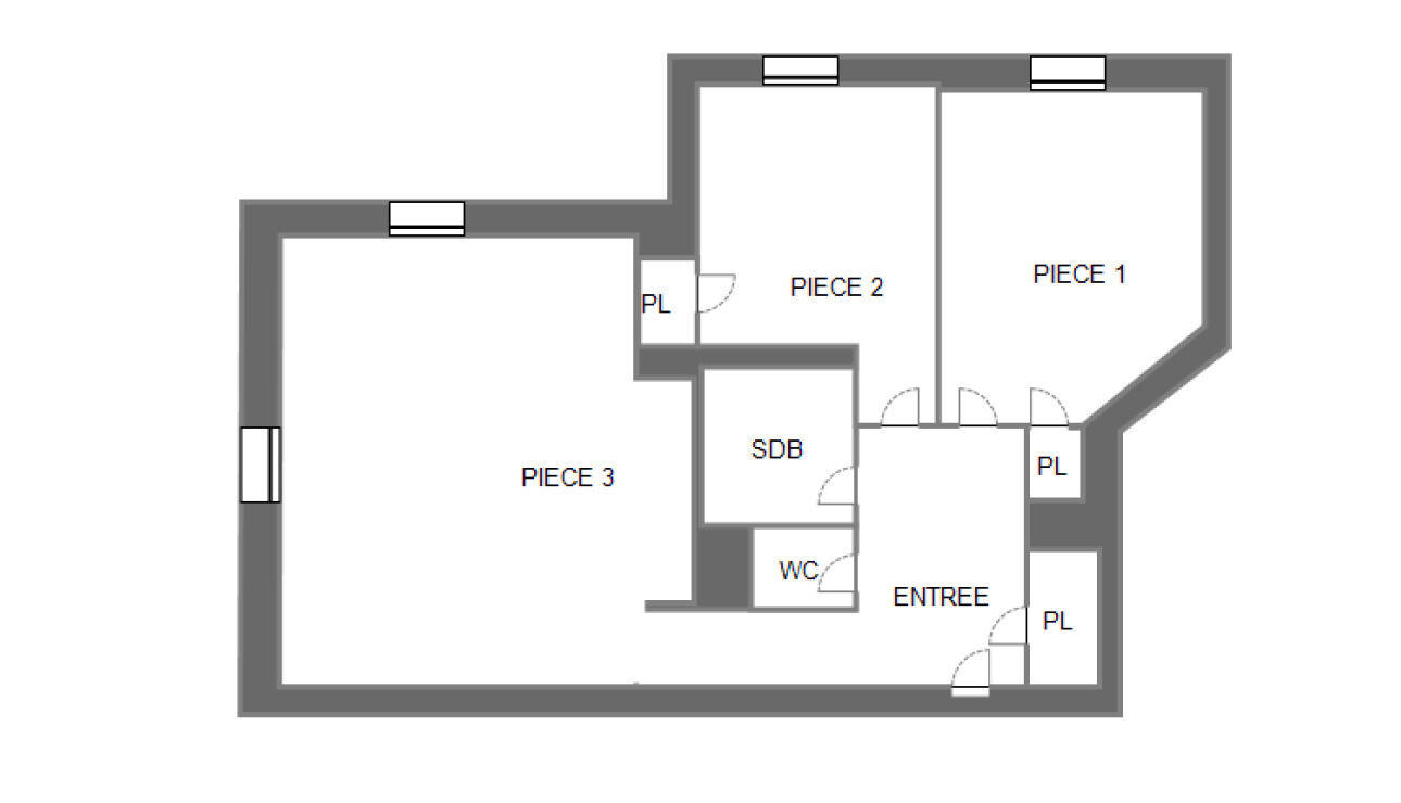
Ce bien vous enchantera par sa grande luminosité. Il se compose d'une entrée avec placard, desservant deux chambres avec placard chacune, une salle de bain avec baignoire, un WC et un couloir qui vous conduit dans une belle pièce de vie entièrement refaite, avec coin cuisine et salon donnant sur un agréable balcon et sur une vue dégagée.
Un local à vélos et une place de parking viennent compléter ce bien.
Parking automatisé et sécurisé.
Pas de travaux à prévoir!
A visiter sans tarder!

Les informations sur les risques auxquels ce bien est exposé sont disponibles sur le site Géorisques : www.georisques.gouv.fr

Caractéristiques

Honoraires charge
mandant
Type
appartement
État général
très bon
Environnement
clos privé
Disponibilité
à l'acte
Construction
2008
Surface habitable
50 m²
Étage
2
Floor count
2
Nb. chambres
2
Nb. salles de bains
1
Nb. balcons
1
Types de cuisine
kitchenette
Chauffages
électricité
Parking privé
Tout à l'égout
Attique
Bien soumis au statut de la copropriété
Procédure en cours
aucune
Charges budget prévisionnel annuel
1 400,00 €
Nb. de logements
43
Nb. de lots
45
Taxe foncière
745,00 €

Télécharger le barème des honoraires

Localisation Le Creusot, 71200

Tous les outils pour vos projets immobiliers

Découvrez Mon CID,

mon compagnon immobilier digital

Accès à toutes les ventes immobilières,

boussole à réalité augmentée,

tester le débit de votre futur achat,

calculatrice de mensualité, etc.

Application mobile disponible sur

En savoir plus

Détail des pièces

Séjour avec kitchenette 20 m²
extérieur

Performance énergétique

logement extrêmement performant
bâtiment performantpassoire énergétique
  • A< 70
  • B70 - 110
  • C110 - 180
  • D180 - 250226kWh/m².an7 *kg CO2/m².an
  • E250 - 330
  • F330 - 420
  • G> 420
logement extrêmement peu performant

* Dont émissions de gaz à effet de serre

peu d'émissions de CO2
  • A< 6
  • B6 - 117kg CO2/m².an
  • C11 - 30
  • D30 - 50
  • E50 - 70
  • F70 - 100
  • G> 100
émissions de CO2 très importantes

Estimation des dépenses annuelles d'énergie pour un usage standard

entre 910 € et 1 280 € / an *

* Prix moyens des énergies indexés pour l'année 2023 (abonnement compris).

Déjà vendu !

par Catherine Boidron (EI)

Catherine Boidron

Agent commercial en immobilier immatriculé au RSAC de CHALON SUR SAONE sous le n°483742722

Logo La Fédération de l’Immobilier

La Fédé de l’Immo rassemble des agences immobilières indépendantes qui ont choisi d’adhérer à un modèle plus collaboratif, plus puissant et plus moderne. Ici, chaque agence reste indépendante. Mais aucune n’est isolée. En rejoignant La Fédé de l’Immo, les agences mutualisent leurs outils, leur visibilité et leurs opportunités, tout en conservant leur identité locale.

Coordonnées du siège

La Fédération de l’Immobilier
34 avenue des Champs Elysées
Paris, 75008 (France)
+33 3 88 62 97 69
contact@lafede.immo

Chaque Membre de la Fédération est juridiquement et financièrement indépendant.

Filtres SVG
Logo La Fédération de l’Immobilier Logo La Fédération de l’Immobilier La Fédération de l’Immobilier

En poursuivant votre navigation sur ce site, vous acceptez l'utilisation de Cookies pour mesurer l'audience de notre site.

En savoir plus