Description

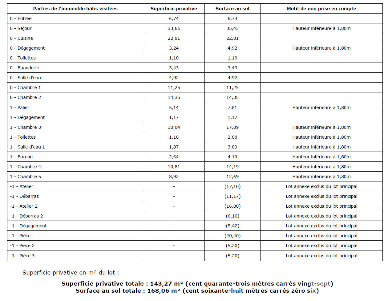
143 m²
1050 m²
7 pièces
4 chambres
1 garage

Je suis ravis de vous présenter en exclusivité chez LFimmo, ce bien atypique. Maison de 143 m² (168 m² au sol + 86m² de sous sol) idéalement située dans le quartier prisé de La Chabossière à Couëron partiellement rénovée, est un véritable havre de paix pour les amoureux de l’ancien et du confort moderne. À deux pas de toutes les commodités : Super U et commerces de proximité accessibles à pied, lignes de bus 91 et E1 à quelques mètres, écoles primaires, élémentaires et collège proches.

Caractéristiques principales :
• 4 chambres spacieuses et lumineuses, offrant de beaux volumes
• Bureau actuellement utilisé comme atelier de peinture
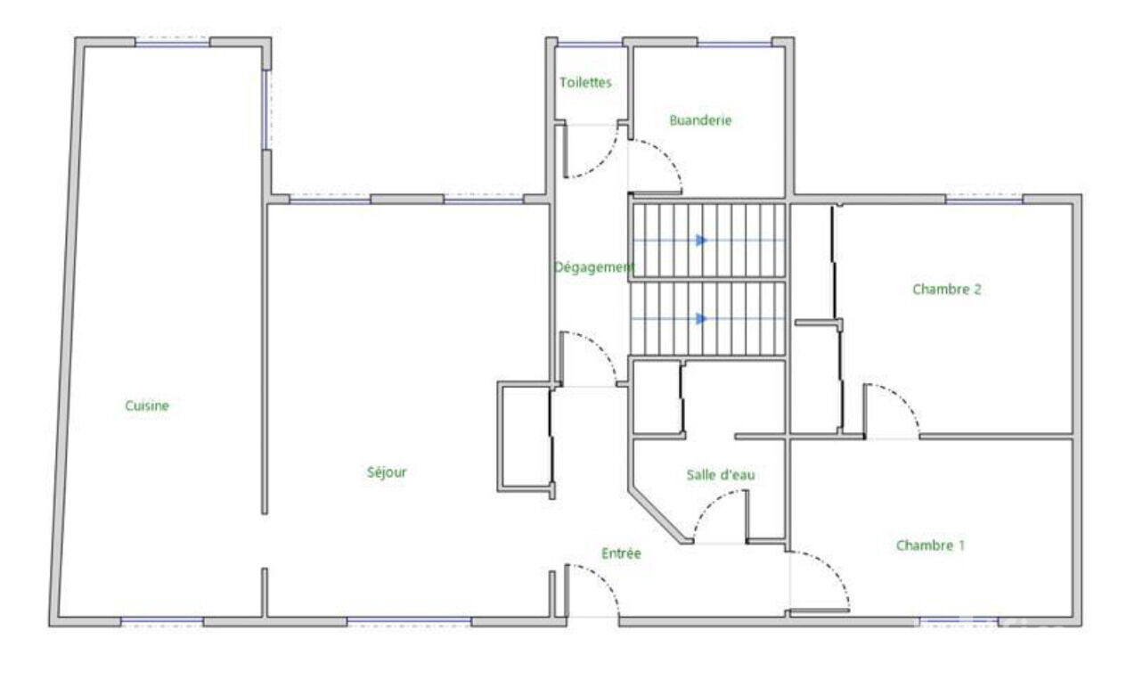
• Séjour chaleureux de 35 m² avec cheminée
• Cuisine généreuse de 22 m², idéale pour les moments en famille
• Buanderie pratique et fonctionnelle
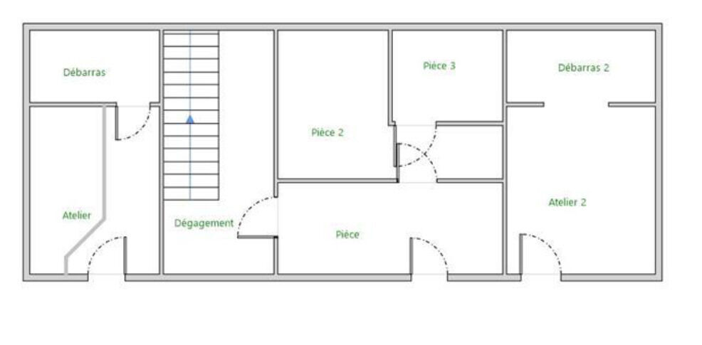
• Sous-sol de 86 m², divisé en plusieurs espaces (atelier bricolage, atelier bois…) parfait pour les bricoleurs ou les amateurs d’artisanat

Le tout sur un terrain de 1050 m², entièrement clôturé et aménagé avec soin :
• Espace potager pour les amoureux de la nature
• Abri de jardin et rangements pour le bois
• Orientation plein sud, assurant luminosité et ensoleillement toute la journée

La maison est composée de 2 salles d'eau et de 2 WC indépendants, avec des finitions à prévoir dans certaines zones (cage d’escalier, couloir, sanitaires du dernier étage déjà plaqués et bandés).

Projet de vie professionnel ou locatif ? Une entrée indépendante offre la possibilité d'aménager une partie de la maison pour une activité professionnelle ou de la location de courte durée.

Confort moderne et économie d’énergie : toute l'isolation a été refaite, incluant une isolation thermique par l’extérieur sur un des pignons. La majorité des menuiseries sont neuves, assurant une maison bien isolée et confortable.

Cette maison atypique, issue de la réunion de deux habitations, saura vous séduire par son cachet unique et son potentiel. Si vous recherchez un bien qui allie charme de l’ancien et confort moderne, ne passez pas à côté de cette opportunité !

Ne manquez pas l'opportunité de découvrir cette belle maison qui n'attend que vous.
Pour plus d'informations ou pour planifier une visite, n'hésitez pas à me contacter dès maintenant.

Recrutement et formation gratuite pour devenir agent commercial en immobilier !

Les informations sur les risques auxquels ce bien est exposé sont disponibles sur le site Géorisques : www.georisques.gouv.fr

Caractéristiques

Honoraires charge
mandant
Type
maison
État général
bon
Environnement
centre ville
Disponibilité
à l'acte
Construction
1968
Rénovation
2020
Surface totale
254 m²
Surface terrain
1050 m²
Surface habitable
143 m²
Nb. chambres
4
Nb. salles d'eau
2
Nb. cuisines
1
Nb. garages
1
Nb. parking
3
Nb. balcons
1
Types de cuisine
aménagée
Chauffages
gaz
Parking privé
Sous-sol
Terrasse
Cheminée
Tout à l'égout
Taxe foncière
1 902,00 €

Télécharger le barème des honoraires

Localisation Couëron, 44220

Tous les outils pour vos projets immobiliers

Découvrez Mon CID,

mon compagnon immobilier digital

Accès à toutes les ventes immobilières,

boussole à réalité augmentée,

tester le débit de votre futur achat,

calculatrice de mensualité, etc.

Application mobile disponible sur

En savoir plus

Performance énergétique

logement extrêmement performant
bâtiment performantpassoire énergétique
  • A< 70
  • B70 - 110
  • C110 - 180136kWh/m².an27 *kg CO2/m².an
  • D180 - 250
  • E250 - 330
  • F330 - 420
  • G> 420
logement extrêmement peu performant

* Dont émissions de gaz à effet de serre

peu d'émissions de CO2
  • A< 6
  • B6 - 11
  • C11 - 3027kg CO2/m².an
  • D30 - 50
  • E50 - 70
  • F70 - 100
  • G> 100
émissions de CO2 très importantes

Estimation des dépenses annuelles d'énergie pour un usage standard

entre 1 800 € et 2 200 € / an *

* Prix moyens des énergies indexés pour l'année 2021 (abonnement compris).

Déjà vendu !

par Florent Cascarino (EI)

Florent Cascarino

Agent commercial en immobilier immatriculé au RSAC de Nantes sous le n°829462563

Logo La Fédération de l’Immobilier

La Fédé de l’Immo rassemble des agences immobilières indépendantes qui ont choisi d’adhérer à un modèle plus collaboratif, plus puissant et plus moderne. Ici, chaque agence reste indépendante. Mais aucune n’est isolée. En rejoignant La Fédé de l’Immo, les agences mutualisent leurs outils, leur visibilité et leurs opportunités, tout en conservant leur identité locale.

Coordonnées du siège

La Fédération de l’Immobilier
34 avenue des Champs Elysées
Paris, 75008 (France)
+33 3 88 62 97 69
contact@lafede.immo

Chaque Membre de la Fédération est juridiquement et financièrement indépendant.

Filtres SVG
Logo La Fédération de l’Immobilier Logo La Fédération de l’Immobilier La Fédération de l’Immobilier

En poursuivant votre navigation sur ce site, vous acceptez l'utilisation de Cookies pour mesurer l'audience de notre site.

En savoir plus