Description

105 m²
5 pièces
3 chambres

Située à Croix St Pierre, Emeline Beaudoux votre agent chez LF immo vous propose cette jolie maison 1930 type flamande, sur 105m2 habitable avec cour extérieur de plus de 16m2.

Proche métro à 12mn à pieds, marché, tous commerces autour de la place de l'égalité, écoles et axes routiers.

Cette charmante maison, offrant des pièces spacieuses, idéal pour une 1ère acquisition.

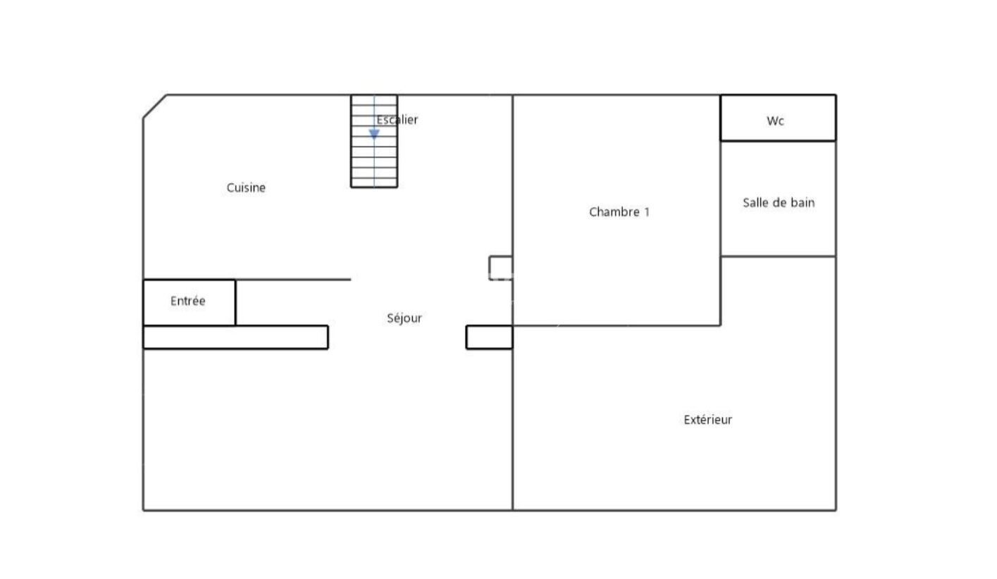
Elle se compose au rez-de-chaussée d'un salon-séjour lumineux, un feu à bois, une cuisine aménagée.
Egalement une chambre spacieuse de 15m2 avec salle de douche et un toilette avec baie coulissante menant vers l'extérieur.

Au 1er étage s'y trouvent 2 chambres de 12 et 15m2, une salle de douche et un 2ème toilette.
Au 2ème étage dans les combles, pas besoin d'aménager car c'est déjà fait, avec possibilité d'y faire une chambre d'enfant, salle de jeu ou autre.

Contactez-moi dès maintenant pour organiser une visite!

Les +++ de la maison :

Idéal pour un 1er achat
Le secteur proche toutes commodités
Les volumes et la luminosité.
Pièce au rez-de-chaussé pouvant faire office de chambre ou autre.
Révision de la toiture 04/2025

Les informations sur les risques auxquels ce bien est exposé sont disponibles sur le site Géorisques : www.georisques.gouv.fr

Caractéristiques

Honoraires charge
mandant
Type
maison
État général
à rafraîchir
Environnement
urbain
Orientation
Est
Disponibilité
à l'acte
Construction
1930
Surface habitable
105 m²
Nb. chambres
3
Nb. salles d'eau
2
Nb. cuisines
1
Nb. garages
0
Types de cuisine
aménagée
Chauffages
bois et électricité
Terrasse
Tout à l'égout
Taxe foncière
482,00 €

Télécharger le barème des honoraires

Localisation Croix, 59170

Pour des raisons de confidentialité, la géolocalisation de ce bien a été dégradée.

Tous les outils pour vos projets immobiliers

Découvrez Mon CID,

mon compagnon immobilier digital

Accès à toutes les ventes immobilières,

boussole à réalité augmentée,

tester le débit de votre futur achat,

calculatrice de mensualité, etc.

Application mobile disponible sur

En savoir plus

Performance énergétique

logement extrêmement performant
bâtiment performantpassoire énergétique
  • A< 70
  • B70 - 110
  • C110 - 180
  • D180 - 250
  • E250 - 330261kWh/m².an8 *kg CO2/m².an
  • F330 - 420
  • G> 420
logement extrêmement peu performant

* Dont émissions de gaz à effet de serre

peu d'émissions de CO2
  • A< 6
  • B6 - 118kg CO2/m².an
  • C11 - 30
  • D30 - 50
  • E50 - 70
  • F70 - 100
  • G> 100
émissions de CO2 très importantes

Estimation des dépenses annuelles d'énergie pour un usage standard

entre 1 950 € et 2 700 € / an *

* Prix moyens des énergies indexés pour l'année 2023 (abonnement compris).

Simulation de prêt

(10% du prix du bien)
%
(taux moyen hors assurance)

Montant estimé

739 € / mois *

* Calculs effectués sur la base d'un prêt à taux fixe de 3,31% sur une durée de 25 ans avec un apport de 10% et hors assurance. Le coût de l'assurance de prêt dépend du capital assuré, de votre âge, de la durée du prêt, du taux d'intérêt du prêt, de votre questionnaire de santé et/ou médical, et de votre profession. Les calculs et solutions indiqués ne revêtent aucun caractère contractuel et ne sont en aucun cas une offre de prêt. Seuls les banques et organismes de financement sont habilités à accorder un financement. Pour tout crédit immobilier, vous êtes protégés par un délai de réflexion de 10 jours. Aucun versement de quelque nature que ce soit ne peut être exigé d'un particulier avant l'obtention d'un ou de plusieurs prêts d'argent. L'achat est subordonné à l'obtention du prêt. S'il n'est pas obtenu, le vendeur doit rembourser les sommes versées. Un crédit vous engage et doit être remboursé. Vérifiez vos capacités de remboursement avant de vous engager.

Cette annonce vous intéresse ?

Prenez contact avec Emeline Beaudoux (EI)

Emeline Beaudoux

Agent commercial en immobilier immatriculé au RSAC de Lille sous le n°888415213


ou

Autres annonces à découvrir...

Logo La Fédération de l'Immobilier

La Fédération de l’Immobilier by LF met à disposition des professionnels une structure éprouvée, alliant outils technologiques, formation et accompagnement de haut niveau. Une vision claire : partager nos ressources pour bâtir un immobilier plus solide, plus agile, plus humain

Coordonnées

La Fédération de l'Immobilier

(France)

Chaque Membre de la Fédération est juridiquement et financièrement indépendant.

Filtres SVG
Logo La Fédération de l'Immobilier Logo La Fédération de l'Immobilier La Fédération de l'Immobilier

En poursuivant votre navigation sur ce site, vous acceptez l'utilisation de Cookies pour mesurer l'audience de notre site.

En savoir plus