Description

115 m²
1 pièce

Opportunité à saisir à Villé!

À découvrir : un local commercial en angle de 115 m², situé en rez-de-chaussée d’un immeuble de 10 logements. Grâce à ses 6 grandes fenêtres, il bénéficie d’une luminosité naturelle exceptionnelle et d’une excellente visibilité, idéale pour une activité professionnelle.

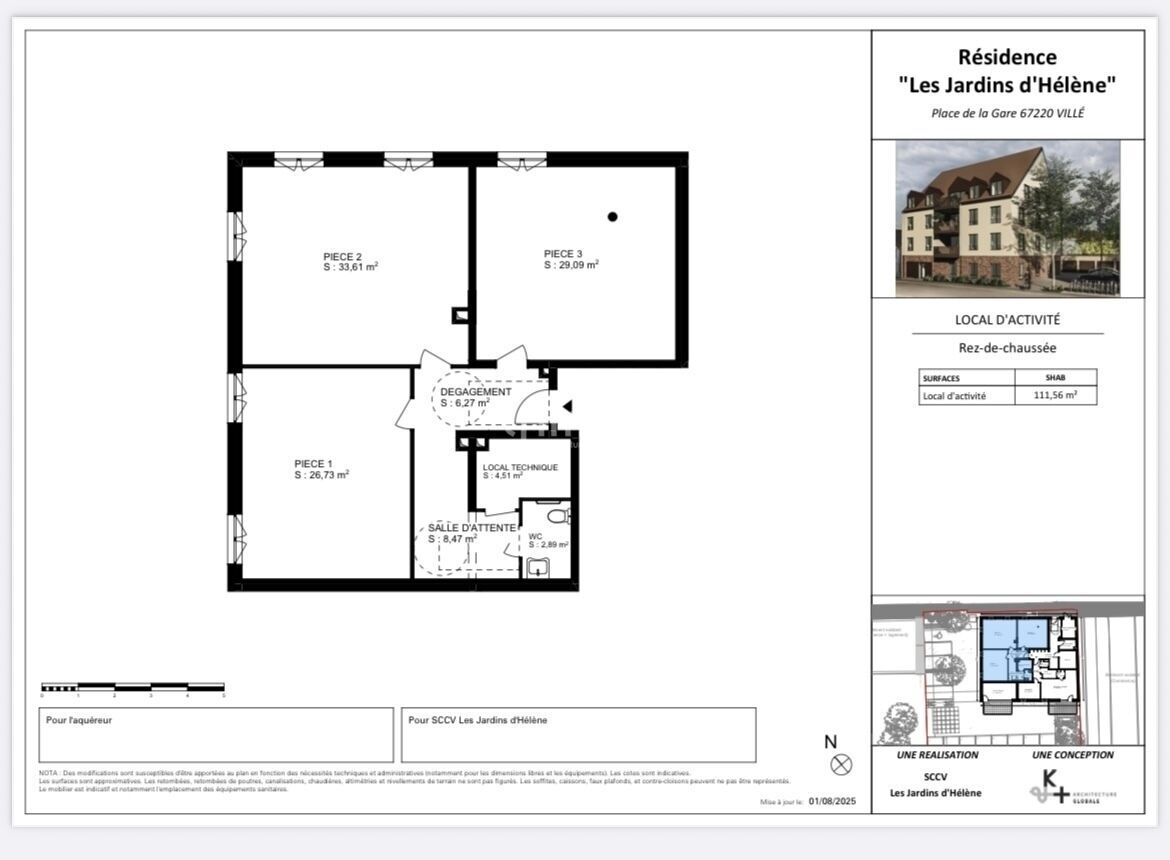
Le local est divisé en trois lots privatifs avec une salle d’attente commune incluant des sanitaires. Chaque acquéreur sera copropriétaire de cet espace commun, pour une utilisation partagée équilibrée.
Une solution intelligente et avantageuse, idéale pour accueillir plusieurs activités complémentaires dans un même lieu. Cela permet de dynamiser l'espace, de mutualiser certains coûts et de créer une atmosphère professionnelle et conviviale.



Lots disponibles :
• Local 1 – 26.73 m² : 82.863 € TTC
• Local 2 – 33.61 m² : 104.191 € TTC
• Local 3 – 29.09 m² : 90.179 € TTC

Chaque acquéreur contribue au prorata à la salle d'attente avec sanitaires, au local technique et au dégagement desservant les 3 pièces.



Caractéristiques :
• Surface totale : 115 m² sur un plateau libre
• Disposition en angle : excellente visibilité
• 6 fenêtres : belle luminosité naturelle
• Aménagement et finitions personnalisables
• Usage idéal : cabinets médicaux, bureaux, professions libérales, crèche, etc.
• Petite copropriété dynamique de 10 logements

Emplacement stratégique, facilement accessible et bien desservi.
Disponibilité prévue : 3ᵉ trimestre 2026.



Nous sommes à l’écoute de toute proposition, que vous soyez investisseur ou entrepreneur. Contactez-nous pour plus d’informations ou une visite.


💰 Local d'activité proposée au prix de vente de 359.848 euros.
📞N'attendez plus pour concrétiser votre projet professionnel à Villé. Pour toute information, contactez Andreea Lako dès aujourd'hui !

Les informations sur les risques auxquels ce bien est exposé sont disponibles sur le site Géorisques : www.georisques.gouv.fr

Caractéristiques

Prix hors honoraires d'agence
349 053,00 €
Honoraires charge
acquéreur
Pourcentage à la charge de l'acquéreur
3,09%
Type
murs commerciaux
État général
excellent
Environnement
centre ville
Disponibilité
à l'achèvement
Construction
2024
Surface totale
116 m²
Surface habitable
115 m²
Chauffages
gaz
Bien soumis au statut de la copropriété
Procédure en cours
aucune
Charges budget prévisionnel annuel
1 450,00 €
Nb. de logements
10
Nb. de lots
24

Télécharger le barème des honoraires

Localisation Ville, 67220

Tous les outils pour vos projets immobiliers

Découvrez Mon CID,

mon compagnon immobilier digital

Accès à toutes les ventes immobilières,

boussole à réalité augmentée,

tester le débit de votre futur achat,

calculatrice de mensualité, etc.

Application mobile disponible sur

En savoir plus

Performance énergétique

logement extrêmement performant
bâtiment performantpassoire énergétique
  • A< 70
  • B70 - 110
  • C110 - 180
  • D180 - 250
  • E250 - 330
  • F330 - 420
  • G> 420
logement extrêmement peu performant

* Dont émissions de gaz à effet de serre

peu d'émissions de CO2
  • A< 6
  • B6 - 11
  • C11 - 30
  • D30 - 50
  • E50 - 70
  • F70 - 100
  • G> 100
émissions de CO2 très importantes

Simulation de prêt

(10% du prix du bien)
%
(taux moyen hors assurance)

Montant estimé

1599 € / mois *

* Calculs effectués sur la base d'un prêt à taux fixe de 3,37% sur une durée de 25 ans avec un apport de 10% et hors assurance. Le coût de l'assurance de prêt dépend du capital assuré, de votre âge, de la durée du prêt, du taux d'intérêt du prêt, de votre questionnaire de santé et/ou médical, et de votre profession. Les calculs et solutions indiqués ne revêtent aucun caractère contractuel et ne sont en aucun cas une offre de prêt. Seuls les banques et organismes de financement sont habilités à accorder un financement. Pour tout crédit immobilier, vous êtes protégés par un délai de réflexion de 10 jours. Aucun versement de quelque nature que ce soit ne peut être exigé d'un particulier avant l'obtention d'un ou de plusieurs prêts d'argent. L'achat est subordonné à l'obtention du prêt. S'il n'est pas obtenu, le vendeur doit rembourser les sommes versées. Un crédit vous engage et doit être remboursé. Vérifiez vos capacités de remboursement avant de vous engager.

Cette annonce vous intéresse ?

Prenez contact avec Andreea Dorina Lako (EI)

Andreea Dorina Lako

Agent commercial en immobilier immatriculé au RSAC de COLMAR sous le n°952429751


ou

Logo La Fédération de l’Immobilier

La Fédé de l’Immo rassemble des agences immobilières indépendantes qui ont choisi d’adhérer à un modèle plus collaboratif, plus puissant et plus moderne. Ici, chaque agence reste indépendante. Mais aucune n’est isolée. En rejoignant La Fédé de l’Immo, les agences mutualisent leurs outils, leur visibilité et leurs opportunités, tout en conservant leur identité locale.

Coordonnées du siège

La Fédération de l’Immobilier
34 avenue des Champs Elysées
Paris, 75008 (France)
+33 3 88 62 97 69
contact@lafede.immo

Chaque Membre de la Fédération est juridiquement et financièrement indépendant.

Filtres SVG
Logo La Fédération de l’Immobilier Logo La Fédération de l’Immobilier La Fédération de l’Immobilier

En poursuivant votre navigation sur ce site, vous acceptez l'utilisation de Cookies pour mesurer l'audience de notre site.

En savoir plus