Description

200 m²
102400 m²
6 pièces

À vendre : Magnifique ferme à rénover à Surdoux, France. Cette propriété exceptionnelle offre un cadre de vie paisible et authentique, idéal pour les amoureux de la nature.
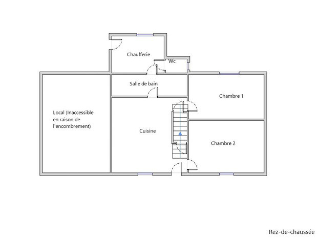
Avec une surface habitable de 94 m² sur une base de 5 pièces, (2 grandes pièces viendront en complément).
1500m2 de bâtiments: granges, stabulation, hangar, un vaste terrain de 10ha, (avec la possibilité d'acquérir 23 ha en plus) cette ferme est parfaite pour ceux qui recherchent espace et tranquillité.
Idéale pour développer une activité agricole ou avoir de l'espaces pour ses animaux (chevaux et autres).

L'intérieur de la ferme est à rénover entièrement (sauf toitures), vous pourrez créer vos espaces de vie confortable pour toute la famille.
Les bâtiments agricoles sont fonctionnels et pratique.

À l'extérieur, vous pourrez créer un grand jardin arboré, exposé plein sud, idéal pour les moments de détente en plein air.
La ferme dispose également de dépendances et d'espaces de stockage pratiques.

Cette propriété unique est proposée au prix de 283 700€, une opportunité rare sur le marché. Ne manquez pas cette occasion d'acquérir un véritable havre de paix à Surdoux. Contactez-nous dès maintenant pour organiser une visite et découvrir ce joyau de la campagne française.

Les informations sur les risques auxquels ce bien est exposé sont disponibles sur le site Géorisques : www.georisques.gouv.fr

Caractéristiques

Honoraires charge
mandant
Type
ferme
État général
à rénover
Environnement
campagne non-isolée
Orientation
Sud
Disponibilité
à l'acte
Surface totale
1780 m²
Surface terrain
102400 m²
Surface habitable
200 m²

Télécharger le barème des honoraires

Localisation Surdoux, 87130

Pour des raisons de confidentialité, la géolocalisation de ce bien a été dégradée.

Tous les outils pour vos projets immobiliers

Découvrez Mon CID,

mon compagnon immobilier digital

Accès à toutes les ventes immobilières,

boussole à réalité augmentée,

tester le débit de votre futur achat,

calculatrice de mensualité, etc.

Application mobile disponible sur

En savoir plus

Performance énergétique

logement extrêmement performant
bâtiment performantpassoire énergétique
  • A< 70
  • B70 - 110
  • C110 - 180
  • D180 - 250
  • E250 - 330
  • F330 - 420
  • G> 420562kWh/m².an164 *kg CO2/m².anLogement à consommation énergétique excessive
logement extrêmement peu performant

* Dont émissions de gaz à effet de serre

peu d'émissions de CO2
  • A< 6
  • B6 - 11
  • C11 - 30
  • D30 - 50
  • E50 - 70
  • F70 - 100
  • G> 100164kg CO2/m².an
émissions de CO2 très importantes

Estimation des dépenses annuelles d'énergie pour un usage standard

entre 6 470 € et 8 810 € / an *

* Prix moyens des énergies indexés pour l'année 2021 (abonnement compris).

Simulation de prêt

(10% du prix du bien)
%
(taux moyen hors assurance)

Montant estimé

1254 € / mois *

* Calculs effectués sur la base d'un prêt à taux fixe de 3,32% sur une durée de 25 ans avec un apport de 10% et hors assurance. Le coût de l'assurance de prêt dépend du capital assuré, de votre âge, de la durée du prêt, du taux d'intérêt du prêt, de votre questionnaire de santé et/ou médical, et de votre profession. Les calculs et solutions indiqués ne revêtent aucun caractère contractuel et ne sont en aucun cas une offre de prêt. Seuls les banques et organismes de financement sont habilités à accorder un financement. Pour tout crédit immobilier, vous êtes protégés par un délai de réflexion de 10 jours. Aucun versement de quelque nature que ce soit ne peut être exigé d'un particulier avant l'obtention d'un ou de plusieurs prêts d'argent. L'achat est subordonné à l'obtention du prêt. S'il n'est pas obtenu, le vendeur doit rembourser les sommes versées. Un crédit vous engage et doit être remboursé. Vérifiez vos capacités de remboursement avant de vous engager.

Cette annonce vous intéresse ?

Prenez contact avec Ludovic Cornillon (EI)

Ludovic Cornillon

Agent commercial en immobilier immatriculé au RSAC de LIMOGES sous le n°492413026


ou

Logo La Fédé de l'Immo

La Fédé de l’Immo rassemble des agences immobilières indépendantes qui ont choisi d’adhérer à un modèle plus collaboratif, plus puissant et plus moderne. Ici, chaque agence reste indépendante. Mais aucune n’est isolée. En rejoignant La Fédé de l’Immo, les agences mutualisent leurs outils, leur visibilité et leurs opportunités, tout en conservant leur identité locale.

Coordonnées du siège

La Fédé de l'Immo

(France)

Chaque Membre de la Fédération est juridiquement et financièrement indépendant.

Filtres SVG
Logo La Fédé de l'Immo Logo La Fédé de l'Immo La Fédé de l'Immo

En poursuivant votre navigation sur ce site, vous acceptez l'utilisation de Cookies pour mesurer l'audience de notre site.

En savoir plus