Description

200 m²
446 m²
7 pièces
5 chambres
1 garage
1 sdb

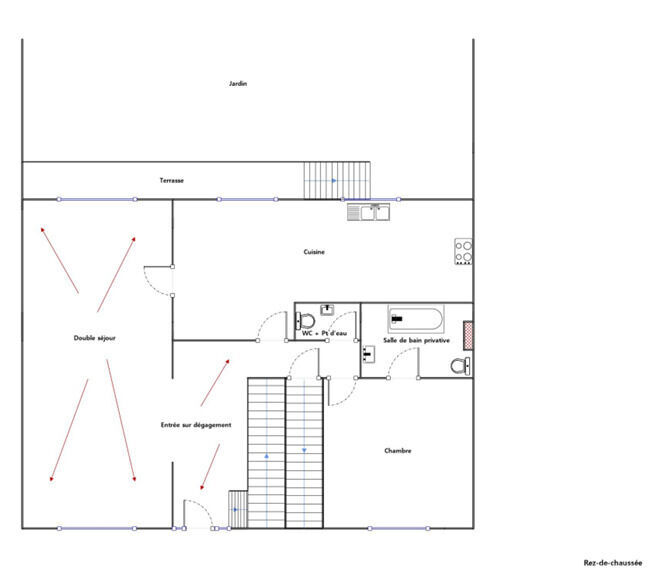
Belle maison spacieuse et lumineuse d'environ 200m² de surface utile offrant 7 pièces sur un terrain de 446m². Idéales pour accueillir une grande famille, profession libérale ou artisan. Idéalement située dans le quartier prisé du Vert Galant, au calme, proche toutes commodités, du canal, des écoles.
Accès rapide A104/RN3 et RER B.

Sous sol total:
- parking 2 véhicules + 1 dans la cour
- Espace de rangement
- Buanderie/Chaufferie

RDC:
-Entrée spacieuse
-Vaste séjour/Salon
-Grande cuisine équipée
-Chambre parentale avec salle de bain
-WC indépendant

1er étage:
- 4 chambres
- Vaste palier et pièce centrale
- Salle d'eau , WC

Un studio indépendant au sous sol et une dépendance à rénover au fond du jardin complète ce bien rare sur le marché.
Contactez-moi dès maintenant pour organiser une visite et découvrir votre futur chez-vous.

Les informations sur les risques auxquels ce bien est exposé sont disponibles sur le site Géorisques : www.georisques.gouv.fr

Caractéristiques

Honoraires charge
mandant
Type
maison
État général
bon
Environnement
urbain
Disponibilité
à l'acte
Construction
1992
Surface terrain
446 m²
Surface habitable
200 m²
Nb. chambres
5
Nb. salles de bains
1
Nb. salles d'eau
1
Nb. cuisines
1
Nb. garages
1
Nb. parking
3
Nb. balcons
1
Types de cuisine
équipée
Chauffages
gaz
Sous-sol
Tout à l'égout
Taxe foncière
2 600,00 €

Télécharger le barème des honoraires

Tous les outils pour vos projets immobiliers

Découvrez Mon CID,

mon compagnon immobilier digital

Accès à toutes les ventes immobilières,

boussole à réalité augmentée,

tester le débit de votre futur achat,

calculatrice de mensualité, etc.

Application mobile disponible sur

En savoir plus

Performance énergétique

logement extrêmement performant
bâtiment performantpassoire énergétique
  • A< 70
  • B70 - 110
  • C110 - 180
  • D180 - 250156kWh/m².an33 *kg CO2/m².an
  • E250 - 330
  • F330 - 420
  • G> 420
logement extrêmement peu performant

* Dont émissions de gaz à effet de serre

peu d'émissions de CO2
  • A< 6
  • B6 - 11
  • C11 - 30
  • D30 - 5033kg CO2/m².an
  • E50 - 70
  • F70 - 100
  • G> 100
émissions de CO2 très importantes

Estimation des dépenses annuelles d'énergie pour un usage standard

entre 2 990 € et 4 090 € / an *

* Prix moyens des énergies indexés pour l'année 2023 (abonnement compris).

Simulation de prêt

(10% du prix du bien)
%
(taux moyen hors assurance)

Montant estimé

1995 € / mois *

* Calculs effectués sur la base d'un prêt à taux fixe de 3,35% sur une durée de 25 ans avec un apport de 10% et hors assurance. Le coût de l'assurance de prêt dépend du capital assuré, de votre âge, de la durée du prêt, du taux d'intérêt du prêt, de votre questionnaire de santé et/ou médical, et de votre profession. Les calculs et solutions indiqués ne revêtent aucun caractère contractuel et ne sont en aucun cas une offre de prêt. Seuls les banques et organismes de financement sont habilités à accorder un financement. Pour tout crédit immobilier, vous êtes protégés par un délai de réflexion de 10 jours. Aucun versement de quelque nature que ce soit ne peut être exigé d'un particulier avant l'obtention d'un ou de plusieurs prêts d'argent. L'achat est subordonné à l'obtention du prêt. S'il n'est pas obtenu, le vendeur doit rembourser les sommes versées. Un crédit vous engage et doit être remboursé. Vérifiez vos capacités de remboursement avant de vous engager.

Cette annonce vous intéresse ?

Prenez contact avec Régis Desmoulins (EI)

Régis Desmoulins

Agent commercial en immobilier immatriculé au RSAC de MEAUX sous le n°978394294


ou

Logo La Fédé de l'Immo

La Fédé de l’Immo rassemble des agences immobilières indépendantes qui ont choisi d’adhérer à un modèle plus collaboratif, plus puissant et plus moderne. Ici, chaque agence reste indépendante. Mais aucune n’est isolée. En rejoignant La Fédé de l’Immo, les agences mutualisent leurs outils, leur visibilité et leurs opportunités, tout en conservant leur identité locale.

Coordonnées du siège

La Fédé de l'Immo

(France)

Chaque Membre de la Fédération est juridiquement et financièrement indépendant.

Filtres SVG
Logo La Fédé de l'Immo Logo La Fédé de l'Immo La Fédé de l'Immo

En poursuivant votre navigation sur ce site, vous acceptez l'utilisation de Cookies pour mesurer l'audience de notre site.

En savoir plus