Description

49 m²
2 pièces
1 chambre
1 sdb

🏡 Grand F2 à Vaux-le-Pénil : Ne passez pas à côté !

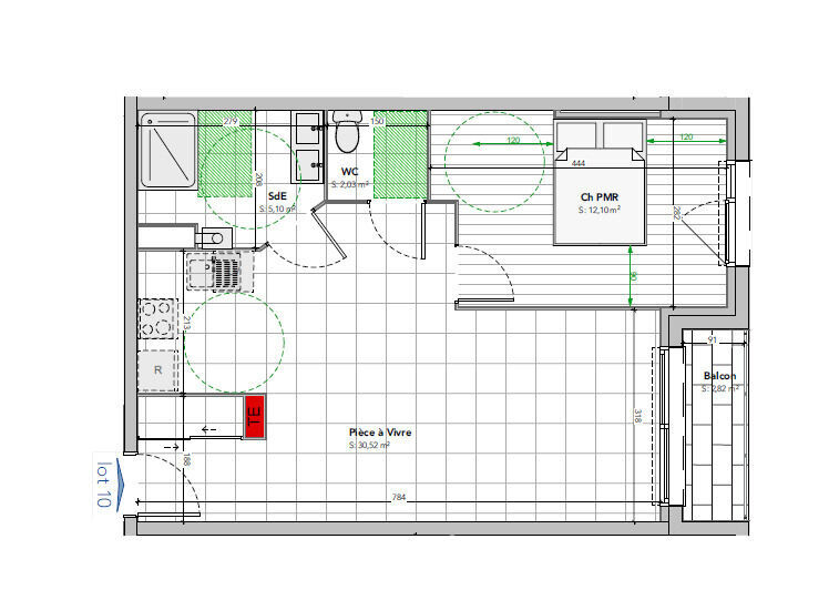
Dans la résidence "Gaïa", découvrez ce spacieux F2 situé au dernier étage, offrant un cadre de vie lumineux et fonctionnel. Vous y trouverez une entrée avec placard, un séjour baigné de lumière avec accès à un balcon, une cuisine aménagée et équipée, une chambre confortable, une salle d’eau moderne et un WC séparé. Une place de stationnement vient compléter ce bien pour votre confort.

Vaux-le-Pénil est une ville très recherchée, reconnue pour ses commerces, ses écoles, son calme et sa proximité avec les axes routiers. La gare de Melun, toute proche, permet de rejoindre Paris en seulement 25 minutes, un atout non négligeable !

Cet appartement est idéal pour un premier achat ou pour un investissement. Contactez-moi dès maintenant** pour organiser une visite. Je suis également ouvert à l’intercabinet avec mes confrères pour offrir à nos clients un service optimal.

✨Une opportunité à saisir rapidement !

Les informations sur les risques auxquels ce bien est exposé sont disponibles sur le site Géorisques : www.georisques.gouv.fr

Caractéristiques

Honoraires charge
mandant
Type
appartement
État général
neuf
Environnement
centre ville
Disponibilité
à l'achèvement
Construction
2024
Surface habitable
49 m²
Étage
2
Floor count
2
Nb. chambres
1
Nb. salles de bains
1
Nb. cuisines
1
Nb. parking
1
Nb. balcons
1
Types de cuisine
américaine
Chauffages
gaz
Parking privé
Ascenseur
Bien soumis au statut de la copropriété
Procédure en cours
aucune
Charges budget prévisionnel annuel
0,00 €
Nb. de logements
13
Nb. de lots
32

Télécharger le barème des honoraires

Localisation Vaux Le Penil, 77000

Pour des raisons de confidentialité, la géolocalisation de ce bien a été dégradée.

Tous les outils pour vos projets immobiliers

Découvrez Mon CID,

mon compagnon immobilier digital

Accès à toutes les ventes immobilières,

boussole à réalité augmentée,

tester le débit de votre futur achat,

calculatrice de mensualité, etc.

Application mobile disponible sur

En savoir plus

Performance énergétique

logement extrêmement performant
bâtiment performantpassoire énergétique
  • A< 70
  • B70 - 110
  • C110 - 180
  • D180 - 250
  • E250 - 330
  • F330 - 420
  • G> 420
logement extrêmement peu performant

* Dont émissions de gaz à effet de serre

peu d'émissions de CO2
  • A< 6
  • B6 - 11
  • C11 - 30
  • D30 - 50
  • E50 - 70
  • F70 - 100
  • G> 100
émissions de CO2 très importantes

Simulation de prêt

(10% du prix du bien)
%
(taux moyen hors assurance)

Montant estimé

876 € / mois *

* Calculs effectués sur la base d'un prêt à taux fixe de 3,31% sur une durée de 25 ans avec un apport de 10% et hors assurance. Le coût de l'assurance de prêt dépend du capital assuré, de votre âge, de la durée du prêt, du taux d'intérêt du prêt, de votre questionnaire de santé et/ou médical, et de votre profession. Les calculs et solutions indiqués ne revêtent aucun caractère contractuel et ne sont en aucun cas une offre de prêt. Seuls les banques et organismes de financement sont habilités à accorder un financement. Pour tout crédit immobilier, vous êtes protégés par un délai de réflexion de 10 jours. Aucun versement de quelque nature que ce soit ne peut être exigé d'un particulier avant l'obtention d'un ou de plusieurs prêts d'argent. L'achat est subordonné à l'obtention du prêt. S'il n'est pas obtenu, le vendeur doit rembourser les sommes versées. Un crédit vous engage et doit être remboursé. Vérifiez vos capacités de remboursement avant de vous engager.

Cette annonce vous intéresse ?

Prenez contact avec Christophe Dogliani (EI)

Christophe Dogliani

Agent commercial en immobilier immatriculé au RSAC de MELUN sous le n°425084035


ou

Logo La Fédération de l'Immobilier

La Fédération de l’Immobilier by LF met à disposition des professionnels une structure éprouvée, alliant outils technologiques, formation et accompagnement de haut niveau. Une vision claire : partager nos ressources pour bâtir un immobilier plus solide, plus agile, plus humain

Coordonnées

La Fédération de l'Immobilier

(France)

Chaque Membre de la Fédération est juridiquement et financièrement indépendant.

Filtres SVG
Logo La Fédération de l'Immobilier Logo La Fédération de l'Immobilier La Fédération de l'Immobilier

En poursuivant votre navigation sur ce site, vous acceptez l'utilisation de Cookies pour mesurer l'audience de notre site.

En savoir plus