Description

143 m²
415 m²
6 pièces
5 chambres
1 garage
1 sdb


Maison familiale 143 m² avec jardin, garage et dépendance – Fort potentiel à Villeparisis

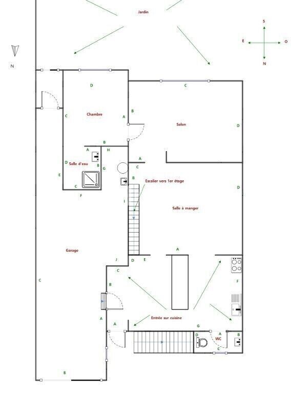
Située dans un quartier calme et recherché de Villeparisis, à proximité immédiate des écoles, des commerces et des grands axes (A104/N3), cette maison familiale de 143 m² habitables, édifiée sur un terrain de 415 m², offre de très beaux volumes et un potentiel d’aménagement exceptionnel.

Dès l’entrée, vous serez séduit par les espaces lumineux et fonctionnels. La cuisine semi-ouverte communique avec un séjour spacieux et un salon chaleureux équipé d’un poêle à bois, d’une climatisation réversible et d’une large baie vitrée ouvrant sur une terrasse sans vis-à-vis et un agréable jardin. Le rez-de-chaussée comprend également une chambre avec sa propre salle d’eau (douche à l’italienne), idéale pour créer une suite parentale ou accueillir des invités, ainsi qu’un WC indépendant. Le tout est complété par un grand garage attenant de plus de 37 m², accessible depuis l’intérieur de la maison.

À l’étage, vous trouverez quatre chambres confortables, dont une bénéficiant d’un accès direct à l’extérieur — parfait pour une activité indépendante ou pour un adolescent en quête d’autonomie. Un bureau, un dressing et une grande salle de bain avec baignoire, douche et WC viennent compléter ce niveau.

Enfin, une dépendance de plus de 18 m² offre encore de belles possibilités : studio, atelier, salle de sport, bureau indépendant… à vous d’en faire l’espace qui vous ressemble.

Les plus :
Poêle à bois et climatisation réversible pour un confort optimal
Terrasse intime sans vis-à-vis
Garage spacieux avec accès direct à la maison
Chambre avec accès indépendant
Dépendance à aménager selon vos besoins

Cette maison, à la fois fonctionnelle et pleine de charme, n’attend que vous pour révéler tout son potentiel. Une visite s’impose !

Contactez-moi dès maintenant pour la découvrir.





Les informations sur les risques auxquels ce bien est exposé sont disponibles sur le site Géorisques : www.georisques.gouv.fr

Caractéristiques

Honoraires charge
mandant
Type
maison
État général
bon
Environnement
urbain
Disponibilité
à l'acte
Construction
1936
Rénovation
1990
Surface terrain
415 m²
Surface habitable
143 m²
Nb. chambres
5
Nb. salles de bains
1
Nb. salles d'eau
1
Nb. cuisines
1
Nb. garages
1
Nb. parking
1
Types de cuisine
équipement de base
Chauffages
électricité, gaz, bois et clim réversible
Taxe foncière
1 200,00 €

Télécharger le barème des honoraires

Localisation Villeparisis, 77270

Pour des raisons de confidentialité, la géolocalisation de ce bien a été dégradée.

Tous les outils pour vos projets immobiliers

Découvrez Mon CID,

mon compagnon immobilier digital

Accès à toutes les ventes immobilières,

boussole à réalité augmentée,

tester le débit de votre futur achat,

calculatrice de mensualité, etc.

Application mobile disponible sur

En savoir plus

Performance énergétique

logement extrêmement performant
bâtiment performantpassoire énergétique
  • A< 70
  • B70 - 110
  • C110 - 180
  • D180 - 250248kWh/m².an22 *kg CO2/m².an
  • E250 - 330
  • F330 - 420
  • G> 420
logement extrêmement peu performant

* Dont émissions de gaz à effet de serre

peu d'émissions de CO2
  • A< 6
  • B6 - 11
  • C11 - 3022kg CO2/m².an
  • D30 - 50
  • E50 - 70
  • F70 - 100
  • G> 100
émissions de CO2 très importantes

Estimation des dépenses annuelles d'énergie pour un usage standard

entre 3 310 € et 4 550 € / an *

* Prix moyens des énergies indexés pour l'année 2022 (abonnement compris).

Simulation de prêt

(10% du prix du bien)
%
(taux moyen hors assurance)

Montant estimé

1523 € / mois *

* Calculs effectués sur la base d'un prêt à taux fixe de 3,31% sur une durée de 25 ans avec un apport de 10% et hors assurance. Le coût de l'assurance de prêt dépend du capital assuré, de votre âge, de la durée du prêt, du taux d'intérêt du prêt, de votre questionnaire de santé et/ou médical, et de votre profession. Les calculs et solutions indiqués ne revêtent aucun caractère contractuel et ne sont en aucun cas une offre de prêt. Seuls les banques et organismes de financement sont habilités à accorder un financement. Pour tout crédit immobilier, vous êtes protégés par un délai de réflexion de 10 jours. Aucun versement de quelque nature que ce soit ne peut être exigé d'un particulier avant l'obtention d'un ou de plusieurs prêts d'argent. L'achat est subordonné à l'obtention du prêt. S'il n'est pas obtenu, le vendeur doit rembourser les sommes versées. Un crédit vous engage et doit être remboursé. Vérifiez vos capacités de remboursement avant de vous engager.

Cette annonce vous intéresse ?

Prenez contact avec Régis Desmoulins (EI)

Régis Desmoulins

Agent commercial en immobilier immatriculé au RSAC de MEAUX sous le n°978394294


ou

Logo La Fédération de l'Immobilier

La Fédération de l’Immobilier by LF met à disposition des professionnels une structure éprouvée, alliant outils technologiques, formation et accompagnement de haut niveau. Une vision claire : partager nos ressources pour bâtir un immobilier plus solide, plus agile, plus humain

Coordonnées

La Fédération de l'Immobilier

(France)

Chaque Membre de la Fédération est juridiquement et financièrement indépendant.

Filtres SVG
Logo La Fédération de l'Immobilier Logo La Fédération de l'Immobilier La Fédération de l'Immobilier

En poursuivant votre navigation sur ce site, vous acceptez l'utilisation de Cookies pour mesurer l'audience de notre site.

En savoir plus