Description

144 m²
688 m²
9 pièces
8 chambres
1 garage
1 sdb

🏡 Maison familiale 144 m² – Fort potentiel – Quartier recherché

Située dans le secteur prisé Anatole France, cette maison indépendante de 144 m², exposée plein sud, est édifiée sur un beau terrain arboré de 688 m², à proximité immédiate des écoles et des commerces.

Dès l’entrée, vous découvrez un bien aux volumes généreux offrant de nombreuses possibilités d’aménagement, idéal pour une grande famille, un investisseur ou une profession libérale.

Le rez-de-chaussée se compose d’une entrée desservant une cuisine, un séjour lumineux, deux chambres, une salle d’eau et un WC séparé. À l’étage, vous profiterez de trois chambres supplémentaires, de deux espaces pouvant faire office de bureaux ou dressings, ainsi que d’une salle de bain et d’un second WC.

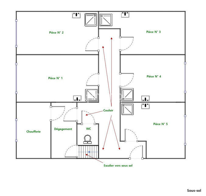
Le véritable atout de cette maison réside dans son sous-sol total semi-enterré avec accès indépendant, déjà aménagé en plusieurs pièces comprenant notamment chambres avec points d’eau et bureaux. Un espace parfaitement adapté pour une activité professionnelle, un logement indépendant ou un projet locatif.

À l’extérieur, vous bénéficiez d’un agréable jardin arboré, d’un garage ainsi que de la possibilité de stationner plusieurs véhicules au sein de la propriété.

Des travaux de rafraîchissement sont à prévoir, mais ils permettront de révéler tout le potentiel de ce bien rare sur le secteur.

Une opportunité à ne pas manquer — contactez-moi pour organiser une visite.


Les informations sur les risques auxquels ce bien est exposé sont disponibles sur le site Géorisques : www.georisques.gouv.fr

Caractéristiques

Prix hors honoraires d'agence
373 000,00 €
Honoraires charge
acquéreur
Pourcentage à la charge de l'acquéreur
1,61%
Type
maison
État général
à rafraîchir
Environnement
urbain
Orientation
Sud
Disponibilité
à l'acte
Construction
1972
Surface terrain
688 m²
Surface habitable
144 m²
Nb. chambres
8
Nb. salles de bains
1
Nb. salles d'eau
1
Nb. cuisines
1
Nb. garages
1
Nb. parking
2
Types de cuisine
aménagée
Chauffages
gaz
Terrasse
Taxe foncière
2 665,00 €

Télécharger le barème des honoraires

Tous les outils pour vos projets immobiliers

Découvrez Mon CID,

mon compagnon immobilier digital

Accès à toutes les ventes immobilières,

boussole à réalité augmentée,

tester le débit de votre futur achat,

calculatrice de mensualité, etc.

Application mobile disponible sur

En savoir plus

Performance énergétique

logement extrêmement performant
bâtiment performantpassoire énergétique
  • A< 70
  • B70 - 110
  • C110 - 180
  • D180 - 250
  • E250 - 330321kWh/m².an65 *kg CO2/m².an
  • F330 - 420
  • G> 420
logement extrêmement peu performant

* Dont émissions de gaz à effet de serre

peu d'émissions de CO2
  • A< 6
  • B6 - 11
  • C11 - 30
  • D30 - 50
  • E50 - 7065kg CO2/m².an
  • F70 - 100
  • G> 100
émissions de CO2 très importantes

Estimation des dépenses annuelles d'énergie pour un usage standard

entre 4 130 € et 5 640 € / an *

* Prix moyens des énergies indexés pour l'année 2023 (abonnement compris).

Simulation de prêt

(10% du prix du bien)
%
(taux moyen hors assurance)

Montant estimé

1684 € / mois *

* Calculs effectués sur la base d'un prêt à taux fixe de 3,37% sur une durée de 25 ans avec un apport de 10% et hors assurance. Le coût de l'assurance de prêt dépend du capital assuré, de votre âge, de la durée du prêt, du taux d'intérêt du prêt, de votre questionnaire de santé et/ou médical, et de votre profession. Les calculs et solutions indiqués ne revêtent aucun caractère contractuel et ne sont en aucun cas une offre de prêt. Seuls les banques et organismes de financement sont habilités à accorder un financement. Pour tout crédit immobilier, vous êtes protégés par un délai de réflexion de 10 jours. Aucun versement de quelque nature que ce soit ne peut être exigé d'un particulier avant l'obtention d'un ou de plusieurs prêts d'argent. L'achat est subordonné à l'obtention du prêt. S'il n'est pas obtenu, le vendeur doit rembourser les sommes versées. Un crédit vous engage et doit être remboursé. Vérifiez vos capacités de remboursement avant de vous engager.

Cette annonce vous intéresse ?

Prenez contact avec Régis Desmoulins (EI)

Régis Desmoulins

Agent commercial en immobilier immatriculé au RSAC de MEAUX sous le n°978394294


ou

Logo La Fédération de l’Immobilier

La Fédé de l’Immo rassemble des agences immobilières indépendantes qui ont choisi d’adhérer à un modèle plus collaboratif, plus puissant et plus moderne. Ici, chaque agence reste indépendante. Mais aucune n’est isolée. En rejoignant La Fédé de l’Immo, les agences mutualisent leurs outils, leur visibilité et leurs opportunités, tout en conservant leur identité locale.

Coordonnées du siège

La Fédération de l’Immobilier
34 avenue des Champs Elysées
Paris, 75008 (France)
+33 3 88 62 97 69
contact@lafede.immo

Chaque Membre de la Fédération est juridiquement et financièrement indépendant.

Filtres SVG
Logo La Fédération de l’Immobilier Logo La Fédération de l’Immobilier La Fédération de l’Immobilier

En poursuivant votre navigation sur ce site, vous acceptez l'utilisation de Cookies pour mesurer l'audience de notre site.

En savoir plus