Description

152 m²
7 pièces
5 chambres
2 garages

À Willer-sur-Thur, découvrez cet ensemble immobilier offrant un beau potentiel, idéal pour un projet familial ou un investissement.

La propriété se compose de :

Une maison principale de 116,66 m² habitables, à rénover, comprenant :
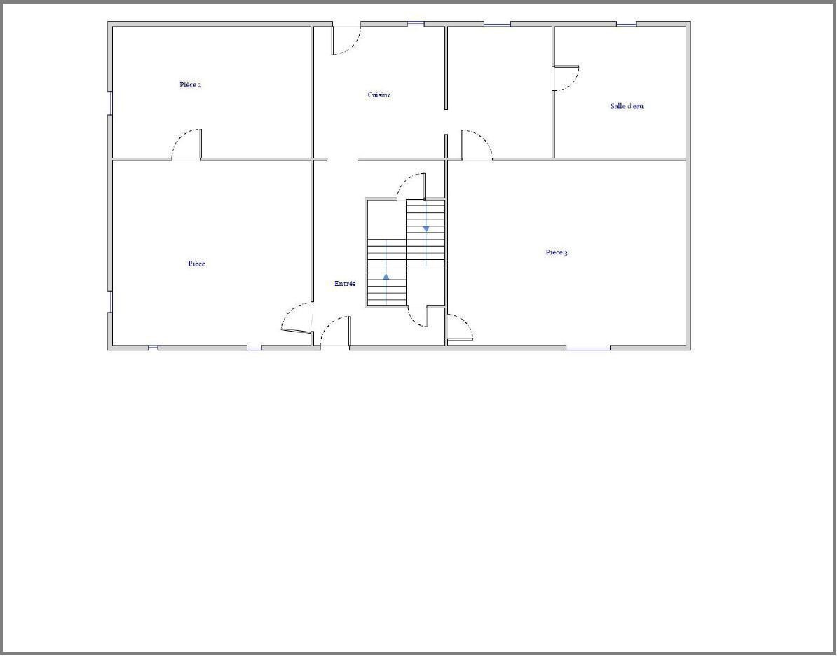
- Au rez-de-chaussée : un salon, deux chambres, une cuisine, un coin repas et une salle d’eau.
- À l’étage : un dégagement pouvant servir de coin bureau, deux chambres et deux greniers.
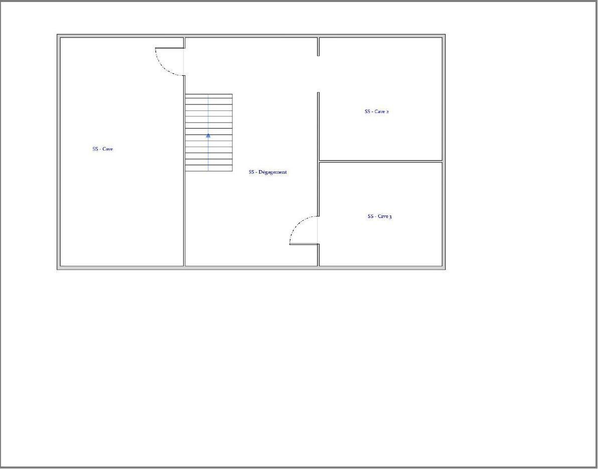
- Au sous-sol : une pièce buanderie chaufferie, deux espaces caves et un troisième espace cave qui était anciennement un magasin de boulangerie.
- Un petit garage attenant sur le côté droit de la maison.

Une dépendance située à l’arrière, comprenant :
- Au rez-de-chaussée : un garage/atelier et, sur la droite, un sas d’entrée avec un escalier menant à l’étage.
- À l’étage : un appartement de 36,84 m² habitables, type F2, avec pièce de vie, cuisine, chambre et salle de bains.

L’ensemble est implanté sur une parcelle optimisée au maximum, avec une place de parking privative.

Un bien à rénover avec du potentiel pour qui saura l’exploiter.

Situation : À proximité des commodités et des axes de circulation, dans un cadre agréable au cœur de la vallée de la Thur.

Intéressé(e) ? Contactez-moi pour plus d’informations ou une visite !

Les informations sur les risques auxquels ce bien est exposé sont disponibles sur le site Géorisques : www.georisques.gouv.fr

Caractéristiques

Honoraires charge
mandant
Type
maison
État général
à rafraîchir
Environnement
village
Disponibilité
à l'acte
Construction
1930
Surface habitable
152 m²
Nb. chambres
5
Nb. salles d'eau
2
Nb. cuisines
2
Nb. garages
2
Nb. parking
1
Types de cuisine
équipée
Chauffages
électricité et gaz
Parking privé
Sous-sol
Cave
Tout à l'égout
Taxe foncière
876,00 €

Télécharger le barème des honoraires

Tous les outils pour vos projets immobiliers

Découvrez Mon CID,

mon compagnon immobilier digital

Accès à toutes les ventes immobilières,

boussole à réalité augmentée,

tester le débit de votre futur achat,

calculatrice de mensualité, etc.

Application mobile disponible sur

En savoir plus

Performance énergétique

logement extrêmement performant
bâtiment performantpassoire énergétique
  • A< 70
  • B70 - 110
  • C110 - 180
  • D180 - 250218kWh/m².an47 *kg CO2/m².an
  • E250 - 330
  • F330 - 420
  • G> 420
logement extrêmement peu performant

* Dont émissions de gaz à effet de serre

peu d'émissions de CO2
  • A< 6
  • B6 - 11
  • C11 - 30
  • D30 - 5047kg CO2/m².an
  • E50 - 70
  • F70 - 100
  • G> 100
émissions de CO2 très importantes

Estimation des dépenses annuelles d'énergie pour un usage standard

entre 1 650 € et 2 280 € / an *

* Prix moyens des énergies indexés pour l'année 2021 (abonnement compris).

Simulation de prêt

(10% du prix du bien)
%
(taux moyen hors assurance)

Montant estimé

559 € / mois *

* Calculs effectués sur la base d'un prêt à taux fixe de 3,43% sur une durée de 25 ans avec un apport de 10% et hors assurance. Le coût de l'assurance de prêt dépend du capital assuré, de votre âge, de la durée du prêt, du taux d'intérêt du prêt, de votre questionnaire de santé et/ou médical, et de votre profession. Les calculs et solutions indiqués ne revêtent aucun caractère contractuel et ne sont en aucun cas une offre de prêt. Seuls les banques et organismes de financement sont habilités à accorder un financement. Pour tout crédit immobilier, vous êtes protégés par un délai de réflexion de 10 jours. Aucun versement de quelque nature que ce soit ne peut être exigé d'un particulier avant l'obtention d'un ou de plusieurs prêts d'argent. L'achat est subordonné à l'obtention du prêt. S'il n'est pas obtenu, le vendeur doit rembourser les sommes versées. Un crédit vous engage et doit être remboursé. Vérifiez vos capacités de remboursement avant de vous engager.

Cette annonce vous intéresse ?

Prenez contact avec Jonathan Gubello (EI)

Jonathan Gubello

Agent commercial en immobilier immatriculé au RSAC de Mulhouse sous le n°478703309

Développeur d'équipe Titan de bronze 2023/2024
Ventes Titan d'argent 2023/2024
Développeur d'équipe Titan de bronze 2024/2025
Ventes Titan d'argent 2024/2025

ou

Autres annonces à découvrir...

Logo La Fédération de l’Immobilier

La Fédé de l’Immo rassemble des agences immobilières indépendantes qui ont choisi d’adhérer à un modèle plus collaboratif, plus puissant et plus moderne. Ici, chaque agence reste indépendante. Mais aucune n’est isolée. En rejoignant La Fédé de l’Immo, les agences mutualisent leurs outils, leur visibilité et leurs opportunités, tout en conservant leur identité locale.

Coordonnées du siège

La Fédération de l’Immobilier
34 avenue des Champs Elysées
Paris, 75008 (France)
+33 3 88 62 97 69
contact@lafede.immo

Chaque Membre de la Fédération est juridiquement et financièrement indépendant.

Filtres SVG
Logo La Fédération de l’Immobilier Logo La Fédération de l’Immobilier La Fédération de l’Immobilier

En poursuivant votre navigation sur ce site, vous acceptez l'utilisation de Cookies pour mesurer l'audience de notre site.

En savoir plus