Description

60 m²
3 pièces
2 chambres

Cet appartement de 3 pièces est situé à la fois dans l'hypercentre et côté jardin de la résidence. Vue dégagée et sans vis-à-vis.
Son emplacement est idéal à proximité des commerces, des écoles. A cinq minutes à pied des transports en commun ligne RER C et trains N, U.
Base de loisir, Golf, centre aquatique, théâtre, universités, pistes cyclables, restaurants.

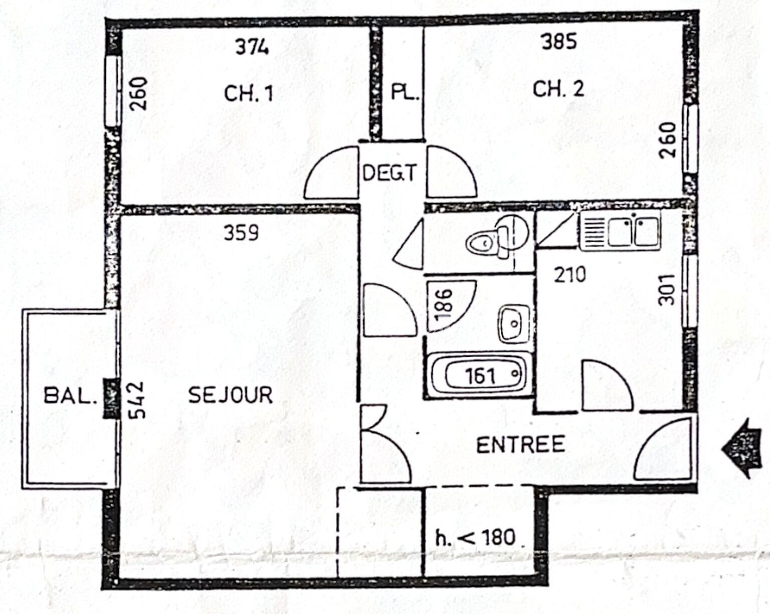
Ce bien est composé de :
- entrée
- cuisine équipé
- séjour donnant sur un balcon sud
- cellier
- deux chambres (dont une avec dressing)
- salle d'eau récente
- WC indépendant

Une cave et une place de parking privée complètent ce bien.

Les plus :
- lumineux
- sans vis-à-vis
- voie piétonne
- rénové avec goût
- double vitrage
- chauffe eau 80L Sauter connecté
- copropriété à faible charges

Contactez-moi dès maintenant pour organiser une visite.


Les informations sur les risques auxquels ce bien est exposé sont disponibles sur le site Géorisques : www.georisques.gouv.fr

Caractéristiques

Honoraires charge
mandant
Type
appartement
État général
très bon
Environnement
centre ville
Disponibilité
à l'acte
Surface habitable
60 m²
Étage
1
Floor count
1
Nb. chambres
2
Nb. salles d'eau
1
Nb. parking
1
Nb. balcons
1
Types de cuisine
équipée
Chauffages
électricité
Parking privé
Cave
Ascenseur
Dernier étage
Bien soumis au statut de la copropriété
Procédure en cours
aucune
Charges budget prévisionnel annuel
1 900,00 €
Nb. de logements
35
Nb. de lots
46
Taxe foncière
1 090,00 €

Télécharger le barème des honoraires

Tous les outils pour vos projets immobiliers

Découvrez Mon CID,

mon compagnon immobilier digital

Accès à toutes les ventes immobilières,

boussole à réalité augmentée,

tester le débit de votre futur achat,

calculatrice de mensualité, etc.

Application mobile disponible sur

En savoir plus

Performance énergétique

logement extrêmement performant
bâtiment performantpassoire énergétique
  • A< 70
  • B70 - 110
  • C110 - 180
  • D180 - 250213kWh/m².an6 *kg CO2/m².an
  • E250 - 330
  • F330 - 420
  • G> 420
logement extrêmement peu performant

* Dont émissions de gaz à effet de serre

peu d'émissions de CO2
  • A< 6
  • B6 - 116kg CO2/m².an
  • C11 - 30
  • D30 - 50
  • E50 - 70
  • F70 - 100
  • G> 100
émissions de CO2 très importantes

Estimation des dépenses annuelles d'énergie pour un usage standard

entre 1 020 € et 1 420 € / an *

* Prix moyens des énergies indexés pour l'année 2023 (abonnement compris).

Simulation de prêt

(10% du prix du bien)
%
(taux moyen hors assurance)

Montant estimé

1232 € / mois *

* Calculs effectués sur la base d'un prêt à taux fixe de 3,31% sur une durée de 25 ans avec un apport de 10% et hors assurance. Le coût de l'assurance de prêt dépend du capital assuré, de votre âge, de la durée du prêt, du taux d'intérêt du prêt, de votre questionnaire de santé et/ou médical, et de votre profession. Les calculs et solutions indiqués ne revêtent aucun caractère contractuel et ne sont en aucun cas une offre de prêt. Seuls les banques et organismes de financement sont habilités à accorder un financement. Pour tout crédit immobilier, vous êtes protégés par un délai de réflexion de 10 jours. Aucun versement de quelque nature que ce soit ne peut être exigé d'un particulier avant l'obtention d'un ou de plusieurs prêts d'argent. L'achat est subordonné à l'obtention du prêt. S'il n'est pas obtenu, le vendeur doit rembourser les sommes versées. Un crédit vous engage et doit être remboursé. Vérifiez vos capacités de remboursement avant de vous engager.

Cette annonce vous intéresse ?

Prenez contact avec Catherine Delaunay (EI)

Catherine Delaunay

Agent commercial en immobilier immatriculé au RSAC de versailles sous le n°819384579


ou

Autres annonces à découvrir...

Logo La Fédération de l'Immobilier

La Fédération de l’Immobilier by LF met à disposition des professionnels une structure éprouvée, alliant outils technologiques, formation et accompagnement de haut niveau. Une vision claire : partager nos ressources pour bâtir un immobilier plus solide, plus agile, plus humain

Coordonnées

La Fédération de l'Immobilier

(France)

Chaque Membre de la Fédération est juridiquement et financièrement indépendant.

Filtres SVG
Logo La Fédération de l'Immobilier Logo La Fédération de l'Immobilier La Fédération de l'Immobilier

En poursuivant votre navigation sur ce site, vous acceptez l'utilisation de Cookies pour mesurer l'audience de notre site.

En savoir plus