Description

66 m²
3 pièces
2 chambres

📍 Porto-Vecchio

Situé dans un environnement calme et recherché, ce 3 pièces offre une surface fonctionnelle, un séjour lumineux, une grande terrasse, ainsi que 2 places de stationnement extérieur privatif.

Une proximité immédiate du centre-ville de Porto-Vecchio et des plus belles plages du Sud Corse : Saint-Cyprien, Palombaggia et Santa-Giulia

✨ Atouts principaux :

- Résidence à taille humaine avec ascenseur
- Terrasses spacieuses
- Environnement résidentiel et naturel
- Prestations haut de gamme

Idéal premier achat ou investissement locatif.
Livraison fin 2026

📞 Contactez-nous pour plus d'informations. D'autres lots disponible sur demande

Les informations sur les risques auxquels ce bien est exposé sont disponibles sur le site Géorisques : www.georisques.gouv.fr

Caractéristiques

Honoraires charge
mandant
Type
appartement
État général
excellent
Environnement
zone Résidentielle
Disponibilité
à l'achèvement
Surface totale
81 m²
Surface habitable
66 m²
Étage
0
Floor count
3
Nb. chambres
2
Nb. salles d'eau
1
Nb. cuisines
1
Nb. parking
2
Chauffages
électricité
Parking privé
Accès handicapé
Ascenseur
Terrasse
Tout à l'égout
V.E.F.A
Rez-de-jardin
Bien soumis au statut de la copropriété
Procédure en cours
aucune
Charges budget prévisionnel annuel
600,00 €
Nb. de logements
15
Nb. de lots
15

Télécharger le barème des honoraires

Tous les outils pour vos projets immobiliers

Découvrez Mon CID,

mon compagnon immobilier digital

Accès à toutes les ventes immobilières,

boussole à réalité augmentée,

tester le débit de votre futur achat,

calculatrice de mensualité, etc.

Application mobile disponible sur

En savoir plus

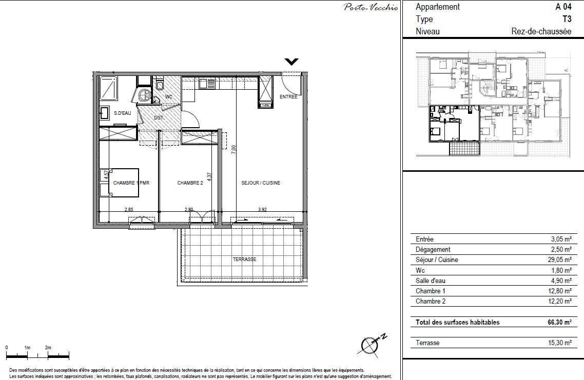
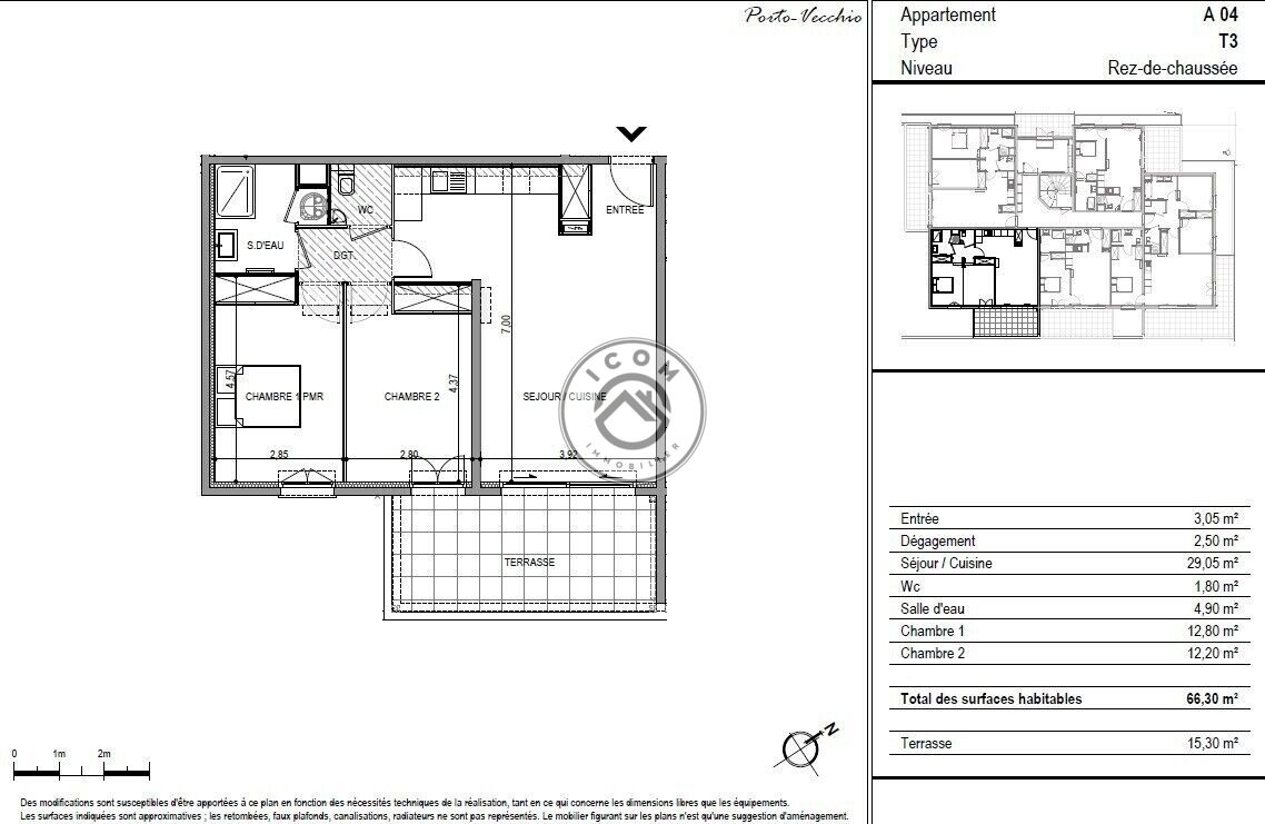
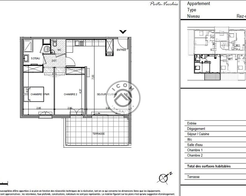
Plans

Détail des pièces

Entrée 3,1 m²
Dégagement 2,5 m²
Séjour/cuisine 29 m²
wc 1,8 m²
Salle d'eau 4,9 m²
Chambre 1 13 m²
Chambre 2 12 m²

Simulation de prêt

(10% du prix du bien)
%
(taux moyen hors assurance)

Montant estimé

1657 € / mois *

* Calculs effectués sur la base d'un prêt à taux fixe de 3,32% sur une durée de 25 ans avec un apport de 10% et hors assurance. Le coût de l'assurance de prêt dépend du capital assuré, de votre âge, de la durée du prêt, du taux d'intérêt du prêt, de votre questionnaire de santé et/ou médical, et de votre profession. Les calculs et solutions indiqués ne revêtent aucun caractère contractuel et ne sont en aucun cas une offre de prêt. Seuls les banques et organismes de financement sont habilités à accorder un financement. Pour tout crédit immobilier, vous êtes protégés par un délai de réflexion de 10 jours. Aucun versement de quelque nature que ce soit ne peut être exigé d'un particulier avant l'obtention d'un ou de plusieurs prêts d'argent. L'achat est subordonné à l'obtention du prêt. S'il n'est pas obtenu, le vendeur doit rembourser les sommes versées. Un crédit vous engage et doit être remboursé. Vérifiez vos capacités de remboursement avant de vous engager.

Cette annonce vous intéresse ?

Prenez contact avec Ludovic Chartier (EI)

Ludovic Chartier

Agent commercial en immobilier immatriculé au RSAC de AJACCIO sous le n°508465895


ou

Logo La Fédé de l'Immo

La Fédé de l’Immo rassemble des agences immobilières indépendantes qui ont choisi d’adhérer à un modèle plus collaboratif, plus puissant et plus moderne. Ici, chaque agence reste indépendante. Mais aucune n’est isolée. En rejoignant La Fédé de l’Immo, les agences mutualisent leurs outils, leur visibilité et leurs opportunités, tout en conservant leur identité locale.

Coordonnées du siège

La Fédé de l'Immo

(France)

Chaque Membre de la Fédération est juridiquement et financièrement indépendant.

Filtres SVG
Logo La Fédé de l'Immo Logo La Fédé de l'Immo La Fédé de l'Immo

En poursuivant votre navigation sur ce site, vous acceptez l'utilisation de Cookies pour mesurer l'audience de notre site.

En savoir plus