Description

150 m²
2700 m²
7 pièces
5 chambres
1 garage
3 sdb

À vendre à Brimeux, cette magnifique maison de 150m² environ sur un terrain de 2700m². Cette propriété spacieuse et lumineuse offre un cadre de vie idéal pour une grande famille. Avec ses 7 pièces (5 chambres: de 14 à 27 m2, et 3 salles de bain), cette maison est parfaite pour accueillir vos proches et amis.

Le chauffage au bois apporte une ambiance chaleureuse et économique et est complété par une pompe à chaleur réversible air/air.
Ce bien est également équipé de 16 m2 de panneaux solaires.

Profitez également d'une belle terrasse avec vue sur le grand jardin pour vous détendre en toute tranquillité.

Un très grand garage, des dépendance, un ancien bureau et une grande cour pourrait faire le bonheur d'un entrepreneur, un artisan ou tout simplement un bricoleur.

Ou pour tout autre projet: une chambre d'environ 30 m2 avec accès extérieur et terrasse pourrait devenir une belle chambre d'hôte.
Ou son ancien magasin et sa réserve pourrait devenir un bel appartement.

Ne manquez pas cette opportunité unique d'acquérir un bien d'exception à 225 000€. Vous avez procédé avec votre étude financière, Alors, contactez-moi dès à présent pour organiser une visite et laissez-vous séduire par cette maison qui n'attend que vous.

Les informations sur les risques auxquels ce bien est exposé sont disponibles sur le site Géorisques : www.georisques.gouv.fr

Caractéristiques

Prix hors honoraires d'agence
220 000,00 €
Honoraires charge
acquéreur
Pourcentage à la charge de l'acquéreur
2,27%
Type
maison
État général
bon
Environnement
village
Disponibilité
immédiate
Rénovation
2011
Surface terrain
2700 m²
Surface habitable
150 m²
Nb. chambres
5
Nb. salles de bains
3
Nb. cuisines
1
Nb. garages
1
Nb. parking
6
Nb. balcons
1
Types de cuisine
américaine
Chauffages
bois
Cave
Terrasse
Fosse septique (ANC)
Taxe foncière
2 611,00 €

Télécharger le barème des honoraires

Localisation Brimeux, 62170

Tous les outils pour vos projets immobiliers

Découvrez Mon CID,

mon compagnon immobilier digital

Accès à toutes les ventes immobilières,

boussole à réalité augmentée,

tester le débit de votre futur achat,

calculatrice de mensualité, etc.

Application mobile disponible sur

En savoir plus

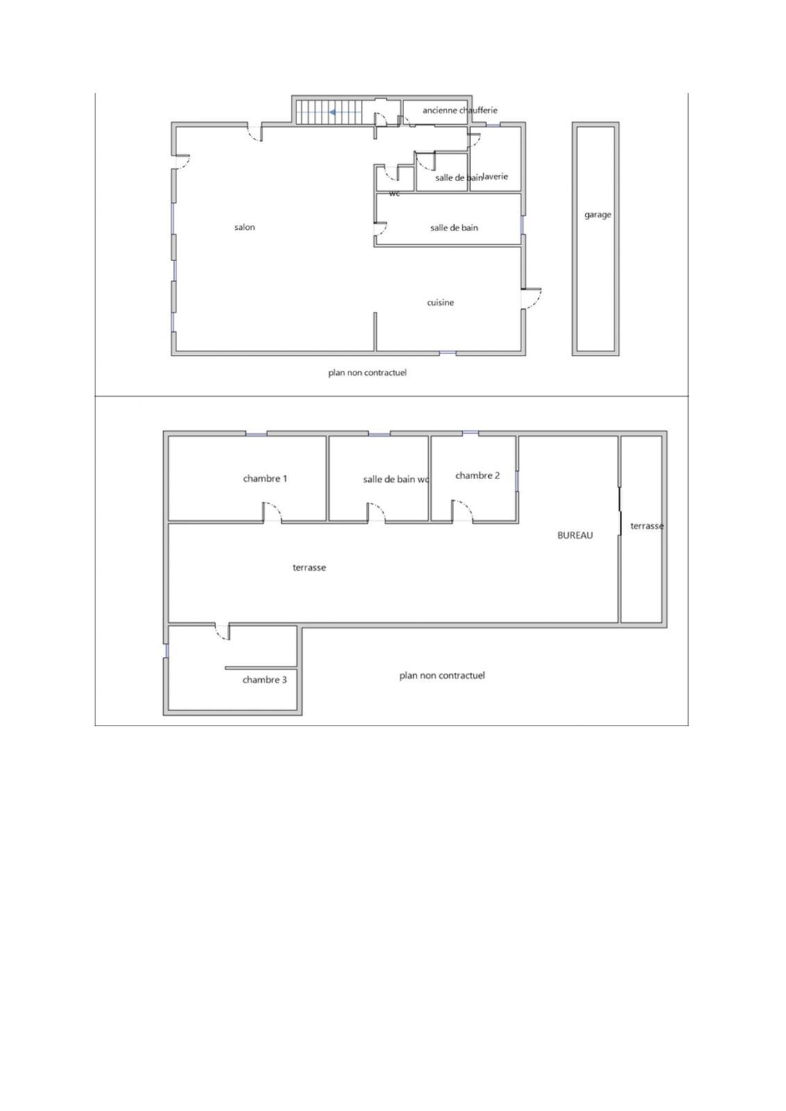
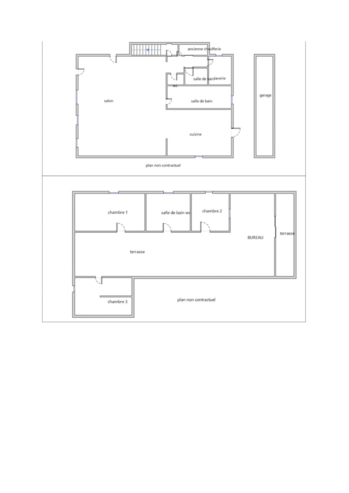
Plans

Détail des pièces

cave 8 m²

pièce d vie 35 m²
cuisine ouverte 8,5 m²
salle de bain 10 m²
salle de bain 5 m²
buanderie 4 m²
cellier 3 m²
ancien magasin 100 m²
ancienne réserve 65 m²
chambre 14 m²
chambre/bureau 30 m²
salle de bain 8 m²
garage 350 m²
ancien bureau 15 m²
dépendance 5 m²

chambre 16 m²

chambre 19 m²
dépendance

Performance énergétique

logement extrêmement performant
bâtiment performantpassoire énergétique
  • A< 70
  • B70 - 110
  • C110 - 180
  • D180 - 250
  • E250 - 330
  • F330 - 420
  • G> 420
logement extrêmement peu performant

* Dont émissions de gaz à effet de serre

peu d'émissions de CO2
  • A< 6
  • B6 - 11
  • C11 - 30
  • D30 - 50
  • E50 - 70
  • F70 - 100
  • G> 100
émissions de CO2 très importantes

Estimation des dépenses annuelles d'énergie pour un usage standard

entre 1 300 € et 1 600 € / an *

* Prix moyens des énergies indexés pour l'année 2021 (abonnement compris).

Simulation de prêt

(10% du prix du bien)
%
(taux moyen hors assurance)

Montant estimé

993 € / mois *

* Calculs effectués sur la base d'un prêt à taux fixe de 3,31% sur une durée de 25 ans avec un apport de 10% et hors assurance. Le coût de l'assurance de prêt dépend du capital assuré, de votre âge, de la durée du prêt, du taux d'intérêt du prêt, de votre questionnaire de santé et/ou médical, et de votre profession. Les calculs et solutions indiqués ne revêtent aucun caractère contractuel et ne sont en aucun cas une offre de prêt. Seuls les banques et organismes de financement sont habilités à accorder un financement. Pour tout crédit immobilier, vous êtes protégés par un délai de réflexion de 10 jours. Aucun versement de quelque nature que ce soit ne peut être exigé d'un particulier avant l'obtention d'un ou de plusieurs prêts d'argent. L'achat est subordonné à l'obtention du prêt. S'il n'est pas obtenu, le vendeur doit rembourser les sommes versées. Un crédit vous engage et doit être remboursé. Vérifiez vos capacités de remboursement avant de vous engager.

Cette annonce vous intéresse ?

Prenez contact avec Nathalie Gasc-Prin (EI)

Nathalie Gasc-Prin

Agent commercial en immobilier immatriculé au RSAC de BOULOGNE SUR MER sous le n°921874665


ou

Logo La Fédération de l'Immobilier

La Fédération de l’Immobilier by LF met à disposition des professionnels une structure éprouvée, alliant outils technologiques, formation et accompagnement de haut niveau. Une vision claire : partager nos ressources pour bâtir un immobilier plus solide, plus agile, plus humain

Coordonnées

La Fédération de l'Immobilier

(France)

Chaque Membre de la Fédération est juridiquement et financièrement indépendant.

Filtres SVG
Logo La Fédération de l'Immobilier Logo La Fédération de l'Immobilier La Fédération de l'Immobilier

En poursuivant votre navigation sur ce site, vous acceptez l'utilisation de Cookies pour mesurer l'audience de notre site.

En savoir plus