Description

280 m²
260 m²
8 pièces
4 chambres
1 garage
1 sdb

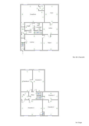
À vendre à Pierre-Buffière, en France, cette charmante maison de village offrira un cadre de vie idéal pour une famille ou un investisseur : 2 appartements possible. Avec une surface habitable de 228 m² et un terrain indépendant de 260 m², cette propriété spacieuse et lumineuse propose 8 pièces pour répondre à tous vos besoins.

Une fois fini de rénové, ses beaux volumes vous permettent dès le rez-de-chaussée de prévoir un salon chaleureux, une cuisine moderne et une salle à manger conviviale. L'étage se compose de 4 chambres confortables, idéales pour accueillir toute la famille. Deux salles de bains pourront compléter cet espace pour un confort optimal.
Notez qu'en l'état, il n'y a plus de système de chauffage, donc pas de Dpe, les autres diagnostics ont été réalisés.

Profitez également d'un agréable jardin, indépendant, pour des moments de détente en plein air, pour faire un potager en profitant d'une jolie vue panoramique sur la vallée de la Briance.
Le prix de vente de 111 000€ en fait une opportunité à ne pas manquer dans cette région prisée.

Ne manquez pas l'occasion d'acquérir cette maison de ville à Pierre-Buffière. Contactez-nous dès maintenant pour organiser une visite et découvrir tous les avantages de cette propriété.

Les informations sur les risques auxquels ce bien est exposé sont disponibles sur le site Géorisques : www.georisques.gouv.fr

Caractéristiques

Honoraires charge
mandant
Type
maison de ville
État général
à rénover entièrement
Environnement
village
Orientation
Est
Disponibilité
à l'acte
Construction
1960
Surface totale
280 m²
Surface terrain
260 m²
Surface habitable
280 m²
Nb. chambres
4
Nb. salles de bains
1
Nb. salles d'eau
1
Nb. cuisines
1
Nb. garages
1
Nb. parking
1
Nb. balcons
0
Cave
Tout à l'égout
Taxe foncière
990,00 €

Télécharger le barème des honoraires

Localisation Pierre-Buffière, 87260

Pour des raisons de confidentialité, la géolocalisation de ce bien a été dégradée.

Tous les outils pour vos projets immobiliers

Découvrez Mon CID,

mon compagnon immobilier digital

Accès à toutes les ventes immobilières,

boussole à réalité augmentée,

tester le débit de votre futur achat,

calculatrice de mensualité, etc.

Application mobile disponible sur

En savoir plus

Performance énergétique

logement extrêmement performant
bâtiment performantpassoire énergétique
  • A< 70
  • B70 - 110
  • C110 - 180
  • D180 - 250
  • E250 - 330
  • F330 - 420
  • G> 420
logement extrêmement peu performant

* Dont émissions de gaz à effet de serre

peu d'émissions de CO2
  • A< 6
  • B6 - 11
  • C11 - 30
  • D30 - 50
  • E50 - 70
  • F70 - 100
  • G> 100
émissions de CO2 très importantes

Simulation de prêt

(10% du prix du bien)
%
(taux moyen hors assurance)

Montant estimé

342 € / mois *

* Calculs effectués sur la base d'un prêt à taux fixe de 3,37% sur une durée de 25 ans avec un apport de 10% et hors assurance. Le coût de l'assurance de prêt dépend du capital assuré, de votre âge, de la durée du prêt, du taux d'intérêt du prêt, de votre questionnaire de santé et/ou médical, et de votre profession. Les calculs et solutions indiqués ne revêtent aucun caractère contractuel et ne sont en aucun cas une offre de prêt. Seuls les banques et organismes de financement sont habilités à accorder un financement. Pour tout crédit immobilier, vous êtes protégés par un délai de réflexion de 10 jours. Aucun versement de quelque nature que ce soit ne peut être exigé d'un particulier avant l'obtention d'un ou de plusieurs prêts d'argent. L'achat est subordonné à l'obtention du prêt. S'il n'est pas obtenu, le vendeur doit rembourser les sommes versées. Un crédit vous engage et doit être remboursé. Vérifiez vos capacités de remboursement avant de vous engager.

Cette annonce vous intéresse ?

Prenez contact avec Ludovic Cornillon (EI)

Ludovic Cornillon

Agent commercial en immobilier immatriculé au RSAC de LIMOGES sous le n°492413026


ou

Logo La Fédération de l’Immobilier

La Fédé de l’Immo rassemble des agences immobilières indépendantes qui ont choisi d’adhérer à un modèle plus collaboratif, plus puissant et plus moderne. Ici, chaque agence reste indépendante. Mais aucune n’est isolée. En rejoignant La Fédé de l’Immo, les agences mutualisent leurs outils, leur visibilité et leurs opportunités, tout en conservant leur identité locale.

Coordonnées du siège

La Fédération de l’Immobilier
34 avenue des Champs Elysées
Paris, 75008 (France)
+33 3 88 62 97 69
contact@lafede.immo

Chaque Membre de la Fédération est juridiquement et financièrement indépendant.

Filtres SVG
Logo La Fédération de l’Immobilier Logo La Fédération de l’Immobilier La Fédération de l’Immobilier

En poursuivant votre navigation sur ce site, vous acceptez l'utilisation de Cookies pour mesurer l'audience de notre site.

En savoir plus