Description

263 m²
675 m²
7 pièces
6 chambres
2 garages
2 sdb

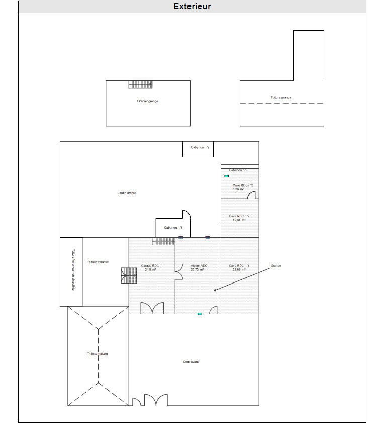
Je vous invite à découvrir cette spacieuse maison à fort potentiel d'environ 263m² habitables + de grandes remises attenantes dont 1 partie a servi de stationnement pour camping-car, le tout pouvant être transformé en logements sur une surface au sol d'environ 217m² (dépendances et annexes).

Vous accèderez par un grand portail sur une spacieuse cour totalement fermée avec une capacité de stationnement de plusieurs véhicules ainsi qu'un van ou un camping-car.

Nous entrons dans un sas vitré avec porte et baie coulissante, 1 dégagement de 7m² donnant sur une vaste pièce ouverte le séjour et salle à manger de 56m², très lumineuse ainsi qu'une cuisine de 12m².

Au niveau intermédiaire (entre le rdc et le 1er étage), vous trouverez 1 chambre de 35m², donnant sur un dégagement de 6m² où vous accèderez également à une véranda de 16m² pour vous détendre et laisser libre cours à votre imagination d'aménagement.

Dans la continuité de ces surfaces vous pouvez aménager les granges attenantes à votre guise.

Au 1er étage vous trouverez 4 chambres de 26m², 16m² et 2x 10m² avec également un dégagement de 6m² ainsi qu'une salle de bain de 9m².

Au 2e étage vous bénéficierez d'une chambre de 22m², d'une salle d'eau de 15m², d'un wc, d'un débarras de 11m² ainsi qu'un dégagement de 9m². Des rangements sont existants sous chaque pente de toit (20m²).

À l'arrière vous serez agréablement surpris par un bel et spacieux espace vert sans vis-à-vis totalement clôturé.

Le chauffage est au gaz de ville avec radiateurs reliés à la chaudière.

Cette maison a subit à incendie au rez-de-chaussée ayant endommagé une partie du plancher et noircit les murs.

L'électricité est à refaire dans son intégralité ainsi que des rafraîchissements et quelques fenêtres sont à remplacer.

Le prix de vente de ce bien à fort potentiel tient compte des rénovations et travaux à réaliser.

N'hésitez pas à me contacter afin de réaliser une visite

Les informations sur les risques auxquels ce bien est exposé sont disponibles sur le site Géorisques : www.georisques.gouv.fr

Caractéristiques

Honoraires charge
mandant
Type
maison
État général
à rénover
Environnement
village
Disponibilité
à l'acte
Construction
1918
Surface totale
265 m²
Surface terrain
675 m²
Surface habitable
263 m²
Nb. chambres
6
Nb. salles de bains
2
Nb. salles d'eau
4
Nb. cuisines
1
Nb. garages
2
Nb. parking
3
Chauffages
gaz
Parking privé
Sous-sol
Cave
Terrasse
Tout à l'égout
Taxe foncière
690,00 €

Télécharger le barème des honoraires

Tous les outils pour vos projets immobiliers

Découvrez Mon CID,

mon compagnon immobilier digital

Accès à toutes les ventes immobilières,

boussole à réalité augmentée,

tester le débit de votre futur achat,

calculatrice de mensualité, etc.

Application mobile disponible sur

En savoir plus

Performance énergétique

logement extrêmement performant
bâtiment performantpassoire énergétique
  • A< 70
  • B70 - 110
  • C110 - 180
  • D180 - 250
  • E250 - 330242kWh/m².an53 *kg CO2/m².an
  • F330 - 420
  • G> 420
logement extrêmement peu performant

* Dont émissions de gaz à effet de serre

peu d'émissions de CO2
  • A< 6
  • B6 - 11
  • C11 - 30
  • D30 - 50
  • E50 - 7053kg CO2/m².an
  • F70 - 100
  • G> 100
émissions de CO2 très importantes

Estimation des dépenses annuelles d'énergie pour un usage standard

entre 2 000 € et 3 500 € / an *

* Prix moyens des énergies indexés pour l'année 2022 (abonnement compris).

Déjà vendu !

par Martine Boos (EI)

Martine Boos

Agent commercial en immobilier immatriculé au RSAC de STRASBOURG sous le n°500065685

Autres annonces à découvrir...

Logo La Fédération de l’Immobilier

La Fédé de l’Immo rassemble des agences immobilières indépendantes qui ont choisi d’adhérer à un modèle plus collaboratif, plus puissant et plus moderne. Ici, chaque agence reste indépendante. Mais aucune n’est isolée. En rejoignant La Fédé de l’Immo, les agences mutualisent leurs outils, leur visibilité et leurs opportunités, tout en conservant leur identité locale.

Coordonnées du siège

La Fédération de l’Immobilier
34 avenue des Champs Elysées
Paris, 75008 (France)
+33 3 88 62 97 69
contact@lafede.immo

Chaque Membre de la Fédération est juridiquement et financièrement indépendant.

Filtres SVG
Logo La Fédération de l’Immobilier Logo La Fédération de l’Immobilier La Fédération de l’Immobilier

En poursuivant votre navigation sur ce site, vous acceptez l'utilisation de Cookies pour mesurer l'audience de notre site.

En savoir plus