Description

230 m²
10 pièces
7 chambres
1 garage

Grande maison de caractère rénovée – 229 m² habitables – 3 logements existants + combles + garage – Extérieurs – Alignan-du-Vent (34)

Idéalement située au cœur du village d’Alignan-du-Vent, à 10 minutes de Pézenas et 25 minutes des plages, cette maison ancienne entièrement rénovée de 229 m² habitables offre un potentiel exceptionnel : résidence familiale, investissement locatif ou habitat multiple.

Les points forts :

3 logements déjà distincts, prêts à l’usage ou à la location

Combles aménageables + garage de 88 m², offrant encore plus de possibilités

3 extérieurs indépendants : cour, terrasse privative, balcon

Travaux récents : toiture, isolation, double vitrage, climatisations, électricité, plomberie

Cachet préservé : pierre, parquets, carreaux de ciment

Situation pratique : commerces, écoles, parkings publics gratuits à pied

Composition du bien :

Rez-de-chaussée :

Appartement T3 de 62 m² avec terrasse privative

Pièce indépendante (possibilité studio ou bureau professionnel)

Cour en pierre avec puits fonctionnel

Garage de 88 m², grande hauteur (6 à 10 m), aménageable en logement duplex ou local professionnel

1er étage :

Appartement T4 de 95 m² avec balcon/terrasse exposé sud-ouest

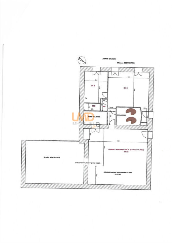
2e étage :

Appartement T2 de 46 m² avec chambre, salle d’eau, WC séparés

Combles aménageables (39 m² avec hauteur sous plafond > 1,80 m)

Permis de construire accordé pour une terrasse tropézienne de 50 m² avec vue dégagée

Confort & techniques :

DPE : Classe C – GES : A

Isolation performante (murs, planchers, combles)

Cumulus et climatisations réversibles indépendants

Électricité et plomberie intégralement refaites

Éléments anciens conservés : murs en pierre, encadrements bois, hauteurs sous plafond

Usages envisageables :

Résidence principale familiale avec espaces séparés

Habitat partagé ou intergénérationnel

Locatif meublé, colocation, saisonnier (jusqu’à 6 ou 7 logements)

Activité professionnelle au rez-de-chaussée + logement

Résidence principale + revenus locatifs

Potentiel locatif (hors vacance) :
Logement Loyer estimé mensuel
T3 RDC 650 à 700 €
T4 1er étage 750 à 800 €
T2 + combles 2e étage 550 à 600 €
Studio / garage 450 à 500 €
Total annuel brut Jusqu’à 45 000 €

Rentabilité brute estimée : entre 8 et 10,7 % selon la stratégie locative choisie.

Informations à noter :

Conformément aux règles d’urbanisme locales, une place de stationnement est requise par logement créé.
Un projet de division importante devra donc intégrer la création de stationnements dans le garage, ou un aménagement en conséquence. Cette donnée est connue et intégrée dans les discussions avec les porteurs de projet.

Environnement & localisation :

Alignan-du-Vent : commune active et agréable entre mer et vignobles

À 10 min de Pézenas, 20 min de Béziers, 25 min des plages

Écoles maternelle et primaire à pied

Commerces de proximité à 2 minutes

2 parkings publics gratuits à moins de 30 mètres

Dossier complet disponible sur demande :
Plans, diagnostics, permis, photos, estimation locative, etc.

Maison vendue libre de toute occupation – Prête à être habitée, louée ou restructurée.
Inter-agences bienvenues. Collaborations ouvertes avec les confrères du secteur.

Les informations sur les risques auxquels ce bien est exposé sont disponibles sur le site Géorisques : www.georisques.gouv.fr

Caractéristiques

Honoraires charge
mandant
Type
maison
État général
bon
Environnement
village
Orientation
Sud
Disponibilité
à l'acte
Construction
1948
Surface habitable
230 m²
Nb. chambres
7
Nb. salles d'eau
4
Nb. cuisines
2
Nb. garages
1
Nb. balcons
1
Types de cuisine
équipée et aménagée
Chauffages
électricité et clim réversible
Terrasse
Tout à l'égout
Taxe foncière
233,00 €

Télécharger le barème des honoraires

Localisation Alignan-Du-Vent, 34290

Pour des raisons de confidentialité, la géolocalisation de ce bien a été dégradée.

Tous les outils pour vos projets immobiliers

Découvrez Mon CID,

mon compagnon immobilier digital

Accès à toutes les ventes immobilières,

boussole à réalité augmentée,

tester le débit de votre futur achat,

calculatrice de mensualité, etc.

Application mobile disponible sur

En savoir plus

Détail des pièces

Séjour 16 m²
Cuisine 9,5 m²
Chambre 1 10 m²
Chambre 2 14 m²
Salle d'eau 5,9 m²
WC séparé 1,2 m²
Couloir vers cuisine 2,7 m²
Couloir vers chambres 2,6 m²
Studio 15 m²
Couloir et dégagement 12 m²
Cour intérieure avec puit 15 m²
Terrasse 20 m²

Séjour 24 m²
Coin rangement 2,5 m²
Cusine équipée 12 m²
Cellier 4 m²
Couloir 1 2,5 m²
Couloir 2 3,3 m²
Chambre 1 14 m²
Chambre 2 12 m²
Chambre 3 9 m²
Salle d'eau + WC 7,9 m²
Salle d'eau 3,4 m²
WC séparé 1,5 m²
Terrasse 20 m²

Chambre 4 13 m²
Chambre 5 28 m²
Salle d'eau 2 m²
WC séparé 1,3 m²
Couloir 2,3 m²
Combles aménageables 39 m²
Combles non-aménageables 19 m²

Garage

Performance énergétique

logement extrêmement performant
bâtiment performantpassoire énergétique
  • A< 70
  • B70 - 110
  • C110 - 180135kWh/m².an4 *kg CO2/m².an
  • D180 - 250
  • E250 - 330
  • F330 - 420
  • G> 420
logement extrêmement peu performant

* Dont émissions de gaz à effet de serre

peu d'émissions de CO2
  • A< 64kg CO2/m².an
  • B6 - 11
  • C11 - 30
  • D30 - 50
  • E50 - 70
  • F70 - 100
  • G> 100
émissions de CO2 très importantes

Estimation des dépenses annuelles d'énergie pour un usage standard

entre 1 450 € et 2 010 € / an *

* Prix moyens des énergies indexés pour l'année 2021 (abonnement compris).

Simulation de prêt

(10% du prix du bien)
%
(taux moyen hors assurance)

Montant estimé

1607 € / mois *

* Calculs effectués sur la base d'un prêt à taux fixe de 3,31% sur une durée de 25 ans avec un apport de 10% et hors assurance. Le coût de l'assurance de prêt dépend du capital assuré, de votre âge, de la durée du prêt, du taux d'intérêt du prêt, de votre questionnaire de santé et/ou médical, et de votre profession. Les calculs et solutions indiqués ne revêtent aucun caractère contractuel et ne sont en aucun cas une offre de prêt. Seuls les banques et organismes de financement sont habilités à accorder un financement. Pour tout crédit immobilier, vous êtes protégés par un délai de réflexion de 10 jours. Aucun versement de quelque nature que ce soit ne peut être exigé d'un particulier avant l'obtention d'un ou de plusieurs prêts d'argent. L'achat est subordonné à l'obtention du prêt. S'il n'est pas obtenu, le vendeur doit rembourser les sommes versées. Un crédit vous engage et doit être remboursé. Vérifiez vos capacités de remboursement avant de vous engager.

Cette annonce vous intéresse ?

Prenez contact avec Christelle Nou (EI)

Christelle Nou

Agent commercial en immobilier immatriculé au RSAC de Béziers sous le n°437531742


ou

Logo La Fédération de l'Immobilier

La Fédération de l’Immobilier by LF met à disposition des professionnels une structure éprouvée, alliant outils technologiques, formation et accompagnement de haut niveau. Une vision claire : partager nos ressources pour bâtir un immobilier plus solide, plus agile, plus humain

Coordonnées

La Fédération de l'Immobilier

(France)

Chaque Membre de la Fédération est juridiquement et financièrement indépendant.

Filtres SVG
Logo La Fédération de l'Immobilier Logo La Fédération de l'Immobilier La Fédération de l'Immobilier

En poursuivant votre navigation sur ce site, vous acceptez l'utilisation de Cookies pour mesurer l'audience de notre site.

En savoir plus