Description

106 m²
5 pièces
3 chambres
1 sdb

Présentée par Samir Omais – By LF
À seulement 15 minutes de Ganges et 1h de Montpellier.

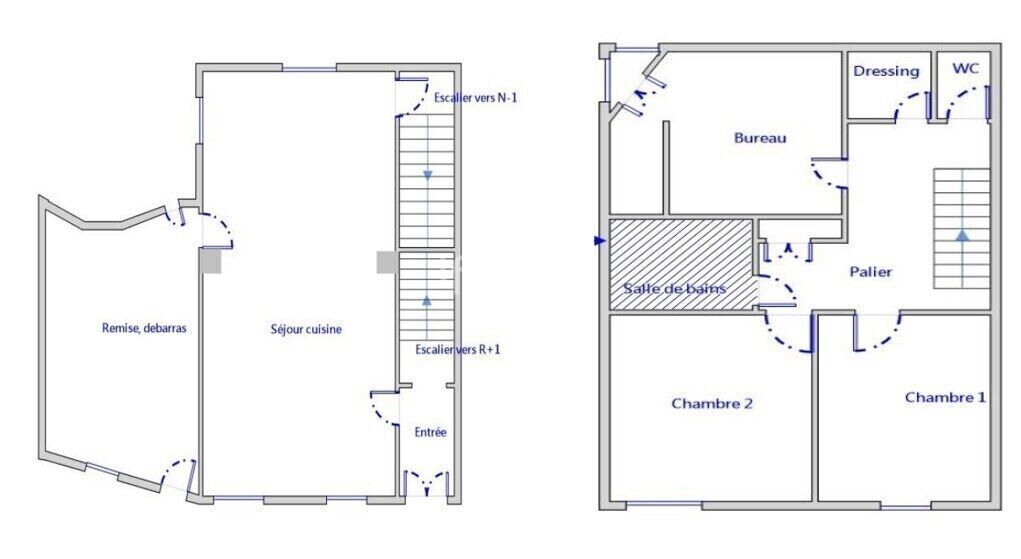
Idéalement située dans le quartier de la Placette, au cœur de la charmante commune de Sumène, cette maison de ville de 106 m² se compose d’un rez-de-chaussée et d’un étage.

Au rez-de-chaussée :
Spacieuse pièce de vie traversante avec cuisine ouverte (environ 45 m²)
Accès direct à une remise avec de belles possibilités d’aménagement

À l’étage :
Trois chambres, dont une avec véranda
Salle de bain, WC séparés et cellier
Belle hauteur sous les toits et combles offrant un fort potentiel supplémentaire

Commodités à proximité : boulangerie, restaurants, mairie, école.
Côté transport : ligne de bus 102 pour rejoindre Ganges facilement.

Les + : potentiel d’agrandissement des volumes grâce aux combles, charme de l’ancien, quartier agréable et central.

Ce bien rare est un excellent compromis entre authenticité et modernité, et deviendra sans nul doute un véritable bijou après quelques travaux de mise en valeur.

Opportunité à saisir rapidement !

Les informations sur les risques auxquels ce bien est exposé sont disponibles sur le site Géorisques : www.georisques.gouv.fr

Caractéristiques

Honoraires charge
mandant
Type
maison de ville
État général
à rafraîchir
Environnement
village
Disponibilité
à l'acte
Construction
1900
Surface habitable
106 m²
Nb. chambres
3
Nb. salles de bains
1
Chauffages
électricité
Sous-sol
Cave
Taxe foncière
906,00 €

Télécharger le barème des honoraires

Localisation Sumène, 30440

Tous les outils pour vos projets immobiliers

Découvrez Mon CID,

mon compagnon immobilier digital

Accès à toutes les ventes immobilières,

boussole à réalité augmentée,

tester le débit de votre futur achat,

calculatrice de mensualité, etc.

Application mobile disponible sur

En savoir plus

Plans

Performance énergétique

logement extrêmement performant
bâtiment performantpassoire énergétique
  • A< 70
  • B70 - 110
  • C110 - 180
  • D180 - 250
  • E250 - 330
  • F330 - 420339kWh/m².an11 *kg CO2/m².anLogement à consommation énergétique excessive
  • G> 420
logement extrêmement peu performant

* Dont émissions de gaz à effet de serre

peu d'émissions de CO2
  • A< 6
  • B6 - 11
  • C11 - 3011kg CO2/m².an
  • D30 - 50
  • E50 - 70
  • F70 - 100
  • G> 100
émissions de CO2 très importantes

Estimation des dépenses annuelles d'énergie pour un usage standard

entre 1 900 € et 2 620 € / an *

* Prix moyens des énergies indexés pour l'année 2021 (abonnement compris).

Simulation de prêt

(10% du prix du bien)
%
(taux moyen hors assurance)

Montant estimé

331 € / mois *

* Calculs effectués sur la base d'un prêt à taux fixe de 3,31% sur une durée de 25 ans avec un apport de 10% et hors assurance. Le coût de l'assurance de prêt dépend du capital assuré, de votre âge, de la durée du prêt, du taux d'intérêt du prêt, de votre questionnaire de santé et/ou médical, et de votre profession. Les calculs et solutions indiqués ne revêtent aucun caractère contractuel et ne sont en aucun cas une offre de prêt. Seuls les banques et organismes de financement sont habilités à accorder un financement. Pour tout crédit immobilier, vous êtes protégés par un délai de réflexion de 10 jours. Aucun versement de quelque nature que ce soit ne peut être exigé d'un particulier avant l'obtention d'un ou de plusieurs prêts d'argent. L'achat est subordonné à l'obtention du prêt. S'il n'est pas obtenu, le vendeur doit rembourser les sommes versées. Un crédit vous engage et doit être remboursé. Vérifiez vos capacités de remboursement avant de vous engager.

Cette annonce vous intéresse ?

Prenez contact avec Samir Omais (EI)

Samir Omais

Agent commercial en immobilier immatriculé au RSAC de Montpellier sous le n°921295887

Ventes Titan de bronze 2024/2025

ou

Logo La Fédération de l'Immobilier

La Fédération de l’Immobilier by LF met à disposition des professionnels une structure éprouvée, alliant outils technologiques, formation et accompagnement de haut niveau. Une vision claire : partager nos ressources pour bâtir un immobilier plus solide, plus agile, plus humain

Coordonnées

La Fédération de l'Immobilier

(France)

Chaque Membre de la Fédération est juridiquement et financièrement indépendant.

Filtres SVG
Logo La Fédération de l'Immobilier Logo La Fédération de l'Immobilier La Fédération de l'Immobilier

En poursuivant votre navigation sur ce site, vous acceptez l'utilisation de Cookies pour mesurer l'audience de notre site.

En savoir plus