Description

97 m²
1651 m²
4 pièces
2 chambres
piscine
1 sdb

Maison sous offre acceptée. Visites arrêtées. Michel Furling vous propose en exclusivité cette charmante maison en pierre située sur les hauteurs des Eyzies dans un petit hameau calme et verdoyant. Vous serez séduits par la belle vue panoramique, le joli jardin bien entretenu, la belle piscine de 4x8m avec sa terrasse, la terrasse couverte accessible directement de la cuisine et du séjour, qui vous permettront de passer de beaux moments de détente, seuls, en famille ou avec des amis.
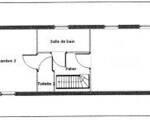
La maison dispose au rez-de-chaussée d'un salon lumineux de 36m², d'une cuisine équipée de 19m², d'une chambre de 10m² avec sa salle d'eau équipée d'une grande douche, d'un WC séparé et d'une buanderie.
A l'étage, vous trouverez une chambre de 11m², une salle de bain avec baignoire et douche, un WC séparé, un bureau et un dressing.
Vous souhaitez en savoir plus ou programmer une visite ? Contactez-moi vite au 06 46 80 29 11.

Les informations sur les risques auxquels ce bien est exposé sont disponibles sur le site Géorisques : www.georisques.gouv.fr

Caractéristiques

Honoraires charge
mandant
Type
maison
État général
très bon
Environnement
campagne non-isolée
Disponibilité
à l'acte
Construction
1910
Rénovation
2011
Surface terrain
1651 m²
Surface habitable
97 m²
Nb. chambres
2
Nb. salles de bains
1
Nb. salles d'eau
1
Nb. cuisines
1
Types de cuisine
équipée
Chauffages
bois et électricité
Parking privé
Terrasse
Piscine
Fosse septique (ANC)

Télécharger le barème des honoraires

Localisation Les Eyzies, 24620

Pour des raisons de confidentialité, la géolocalisation de ce bien a été dégradée.

Tous les outils pour vos projets immobiliers

Découvrez Mon CID,

mon compagnon immobilier digital

Accès à toutes les ventes immobilières,

boussole à réalité augmentée,

tester le débit de votre futur achat,

calculatrice de mensualité, etc.

Application mobile disponible sur

En savoir plus

Performance énergétique

logement extrêmement performant
bâtiment performantpassoire énergétique
  • A< 70
  • B70 - 110
  • C110 - 180
  • D180 - 250
  • E250 - 330287kWh/m².an10 *kg CO2/m².an
  • F330 - 420
  • G> 420
logement extrêmement peu performant

* Dont émissions de gaz à effet de serre

peu d'émissions de CO2
  • A< 6
  • B6 - 1110kg CO2/m².an
  • C11 - 30
  • D30 - 50
  • E50 - 70
  • F70 - 100
  • G> 100
émissions de CO2 très importantes

Estimation des dépenses annuelles d'énergie pour un usage standard

entre 2 210 € et 3 030 € / an *

* Prix moyens des énergies indexés pour l'année 2026 (abonnement compris).

Simulation de prêt

(10% du prix du bien)
%
(taux moyen hors assurance)

Montant estimé

1440 € / mois *

* Calculs effectués sur la base d'un prêt à taux fixe de 3,43% sur une durée de 25 ans avec un apport de 10% et hors assurance. Le coût de l'assurance de prêt dépend du capital assuré, de votre âge, de la durée du prêt, du taux d'intérêt du prêt, de votre questionnaire de santé et/ou médical, et de votre profession. Les calculs et solutions indiqués ne revêtent aucun caractère contractuel et ne sont en aucun cas une offre de prêt. Seuls les banques et organismes de financement sont habilités à accorder un financement. Pour tout crédit immobilier, vous êtes protégés par un délai de réflexion de 10 jours. Aucun versement de quelque nature que ce soit ne peut être exigé d'un particulier avant l'obtention d'un ou de plusieurs prêts d'argent. L'achat est subordonné à l'obtention du prêt. S'il n'est pas obtenu, le vendeur doit rembourser les sommes versées. Un crédit vous engage et doit être remboursé. Vérifiez vos capacités de remboursement avant de vous engager.

Cette annonce vous intéresse ?

Prenez contact avec Michel Furling (EI)

Michel Furling

Agent commercial en immobilier immatriculé au RSAC de Bergerac sous le n°434898532


ou

Logo La Fédération de l’Immobilier

La Fédé de l’Immo rassemble des agences immobilières indépendantes qui ont choisi d’adhérer à un modèle plus collaboratif, plus puissant et plus moderne. Ici, chaque agence reste indépendante. Mais aucune n’est isolée. En rejoignant La Fédé de l’Immo, les agences mutualisent leurs outils, leur visibilité et leurs opportunités, tout en conservant leur identité locale.

Coordonnées du siège

La Fédération de l’Immobilier
34 avenue des Champs Elysées
Paris, 75008 (France)
+33 3 88 62 97 69
contact@lafede.immo

Chaque Membre de la Fédération est juridiquement et financièrement indépendant.

Filtres SVG
Logo La Fédération de l’Immobilier Logo La Fédération de l’Immobilier La Fédération de l’Immobilier

En poursuivant votre navigation sur ce site, vous acceptez l'utilisation de Cookies pour mesurer l'audience de notre site.

En savoir plus