Description

118 m²
751 m²
4 pièces
3 chambres
2 garages
1 sdb

-" Vendu"- Si vous aussi vous avez un projet de vente, d'achat ou simplement des question immobilières, appelez moi au 0685911953

En exclusivité à Schirrhein – Maison de 118 m² au sol, 108 habitable environ de 2017 sur 751m² de terrain en lisière de forêt avec piscine et une terrasse de 70 m².
Située dans un environnement très calme en lisière de forêt, sur un terrain de 751m² environ, entièrement clôturé avec piscine et grande terrasse. A proximité de toutes les commodités, à 10 minutes de l’autoroute A35, à 35 minutes de Strasbourg, à 10 minutes de Haguenau, à 20 minutes de la frontière Allemande et du village des marques de Roppenheim.
Cette maison de 2017, aménagée avec goût comprend :
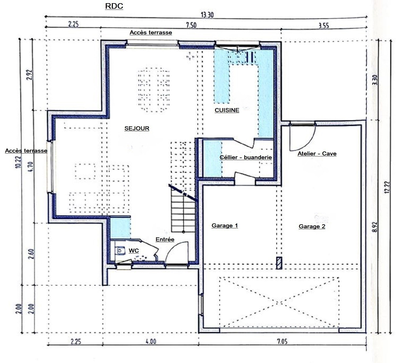
Au RDC : une entrée avec placard, un WC séparé, une grande pièce de vie lumineuse (avec de grande baies vitrées) avec cuisine équipée ouverte sur séjour et double accès à la terrasse de 70 m² et un cellier/buanderie.
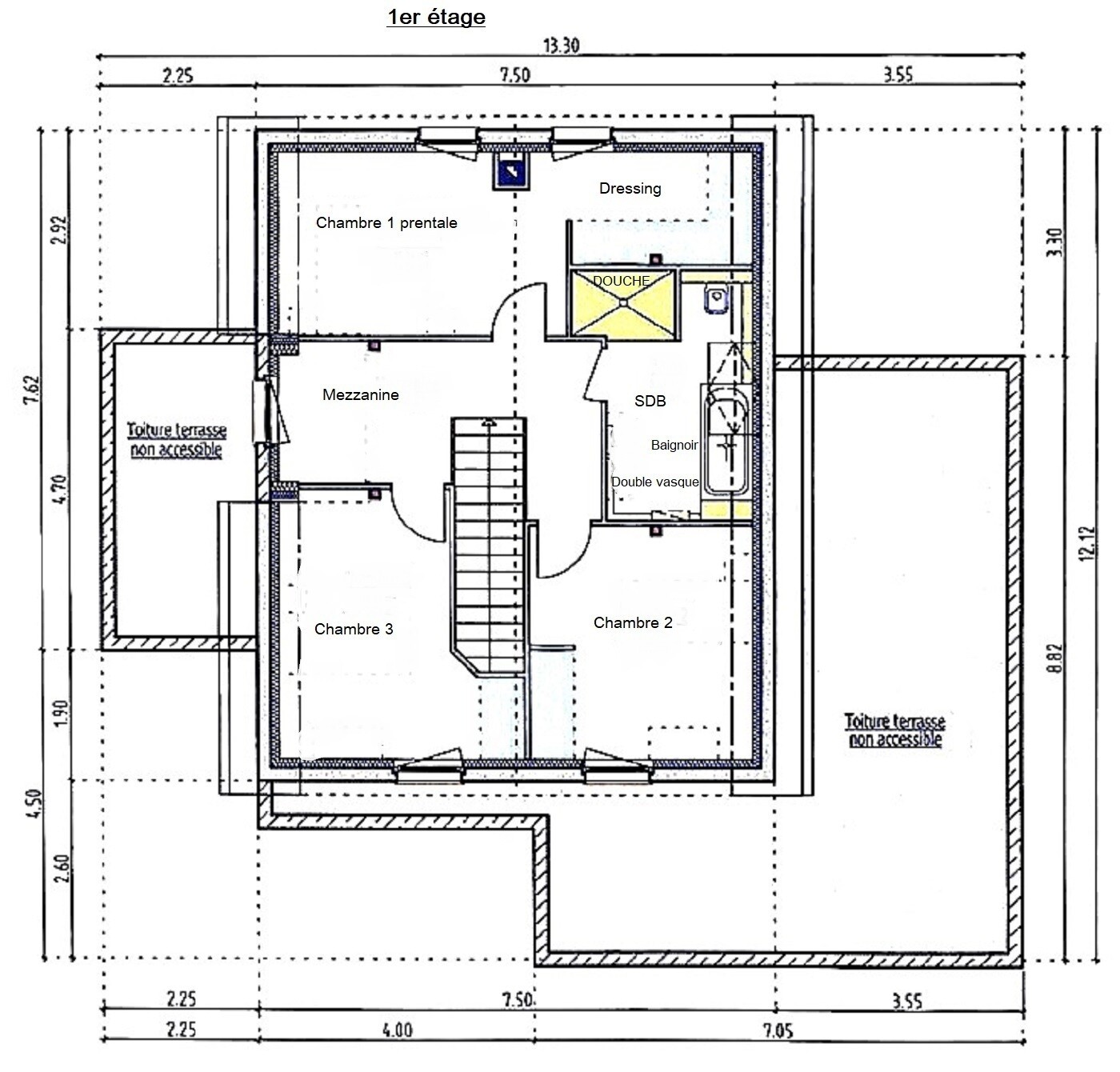
Au 1er étage : Un beau dégagement pouvant accueillir un bureau, 3 chambres dont une parentale avec dressing, une salle de bain avec baignoire, douche, double vasque et WC.
Ce bien comprend également le double vitrage, un double garage de 42m² avec rangements, un atelier/cave avec un accès direct au jardin, une piscine, un beau et grand jardin et sa grande terrasse, un chauffage au sol alimenté par une PAC air/eau qui produit aussi l’eau chaude sanitaire.
Le plus de ce bien : La maison est en classe énergétique B, peu énergivore, très lumineuse, avec un vide sanitaire et décoré avec goût.
Plus d’infos au 06 85 91 19 53 et votre visite exclusive sur RDV téléphonique

Les informations sur les risques auxquels ce bien est exposé sont disponibles sur le site Géorisques : www.georisques.gouv.fr

Caractéristiques

Honoraires charge
mandant
Type
maison
État général
très bon
Environnement
village
Disponibilité
à l'acte
Construction
2017
Rénovation
2019
Surface terrain
751 m²
Surface habitable
118 m²
Nb. chambres
3
Nb. salles de bains
1
Nb. cuisines
1
Nb. garages
2
Nb. parking
4
Types de cuisine
équipée
Chauffages
pompe à chaleur air/eau
Parking privé
Cave
Terrasse
Tout à l'égout

Télécharger le barème des honoraires

Localisation Schirrhein, 67240

Tous les outils pour vos projets immobiliers

Découvrez Mon CID,

mon compagnon immobilier digital

Accès à toutes les ventes immobilières,

boussole à réalité augmentée,

tester le débit de votre futur achat,

calculatrice de mensualité, etc.

Application mobile disponible sur

En savoir plus

Performance énergétique

logement extrêmement performant
bâtiment performantpassoire énergétique
  • A< 70
  • B70 - 11077kWh/m².an2 *kg CO2/m².an
  • C110 - 180
  • D180 - 250
  • E250 - 330
  • F330 - 420
  • G> 420
logement extrêmement peu performant

* Dont émissions de gaz à effet de serre

peu d'émissions de CO2
  • A< 62kg CO2/m².an
  • B6 - 11
  • C11 - 30
  • D30 - 50
  • E50 - 70
  • F70 - 100
  • G> 100
émissions de CO2 très importantes

Estimation des dépenses annuelles d'énergie pour un usage standard

entre 690 € et 980 € / an *

* Prix moyens des énergies indexés pour l'année 2023 (abonnement compris).

Déjà vendu !

par Simon Wurtz (EI)

Simon Wurtz

Agent commercial en immobilier immatriculé au RSAC de Strasbourg sous le n°832720676

Logo La Fédération de l’Immobilier

La Fédé de l’Immo rassemble des agences immobilières indépendantes qui ont choisi d’adhérer à un modèle plus collaboratif, plus puissant et plus moderne. Ici, chaque agence reste indépendante. Mais aucune n’est isolée. En rejoignant La Fédé de l’Immo, les agences mutualisent leurs outils, leur visibilité et leurs opportunités, tout en conservant leur identité locale.

Coordonnées du siège

La Fédération de l’Immobilier
34 avenue des Champs Elysées
Paris, 75008 (France)
+33 3 88 62 97 69
contact@lafede.immo

Chaque Membre de la Fédération est juridiquement et financièrement indépendant.

Filtres SVG
Logo La Fédération de l’Immobilier Logo La Fédération de l’Immobilier La Fédération de l’Immobilier

En poursuivant votre navigation sur ce site, vous acceptez l'utilisation de Cookies pour mesurer l'audience de notre site.

En savoir plus