Description

42 m²
2 pièces
1 chambre

À proximité des plages et du port de Bénodet, venez découvrir ce bel appartement lumineux de type 2 d'une surface de 42,17 m2 loi carrez.

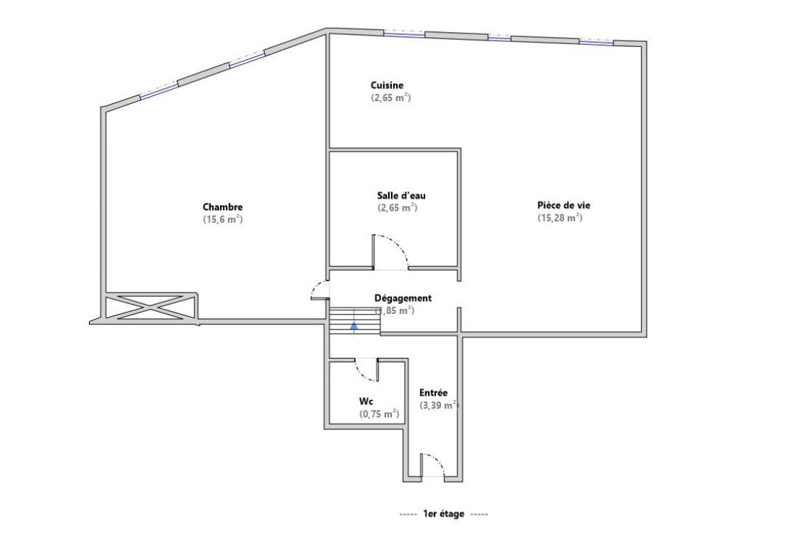
Il se compose d'une entrée desservant un salon-séjour, une cuisine aménagée, une chambre spacieuse, une salle d'eau et un wc indépendant.

À découvrir rapidement !

Idéal pour un investissement locatif ou résidentiel.

Les informations sur les risques auxquels ce bien est exposé sont disponibles sur le site Géorisques : www.georisques.gouv.fr

Caractéristiques

Prix hors honoraires d'agence
135 000,00 €
Honoraires charge
acquéreur
Pourcentage à la charge de l'acquéreur
6,07%
Type
appartement
État général
bon
Environnement
centre ville
Disponibilité
immédiate
Surface habitable
42 m²
Étage
1
Nb. chambres
1
Nb. cuisines
1
Types de cuisine
aménagée
Chauffages
électricité
Bien soumis au statut de la copropriété
Procédure en cours
aucune
Charges budget prévisionnel annuel
1 120,00 €
Nb. de logements
17
Nb. de lots
30
Taxe foncière
479,00 €

Télécharger le barème des honoraires

Localisation Benodet, 29950

Tous les outils pour vos projets immobiliers

Découvrez Mon CID,

mon compagnon immobilier digital

Accès à toutes les ventes immobilières,

boussole à réalité augmentée,

tester le débit de votre futur achat,

calculatrice de mensualité, etc.

Application mobile disponible sur

En savoir plus

Plans

Performance énergétique

logement extrêmement performant
bâtiment performantpassoire énergétique
  • A< 70
  • B70 - 110
  • C110 - 180
  • D180 - 250222kWh/m².an6 *kg CO2/m².an
  • E250 - 330
  • F330 - 420
  • G> 420
logement extrêmement peu performant

* Dont émissions de gaz à effet de serre

peu d'émissions de CO2
  • A< 6
  • B6 - 116kg CO2/m².an
  • C11 - 30
  • D30 - 50
  • E50 - 70
  • F70 - 100
  • G> 100
émissions de CO2 très importantes

Estimation des dépenses annuelles d'énergie pour un usage standard

entre 770 € et 1 100 € / an *

* Prix moyens des énergies indexés pour l'année 2023 (abonnement compris).

Simulation de prêt

(10% du prix du bien)
%
(taux moyen hors assurance)

Montant estimé

632 € / mois *

* Calculs effectués sur la base d'un prêt à taux fixe de 3,31% sur une durée de 25 ans avec un apport de 10% et hors assurance. Le coût de l'assurance de prêt dépend du capital assuré, de votre âge, de la durée du prêt, du taux d'intérêt du prêt, de votre questionnaire de santé et/ou médical, et de votre profession. Les calculs et solutions indiqués ne revêtent aucun caractère contractuel et ne sont en aucun cas une offre de prêt. Seuls les banques et organismes de financement sont habilités à accorder un financement. Pour tout crédit immobilier, vous êtes protégés par un délai de réflexion de 10 jours. Aucun versement de quelque nature que ce soit ne peut être exigé d'un particulier avant l'obtention d'un ou de plusieurs prêts d'argent. L'achat est subordonné à l'obtention du prêt. S'il n'est pas obtenu, le vendeur doit rembourser les sommes versées. Un crédit vous engage et doit être remboursé. Vérifiez vos capacités de remboursement avant de vous engager.

Cette annonce vous intéresse ?

Contactez-nous

Agent commercial en immobilier immatriculé au RSAC de QUIMPER sous le n°817615784


ou

Logo La Fédération de l'Immobilier

La Fédération de l’Immobilier by LF met à disposition des professionnels une structure éprouvée, alliant outils technologiques, formation et accompagnement de haut niveau. Une vision claire : partager nos ressources pour bâtir un immobilier plus solide, plus agile, plus humain

Coordonnées

La Fédération de l'Immobilier

(France)

Chaque Membre de la Fédération est juridiquement et financièrement indépendant.

Filtres SVG
Logo La Fédération de l'Immobilier Logo La Fédération de l'Immobilier La Fédération de l'Immobilier

En poursuivant votre navigation sur ce site, vous acceptez l'utilisation de Cookies pour mesurer l'audience de notre site.

En savoir plus