Description

206 m²
17457 m²
10 pièces
7 chambres
1 garage

Découvrez cette vaste maison familiale de 206 m², nichée dans un environnement verdoyant à Sanilhac, au cœur de la Dordogne. Édifiée sur une superbe parcelle arborée de 17 457 m², elle offre un cadre de vie paisible, idéal pour les amoureux de nature et d’espace, tout en profitant de la proximité immédiate de Périgueux, à seulement 15 minutes.

⭐ Les atouts de la propriété

7 chambres spacieuses

2 salles d’eau et 3 WC, répartis de manière fonctionnelle.

Un grand garage de 45 m² (eau et électricité) suivi d’un local de 14 m², idéal pour stockage, atelier ou activité indépendante.

Deux terrasses, dont une terrasse couverte avec barbecue, pour profiter pleinement des beaux jours.

Parcelle entièrement arborée, offrant quiétude et intimité.

🔧 Un potentiel rare

Issue de la réunion de deux maisons, cette propriété peut facilement être scindée à nouveau pour un projet :

de revente séparée,

de location (résidence principale, saisonnière ou meublée),

ou pour accueillir deux familles tout en conservant indépendance et confort.

Que vous recherchiez une grande maison familiale ou un bien à fort potentiel d’exploitation, cette propriété s’adapte à de nombreux projets.

Les informations sur les risques auxquels ce bien est exposé sont disponibles sur le site Géorisques : www.georisques.gouv.fr

Caractéristiques

Honoraires charge
mandant
Type
maison
État général
à rénover
Environnement
campagne non-isolée
Disponibilité
à l'acte
Construction
1978
Surface terrain
17457 m²
Surface habitable
206 m²
Nb. chambres
7
Nb. salles d'eau
2
Nb. cuisines
2
Nb. garages
1
Nb. parking
5
Types de cuisine
aménagée
Chauffages
bois et électricité
Parking privé
Terrasse
Cheminée
Fosse septique (ANC)
Taxe foncière
1 263,00 €

Télécharger le barème des honoraires

Localisation Sanilhac, 24660

Pour des raisons de confidentialité, la géolocalisation de ce bien a été dégradée.

Tous les outils pour vos projets immobiliers

Découvrez Mon CID,

mon compagnon immobilier digital

Accès à toutes les ventes immobilières,

boussole à réalité augmentée,

tester le débit de votre futur achat,

calculatrice de mensualité, etc.

Application mobile disponible sur

En savoir plus

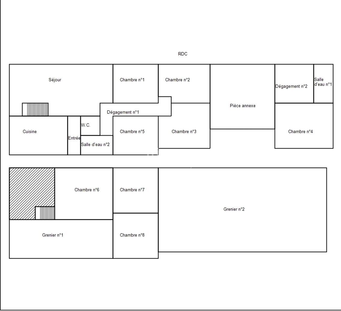
Plans

Détail des pièces

Cuisine 18 m²
Entrée 4,9 m²
Toilettes 1,8 m²
Salon / salle à manger 32 m²
Salle d'eau 2 6,8 m²
Dégagement 1 8,3 m²
Chambre 1 10 m²
Chambre 2 13 m²
Chambre 3 12 m²
Pièce annexe 24 m²
Cuisine 2 9,7 m²
Chambre 4 16 m²
Salle d'eau 1 3,2 m²
Chambre 5 12 m²

Chambre 6 14 m²
Pièce aveugle 6,8 m²
Chambre 7 13 m²

Greniers 60 m²

Performance énergétique

logement extrêmement performant
bâtiment performantpassoire énergétique
  • A< 70
  • B70 - 110
  • C110 - 180
  • D180 - 250224kWh/m².an9 *kg CO2/m².an
  • E250 - 330
  • F330 - 420
  • G> 420
logement extrêmement peu performant

* Dont émissions de gaz à effet de serre

peu d'émissions de CO2
  • A< 6
  • B6 - 119kg CO2/m².an
  • C11 - 30
  • D30 - 50
  • E50 - 70
  • F70 - 100
  • G> 100
émissions de CO2 très importantes

Estimation des dépenses annuelles d'énergie pour un usage standard

entre 4 206 € et 5 690 € / an *

* Prix moyens des énergies indexés pour l'année 2023 (abonnement compris).

Simulation de prêt

(10% du prix du bien)
%
(taux moyen hors assurance)

Montant estimé

1453 € / mois *

* Calculs effectués sur la base d'un prêt à taux fixe de 3,43% sur une durée de 25 ans avec un apport de 10% et hors assurance. Le coût de l'assurance de prêt dépend du capital assuré, de votre âge, de la durée du prêt, du taux d'intérêt du prêt, de votre questionnaire de santé et/ou médical, et de votre profession. Les calculs et solutions indiqués ne revêtent aucun caractère contractuel et ne sont en aucun cas une offre de prêt. Seuls les banques et organismes de financement sont habilités à accorder un financement. Pour tout crédit immobilier, vous êtes protégés par un délai de réflexion de 10 jours. Aucun versement de quelque nature que ce soit ne peut être exigé d'un particulier avant l'obtention d'un ou de plusieurs prêts d'argent. L'achat est subordonné à l'obtention du prêt. S'il n'est pas obtenu, le vendeur doit rembourser les sommes versées. Un crédit vous engage et doit être remboursé. Vérifiez vos capacités de remboursement avant de vous engager.

Cette annonce vous intéresse ?

Prenez contact avec Michel Furling (EI)

Michel Furling

Agent commercial en immobilier immatriculé au RSAC de Bergerac sous le n°434898532


ou

Autres annonces à découvrir...

Logo La Fédération de l’Immobilier

La Fédé de l’Immo rassemble des agences immobilières indépendantes qui ont choisi d’adhérer à un modèle plus collaboratif, plus puissant et plus moderne. Ici, chaque agence reste indépendante. Mais aucune n’est isolée. En rejoignant La Fédé de l’Immo, les agences mutualisent leurs outils, leur visibilité et leurs opportunités, tout en conservant leur identité locale.

Coordonnées du siège

La Fédération de l’Immobilier
34 avenue des Champs Elysées
Paris, 75008 (France)
+33 3 88 62 97 69
contact@lafede.immo

Chaque Membre de la Fédération est juridiquement et financièrement indépendant.

Filtres SVG
Logo La Fédération de l’Immobilier Logo La Fédération de l’Immobilier La Fédération de l’Immobilier

En poursuivant votre navigation sur ce site, vous acceptez l'utilisation de Cookies pour mesurer l'audience de notre site.

En savoir plus