Description

161 m²
937 m²
6 pièces
4 chambres
1 garage
1 sdb

À vendre en exclusivité : Charmante maison familiale à Boofzheim (67860) entre Strasbourg et Sélestat.
Découvrez cette maison de 161 m² située dans le paisible village de Boofzheim, offrant un cadre de vie idéal pour les
familles en quête de confort et de grand volume.
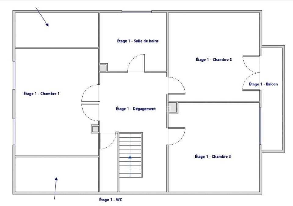
Cette propriété spacieuse dispose de 4 chambres lumineuses, dont une avec balcon, possibilité de faire une 5 -ème chambre. Vous apprécierez également ses 2 salles de bain.
Le salon/séjour, vous invite à profiter de la lumière naturelle tout au long de la journée, créant une atmosphère chaleureuse
et accueillante.
Un bel espace cuisine donnant sur terrasse et accès direct au jardin.
Un grand sous sol avec garage, buanderie et chaufferie.
Le terrain de 937 m² vous offre un espace extérieur généreux, idéal pour les activités en plein air, les barbecues d'été ou
simplement pour profiter du jardin.
Cette maison vous garantit une intimité appréciable.
Travaux de rafraichissement ( peinture ) à prévoir . Maison de bonne qualité et seine. Menuiserie récente en très bon état. Adoucisseur d'eau.
Ne manquez pas cette opportunité rare d'acquérir une maison spacieuse et lumineuse.
Contactez Laurence Brem au 06 63 48 81 26 dès aujourd'hui pour organiser une visite et laissez-vous séduire par le volume et l'agencement qu'offre cette maison !

Les informations sur les risques auxquels ce bien est exposé sont disponibles sur le site Géorisques : www.georisques.gouv.fr

Caractéristiques

Honoraires charge
mandant
Type
maison
État général
à rafraîchir
Environnement
village
Disponibilité
à l'acte
Construction
1970
Surface terrain
937 m²
Surface habitable
161 m²
Nb. chambres
4
Nb. salles de bains
1
Nb. salles d'eau
1
Nb. cuisines
1
Nb. garages
1
Nb. parking
2
Nb. balcons
1
Types de cuisine
équipée
Chauffages
bois
Parking privé
Sous-sol
Terrasse
Tout à l'égout
Taxe foncière
900,00 €

Télécharger le barème des honoraires

Localisation Boofzheim, 67860

Pour des raisons de confidentialité, la géolocalisation de ce bien a été dégradée.

Tous les outils pour vos projets immobiliers

Découvrez Mon CID,

mon compagnon immobilier digital

Accès à toutes les ventes immobilières,

boussole à réalité augmentée,

tester le débit de votre futur achat,

calculatrice de mensualité, etc.

Application mobile disponible sur

En savoir plus

Performance énergétique

logement extrêmement performant
bâtiment performantpassoire énergétique
  • A< 70
  • B70 - 110
  • C110 - 180
  • D180 - 250
  • E250 - 330299kWh/m².an8 *kg CO2/m².an
  • F330 - 420
  • G> 420
logement extrêmement peu performant

* Dont émissions de gaz à effet de serre

peu d'émissions de CO2
  • A< 6
  • B6 - 118kg CO2/m².an
  • C11 - 30
  • D30 - 50
  • E50 - 70
  • F70 - 100
  • G> 100
émissions de CO2 très importantes

Estimation des dépenses annuelles d'énergie pour un usage standard

entre 4 100 € et 5 590 € / an *

* Prix moyens des énergies indexés pour l'année 2024 (abonnement compris).

Simulation de prêt

(10% du prix du bien)
%
(taux moyen hors assurance)

Montant estimé

1315 € / mois *

* Calculs effectués sur la base d'un prêt à taux fixe de 3,31% sur une durée de 25 ans avec un apport de 10% et hors assurance. Le coût de l'assurance de prêt dépend du capital assuré, de votre âge, de la durée du prêt, du taux d'intérêt du prêt, de votre questionnaire de santé et/ou médical, et de votre profession. Les calculs et solutions indiqués ne revêtent aucun caractère contractuel et ne sont en aucun cas une offre de prêt. Seuls les banques et organismes de financement sont habilités à accorder un financement. Pour tout crédit immobilier, vous êtes protégés par un délai de réflexion de 10 jours. Aucun versement de quelque nature que ce soit ne peut être exigé d'un particulier avant l'obtention d'un ou de plusieurs prêts d'argent. L'achat est subordonné à l'obtention du prêt. S'il n'est pas obtenu, le vendeur doit rembourser les sommes versées. Un crédit vous engage et doit être remboursé. Vérifiez vos capacités de remboursement avant de vous engager.

Cette annonce vous intéresse ?

Prenez contact avec Laurence Brem (EI)

Laurence Brem

Agent commercial en immobilier immatriculé au RSAC de Strasbourg sous le n°518716774

Développeur d'équipe Titan de bronze 2023/2024
Ventes Titan de bronze 2023/2024
Développeur d'équipe Titan de bronze 2024/2025

ou

Autres annonces à découvrir...

Logo La Fédération de l'Immobilier

La Fédération de l’Immobilier by LF met à disposition des professionnels une structure éprouvée, alliant outils technologiques, formation et accompagnement de haut niveau. Une vision claire : partager nos ressources pour bâtir un immobilier plus solide, plus agile, plus humain

Coordonnées

La Fédération de l'Immobilier

(France)

Chaque Membre de la Fédération est juridiquement et financièrement indépendant.

Filtres SVG
Logo La Fédération de l'Immobilier Logo La Fédération de l'Immobilier La Fédération de l'Immobilier

En poursuivant votre navigation sur ce site, vous acceptez l'utilisation de Cookies pour mesurer l'audience de notre site.

En savoir plus