Description

161 m²
383 m²
7 pièces
5 chambres
1 garage

Bienvenue au cœur du Parc naturel régional des Vosges du Nord !

C’est à Rosteig, charmant village entouré de forêts, que se niche cette spacieuse maison familiale de 7 pièces offrant environ 161 m² habitables.

Située à seulement 5 minutes de la gare de Wingen-sur-Moder (liaison directe vers Strasbourg en 35 minutes), 15 minutes d’Ingwiller et 30 minutes de Saverne, elle bénéficie d’un emplacement pratique tout en préservant un cadre paisible.

Implantée sur un terrain de 3,83 ares, cette demeure séduit par ses beaux volumes et ses nombreuses possibilités d’aménagement.

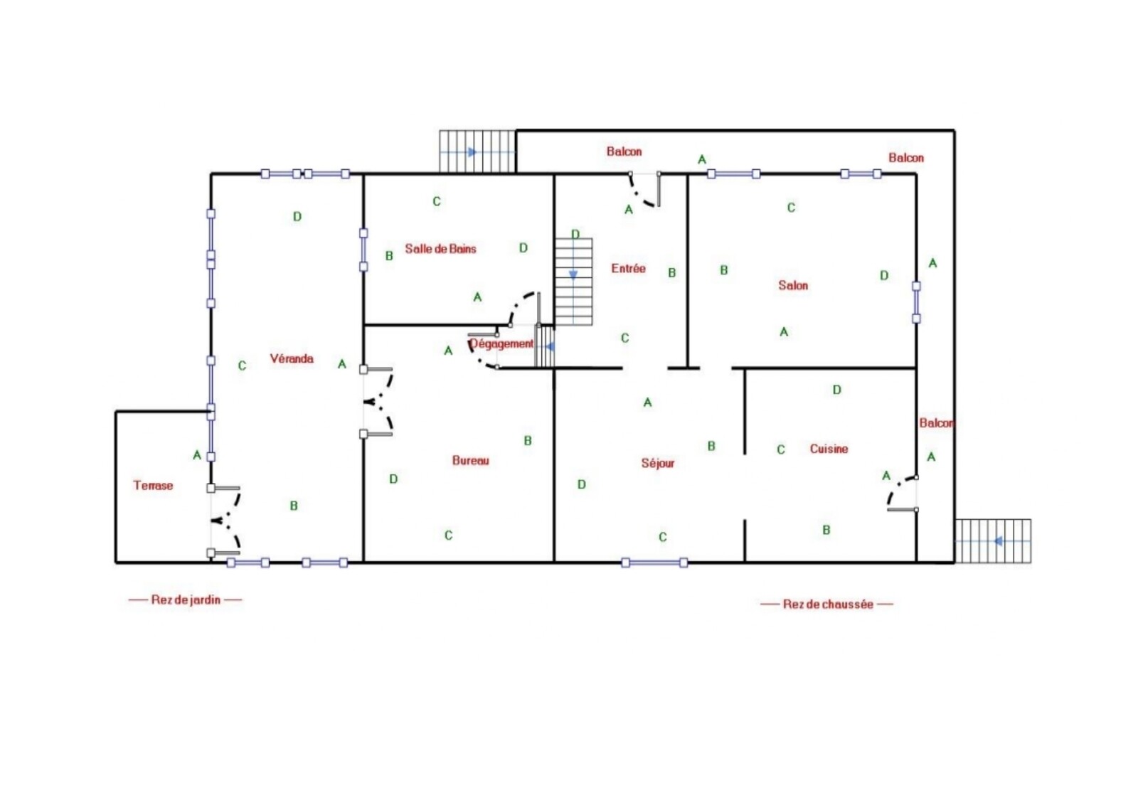
Rez-de-chaussée : une entrée, une salle d’eau avec wc, une cuisine ouverte sur la salle à manger, un salon ainsi qu’une pièce supplémentaire d’environ 18 m².
En prolongement, une véranda lumineuse et conviviale de 26 m² donnant accès au jardin.

Étage : un couloir dessert quatre chambres de 10 à 15 m² et un WC séparé.
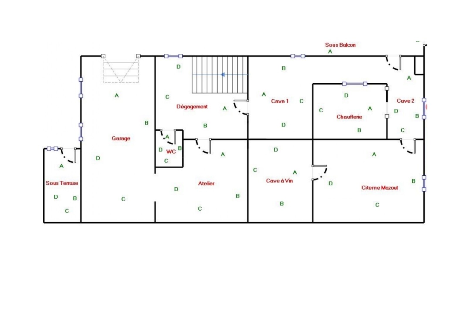
Sous-sol : une vaste cave avec garage équipé d’une porte motorisée.
Extérieurs : Un jardin entoure la maison, avec une partie clôturée accessible depuis la cuisine, et une autre ouverte sur la véranda, idéale pour profiter des beaux jours.

Le chauffage haut de gamme et économique est assuré par une pompe à chaleur récente avec ballon thermodynamique, complété par un insert bois côté véranda pour une ambiance chaleureuse en hiver. La maison est équipée de la fibre optique.


Je reste à votre disposition pour renseignement complémentaire.

Les informations sur les risques auxquels ce bien est exposé sont disponibles sur le site Géorisques : www.georisques.gouv.fr

Caractéristiques

Honoraires charge
mandant
Type
maison
État général
bon
Environnement
village
Disponibilité
à l'acte
Construction
1930
Rénovation
2023
Surface terrain
383 m²
Surface habitable
161 m²
Nb. chambres
5
Nb. salles d'eau
1
Nb. cuisines
1
Nb. garages
1
Nb. balcons
1
Types de cuisine
équipée
Chauffages
pompe à chaleur air/eau
Cave
Terrasse
Tout à l'égout
Taxe foncière
505,00 €

Télécharger le barème des honoraires

Localisation Rosteig, 67290

Pour des raisons de confidentialité, la géolocalisation de ce bien a été dégradée.

Tous les outils pour vos projets immobiliers

Découvrez Mon CID,

mon compagnon immobilier digital

Accès à toutes les ventes immobilières,

boussole à réalité augmentée,

tester le débit de votre futur achat,

calculatrice de mensualité, etc.

Application mobile disponible sur

En savoir plus

Performance énergétique

logement extrêmement performant
bâtiment performantpassoire énergétique
  • A< 70
  • B70 - 110
  • C110 - 180141kWh/m².an4 *kg CO2/m².an
  • D180 - 250
  • E250 - 330
  • F330 - 420
  • G> 420
logement extrêmement peu performant

* Dont émissions de gaz à effet de serre

peu d'émissions de CO2
  • A< 64kg CO2/m².an
  • B6 - 11
  • C11 - 30
  • D30 - 50
  • E50 - 70
  • F70 - 100
  • G> 100
émissions de CO2 très importantes

Estimation des dépenses annuelles d'énergie pour un usage standard

entre 1 390 € et 1 940 € / an *

* Prix moyens des énergies indexés pour l'année 2023 (abonnement compris).

Simulation de prêt

(10% du prix du bien)
%
(taux moyen hors assurance)

Montant estimé

844 € / mois *

* Calculs effectués sur la base d'un prêt à taux fixe de 3,37% sur une durée de 25 ans avec un apport de 10% et hors assurance. Le coût de l'assurance de prêt dépend du capital assuré, de votre âge, de la durée du prêt, du taux d'intérêt du prêt, de votre questionnaire de santé et/ou médical, et de votre profession. Les calculs et solutions indiqués ne revêtent aucun caractère contractuel et ne sont en aucun cas une offre de prêt. Seuls les banques et organismes de financement sont habilités à accorder un financement. Pour tout crédit immobilier, vous êtes protégés par un délai de réflexion de 10 jours. Aucun versement de quelque nature que ce soit ne peut être exigé d'un particulier avant l'obtention d'un ou de plusieurs prêts d'argent. L'achat est subordonné à l'obtention du prêt. S'il n'est pas obtenu, le vendeur doit rembourser les sommes versées. Un crédit vous engage et doit être remboursé. Vérifiez vos capacités de remboursement avant de vous engager.

Cette annonce vous intéresse ?

Prenez contact avec Patrice Hertrich (EI)

Patrice Hertrich

Agent commercial en immobilier immatriculé au RSAC de Saverne sous le n°878255777


ou

Autres annonces à découvrir...

Logo La Fédération de l’Immobilier

La Fédé de l’Immo rassemble des agences immobilières indépendantes qui ont choisi d’adhérer à un modèle plus collaboratif, plus puissant et plus moderne. Ici, chaque agence reste indépendante. Mais aucune n’est isolée. En rejoignant La Fédé de l’Immo, les agences mutualisent leurs outils, leur visibilité et leurs opportunités, tout en conservant leur identité locale.

Coordonnées du siège

La Fédération de l’Immobilier
34 avenue des Champs Elysées
Paris, 75008 (France)
+33 3 88 62 97 69
contact@lafede.immo

Chaque Membre de la Fédération est juridiquement et financièrement indépendant.

Filtres SVG
Logo La Fédération de l’Immobilier Logo La Fédération de l’Immobilier La Fédération de l’Immobilier

En poursuivant votre navigation sur ce site, vous acceptez l'utilisation de Cookies pour mesurer l'audience de notre site.

En savoir plus