Description

134 m²
88000 m²
8 pièces
4 chambres

À vendre : Agréable corps de ferme de 8.8 hectares située sur la commune de Meuzac, 42 km par l'A20 au sud de Limoges.
Cette propriété de caractère offrira un cadre de vie idyllique, parfait pour les amoureux de la nature et de l'espace souhaitant vivre au calme et pourquoi pas développer des activités annexes.

La ferme se compose :
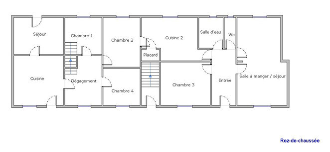
D'une maison de 130 m2, 8 pièces spacieuses et lumineuses, qui offrira après rénovation un espace de vie confortable et chaleureux.

Vous disposez d'une surface totale de terrain 8.8 ha, 5.5 en prairies, 3.3 en bois, idéale pour les amoureux des animaux.
Possibilité de plus de terres.

Cette ferme est un véritable havre de paix, offrant calme et sérénité à ses occupants. Ne manquez pas l'opportunité d'acquérir ce bien d'exception pour 314 000€. Contactez-nous dès maintenant pour organiser une visite et découvrir ce petit coin de paradis en plein cœur de la campagne française.

Les informations sur les risques auxquels ce bien est exposé sont disponibles sur le site Géorisques : www.georisques.gouv.fr

Caractéristiques

Honoraires charge
mandant
Type
maison
État général
à rénover
Environnement
campagne non-isolée
Orientation
Sud
Disponibilité
à l'acte
Surface totale
140 m²
Surface terrain
88000 m²
Surface habitable
134 m²
Nb. chambres
4
Nb. salles d'eau
1
Nb. cuisines
2
Types de cuisine
équipement de base
Chauffages
bois
Cave
Fosse septique (ANC)

Télécharger le barème des honoraires

Localisation Meuzac, 87380

Tous les outils pour vos projets immobiliers

Découvrez Mon CID,

mon compagnon immobilier digital

Accès à toutes les ventes immobilières,

boussole à réalité augmentée,

tester le débit de votre futur achat,

calculatrice de mensualité, etc.

Application mobile disponible sur

En savoir plus

Plans

Performance énergétique

logement extrêmement performant
bâtiment performantpassoire énergétique
  • A< 70
  • B70 - 110
  • C110 - 180
  • D180 - 250
  • E250 - 330
  • F330 - 420
  • G> 420432kWh/m².an12 *kg CO2/m².anLogement à consommation énergétique excessive
logement extrêmement peu performant

* Dont émissions de gaz à effet de serre

peu d'émissions de CO2
  • A< 6
  • B6 - 11
  • C11 - 3012kg CO2/m².an
  • D30 - 50
  • E50 - 70
  • F70 - 100
  • G> 100
émissions de CO2 très importantes

Estimation des dépenses annuelles d'énergie pour un usage standard

entre 2 400 € et 3 290 € / an *

* Prix moyens des énergies indexés pour l'année 2023 (abonnement compris).

Simulation de prêt

(10% du prix du bien)
%
(taux moyen hors assurance)

Montant estimé

1395 € / mois *

* Calculs effectués sur la base d'un prêt à taux fixe de 3,37% sur une durée de 25 ans avec un apport de 10% et hors assurance. Le coût de l'assurance de prêt dépend du capital assuré, de votre âge, de la durée du prêt, du taux d'intérêt du prêt, de votre questionnaire de santé et/ou médical, et de votre profession. Les calculs et solutions indiqués ne revêtent aucun caractère contractuel et ne sont en aucun cas une offre de prêt. Seuls les banques et organismes de financement sont habilités à accorder un financement. Pour tout crédit immobilier, vous êtes protégés par un délai de réflexion de 10 jours. Aucun versement de quelque nature que ce soit ne peut être exigé d'un particulier avant l'obtention d'un ou de plusieurs prêts d'argent. L'achat est subordonné à l'obtention du prêt. S'il n'est pas obtenu, le vendeur doit rembourser les sommes versées. Un crédit vous engage et doit être remboursé. Vérifiez vos capacités de remboursement avant de vous engager.

Cette annonce vous intéresse ?

Prenez contact avec Ludovic Cornillon (EI)

Ludovic Cornillon

Agent commercial en immobilier immatriculé au RSAC de LIMOGES sous le n°492413026


ou

Logo La Fédération de l’Immobilier

La Fédé de l’Immo rassemble des agences immobilières indépendantes qui ont choisi d’adhérer à un modèle plus collaboratif, plus puissant et plus moderne. Ici, chaque agence reste indépendante. Mais aucune n’est isolée. En rejoignant La Fédé de l’Immo, les agences mutualisent leurs outils, leur visibilité et leurs opportunités, tout en conservant leur identité locale.

Coordonnées du siège

La Fédération de l’Immobilier
34 avenue des Champs Elysées
Paris, 75008 (France)
+33 3 88 62 97 69
contact@lafede.immo

Chaque Membre de la Fédération est juridiquement et financièrement indépendant.

Filtres SVG
Logo La Fédération de l’Immobilier Logo La Fédération de l’Immobilier La Fédération de l’Immobilier

En poursuivant votre navigation sur ce site, vous acceptez l'utilisation de Cookies pour mesurer l'audience de notre site.

En savoir plus