Description

62 m²
3 pièces
3 chambres
1 sdb

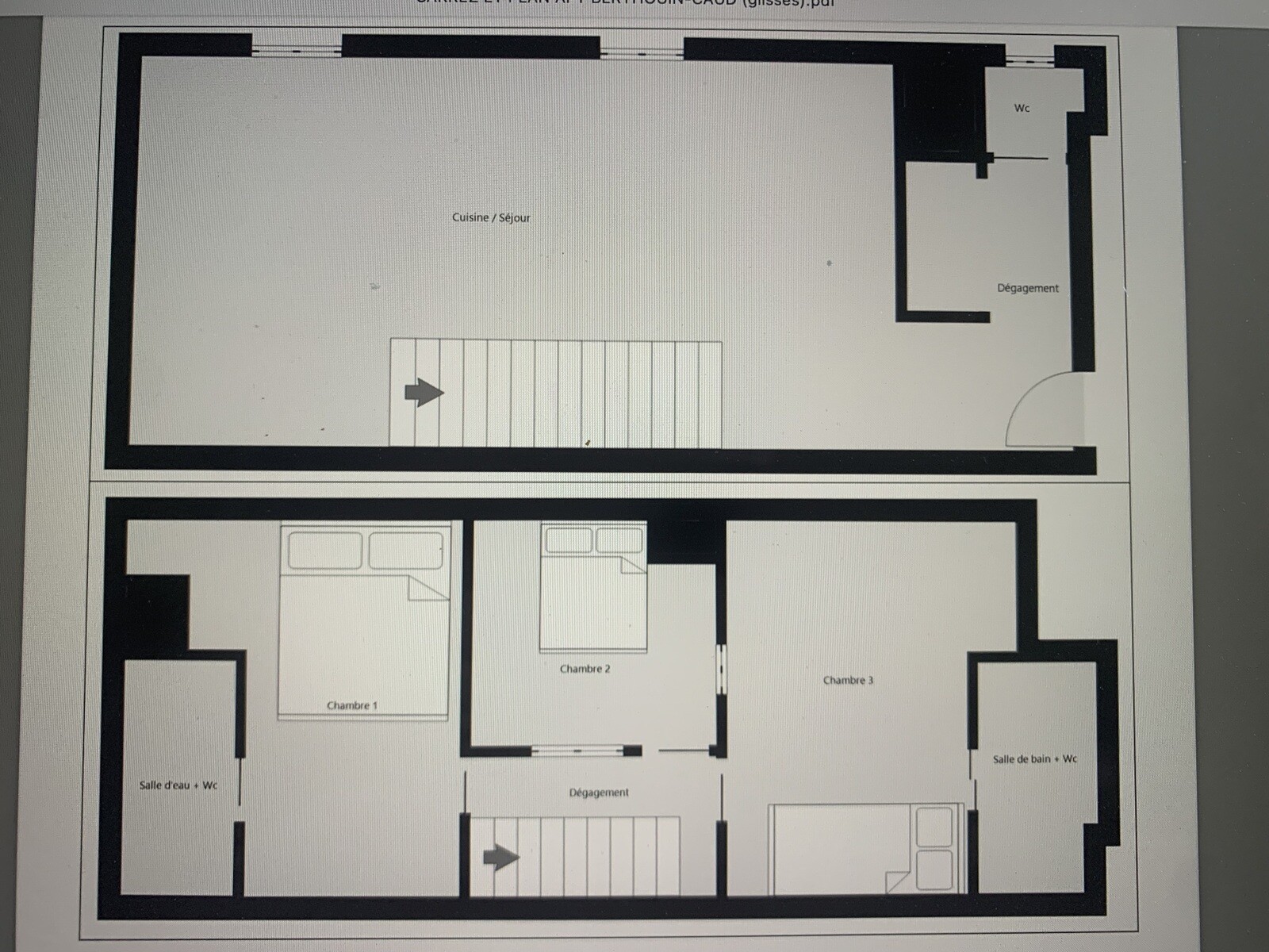
Vend un appartement en duplex, secteur des anglais, au calme, situé au premier étage d'une petite maison en copropriété, proche de toutes commodités, écoles et bus, 15 min à pied du palais des festivals et des plages, constitué d’un salon-salle à manger de 35m2 env. accueillant un vestibule et un wc invité avec lavabo, une cuisine ouverte et équipée avec vue sur jardin, à l'étage deux chambres avec une salle bains et wc, une chambre parentale avec une salle de douche et wc, au rdc un petit débarras de 3m2 env., climatisation réversible et double vitrage, possibilité de reprendre une location de garage fermé à proximité.


Les informations sur les risques auxquels ce bien est exposé sont disponibles sur le site Géorisques : www.georisques.gouv.fr

Caractéristiques

Honoraires charge
mandant
Type
duplex
État général
bon
Environnement
centre ville
Orientation
Sud
Disponibilité
date à convenir
Construction
1949
Surface totale
82 m²
Surface habitable
62 m²
Étage
2
Floor count
2
Nb. chambres
3
Nb. salles de bains
1
Nb. salles d'eau
1
Nb. cuisines
1
Types de cuisine
américaine et équipement de base
Chauffages
électricité et clim réversible
Cave
Tout à l'égout
Dernier étage
Bien soumis au statut de la copropriété
Procédure en cours
aucune
Charges budget prévisionnel annuel
1 200,00 €
Nb. de logements
1
Nb. de lots
3
Taxe foncière
874,00 €

Télécharger le barème des honoraires

Localisation Cannes, 06400

Pour des raisons de confidentialité, la géolocalisation de ce bien a été dégradée.

Tous les outils pour vos projets immobiliers

Découvrez Mon CID,

mon compagnon immobilier digital

Accès à toutes les ventes immobilières,

boussole à réalité augmentée,

tester le débit de votre futur achat,

calculatrice de mensualité, etc.

Application mobile disponible sur

En savoir plus

Plans

Performance énergétique

logement extrêmement performant
bâtiment performantpassoire énergétique
  • A< 70
  • B70 - 110
  • C110 - 180
  • D180 - 250237kWh/m².an9 *kg CO2/m².an
  • E250 - 330
  • F330 - 420
  • G> 420
logement extrêmement peu performant

* Dont émissions de gaz à effet de serre

peu d'émissions de CO2
  • A< 6
  • B6 - 119kg CO2/m².an
  • C11 - 30
  • D30 - 50
  • E50 - 70
  • F70 - 100
  • G> 100
émissions de CO2 très importantes

Estimation des dépenses annuelles d'énergie pour un usage standard

entre 1 390 € et 1 940 € / an *

* Prix moyens des énergies indexés pour l'année 2024 (abonnement compris).

Simulation de prêt

(10% du prix du bien)
%
(taux moyen hors assurance)

Montant estimé

1055 € / mois *

* Calculs effectués sur la base d'un prêt à taux fixe de 3,43% sur une durée de 25 ans avec un apport de 10% et hors assurance. Le coût de l'assurance de prêt dépend du capital assuré, de votre âge, de la durée du prêt, du taux d'intérêt du prêt, de votre questionnaire de santé et/ou médical, et de votre profession. Les calculs et solutions indiqués ne revêtent aucun caractère contractuel et ne sont en aucun cas une offre de prêt. Seuls les banques et organismes de financement sont habilités à accorder un financement. Pour tout crédit immobilier, vous êtes protégés par un délai de réflexion de 10 jours. Aucun versement de quelque nature que ce soit ne peut être exigé d'un particulier avant l'obtention d'un ou de plusieurs prêts d'argent. L'achat est subordonné à l'obtention du prêt. S'il n'est pas obtenu, le vendeur doit rembourser les sommes versées. Un crédit vous engage et doit être remboursé. Vérifiez vos capacités de remboursement avant de vous engager.

Cette annonce vous intéresse ?

Prenez contact avec Yannick Louis Richeux (EI)

Yannick Louis Richeux

Agent commercial en immobilier immatriculé au RSAC de Cannes sous le n°316817337


ou

Autres annonces à découvrir...

Logo La Fédération de l’Immobilier

La Fédé de l’Immo rassemble des agences immobilières indépendantes qui ont choisi d’adhérer à un modèle plus collaboratif, plus puissant et plus moderne. Ici, chaque agence reste indépendante. Mais aucune n’est isolée. En rejoignant La Fédé de l’Immo, les agences mutualisent leurs outils, leur visibilité et leurs opportunités, tout en conservant leur identité locale.

Coordonnées du siège

La Fédération de l’Immobilier
34 avenue des Champs Elysées
Paris, 75008 (France)
+33 3 88 62 97 69
contact@lafede.immo

Chaque Membre de la Fédération est juridiquement et financièrement indépendant.

Filtres SVG
Logo La Fédération de l’Immobilier Logo La Fédération de l’Immobilier La Fédération de l’Immobilier

En poursuivant votre navigation sur ce site, vous acceptez l'utilisation de Cookies pour mesurer l'audience de notre site.

En savoir plus