Description

111 m²
800 m²
4 pièces
3 chambres
2 garages
1 sdb

maison 5 pièces – 111 m² + dépendance – terrain 800 m²

À seulement 2 minutes de l’A10 et 20 minutes de Bordeaux, sur la commune d'Ambarès côté Saint-Loubès, venez découvrir cette maison centenaire mitoyenne pleine de charme, au calme absolu, dans un environnement verdoyant sans nuisance, tout en étant proche des commerces, écoles et transports.

✨ Ses atouts :
111 m² habitables sur 2 niveaux
Terrain 800 m² exposé plein sud
Belle dépendance en pierres de 54 m² non attenante, parfaite pour un atelier ou studio indépendant.
Garage 23 m² accolé à la cuisine pouvant être transformé en cellier ou 4ème chambre en rez de chaussé.
Menuiseries PVC double vitrage, volets roulants électriques à l’étage

Travaux de rénovation à l’étage réalisés en 2024 (murs et plafonds refaits)

🏠 Agencement :
Au rdc :
Grande cuisine (22 m²) à moderniser,
Un grand séjour lumineux avec parquet massif (30 m²),
Une grande salle de bain à refaire (13 m²) avec wc séparé,
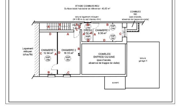
À l’étage : 3 chambres (16,5 m² – 13 m² – 9,5 m²) + dressing, parquet chêne massif.

🔧 Travaux à prévoir :
Cuisine et salle de bain : isolation, peintures, reprise sols et remplacement des sanitaires.

Un prix attractif tenant compte des travaux à réaliser.
Un bien idéal pour les amateurs d’ancien et de potentiel. Elle mérite une visite !

📞 Contactez moi, votre conseillère sur Saint-Loubès, Ambarès et alentours, pour organiser une visite et découvrir cette maison au fort potentiel d’évolution !

Les informations sur les risques auxquels ce bien est exposé sont disponibles sur le site Géorisques : www.georisques.gouv.fr

Caractéristiques

Honoraires charge
mandant
Type
maison
État général
à rafraîchir
Environnement
campagne non-isolée
Orientation
Sud
Disponibilité
à l'acte
Construction
1900
Rénovation
2024
Surface terrain
800 m²
Surface habitable
111 m²
Nb. chambres
3
Nb. salles de bains
1
Nb. cuisines
1
Nb. garages
2
Nb. parking
4
Types de cuisine
équipement de base
Chauffages
gaz
Tout à l'égout
Taxe foncière
1 963,00 €

Télécharger le barème des honoraires

Localisation Ambares Et Lagrave, 33440

Pour des raisons de confidentialité, la géolocalisation de ce bien a été dégradée.

Tous les outils pour vos projets immobiliers

Découvrez Mon CID,

mon compagnon immobilier digital

Accès à toutes les ventes immobilières,

boussole à réalité augmentée,

tester le débit de votre futur achat,

calculatrice de mensualité, etc.

Application mobile disponible sur

En savoir plus

Détail des pièces

Cuisine 23 m²
Salle de Bain 13 m²
Séjour 30 m²
Séjour 30 m²
Salle de Bain 13 m²
Cuisine 23 m²

Chambre 1 17 m²
Chambre 2 13 m²
Chambre 3 9,6 m²
dressing 3,6 m²
dressing 3,6 m²
Chambre 3 9,6 m²
Chambre 2 13 m²
Chambre 1 17 m²

WC 1,2 m²
WC 1,2 m²

Performance énergétique

logement extrêmement performant
bâtiment performantpassoire énergétique
  • A< 70
  • B70 - 110
  • C110 - 180
  • D180 - 250228kWh/m².an48 *kg CO2/m².an
  • E250 - 330
  • F330 - 420
  • G> 420
logement extrêmement peu performant

* Dont émissions de gaz à effet de serre

peu d'émissions de CO2
  • A< 6
  • B6 - 11
  • C11 - 30
  • D30 - 5048kg CO2/m².an
  • E50 - 70
  • F70 - 100
  • G> 100
émissions de CO2 très importantes

Estimation des dépenses annuelles d'énergie pour un usage standard

entre 2 320 € et 3 180 € / an *

* Prix moyens des énergies indexés pour l'année 2023 (abonnement compris).

Simulation de prêt

(10% du prix du bien)
%
(taux moyen hors assurance)

Montant estimé

1093 € / mois *

* Calculs effectués sur la base d'un prêt à taux fixe de 3,37% sur une durée de 25 ans avec un apport de 10% et hors assurance. Le coût de l'assurance de prêt dépend du capital assuré, de votre âge, de la durée du prêt, du taux d'intérêt du prêt, de votre questionnaire de santé et/ou médical, et de votre profession. Les calculs et solutions indiqués ne revêtent aucun caractère contractuel et ne sont en aucun cas une offre de prêt. Seuls les banques et organismes de financement sont habilités à accorder un financement. Pour tout crédit immobilier, vous êtes protégés par un délai de réflexion de 10 jours. Aucun versement de quelque nature que ce soit ne peut être exigé d'un particulier avant l'obtention d'un ou de plusieurs prêts d'argent. L'achat est subordonné à l'obtention du prêt. S'il n'est pas obtenu, le vendeur doit rembourser les sommes versées. Un crédit vous engage et doit être remboursé. Vérifiez vos capacités de remboursement avant de vous engager.

Cette annonce vous intéresse ?

Prenez contact avec Céline Jabès (EI)

Céline Jabès

Agent commercial en immobilier immatriculé au RSAC de BORDEAUX sous le n°984272344


ou

Autres annonces à découvrir...

Logo La Fédération de l’Immobilier

La Fédé de l’Immo rassemble des agences immobilières indépendantes qui ont choisi d’adhérer à un modèle plus collaboratif, plus puissant et plus moderne. Ici, chaque agence reste indépendante. Mais aucune n’est isolée. En rejoignant La Fédé de l’Immo, les agences mutualisent leurs outils, leur visibilité et leurs opportunités, tout en conservant leur identité locale.

Coordonnées du siège

La Fédération de l’Immobilier
34 avenue des Champs Elysées
Paris, 75008 (France)
+33 3 88 62 97 69
contact@lafede.immo

Chaque Membre de la Fédération est juridiquement et financièrement indépendant.

Filtres SVG
Logo La Fédération de l’Immobilier Logo La Fédération de l’Immobilier La Fédération de l’Immobilier

En poursuivant votre navigation sur ce site, vous acceptez l'utilisation de Cookies pour mesurer l'audience de notre site.

En savoir plus