Description

37 m²
212 m²
2 pièces
1 chambre

Charmant 2 pièces avec entrée indépendante, offrant presque la sensation d’une petite maison, idéalement situé en front de mer
Face à la mer. Ici, on ne fait pas que la voir… on la rejoint en quelques secondes. Et si c’était votre quotidien dès demain ?

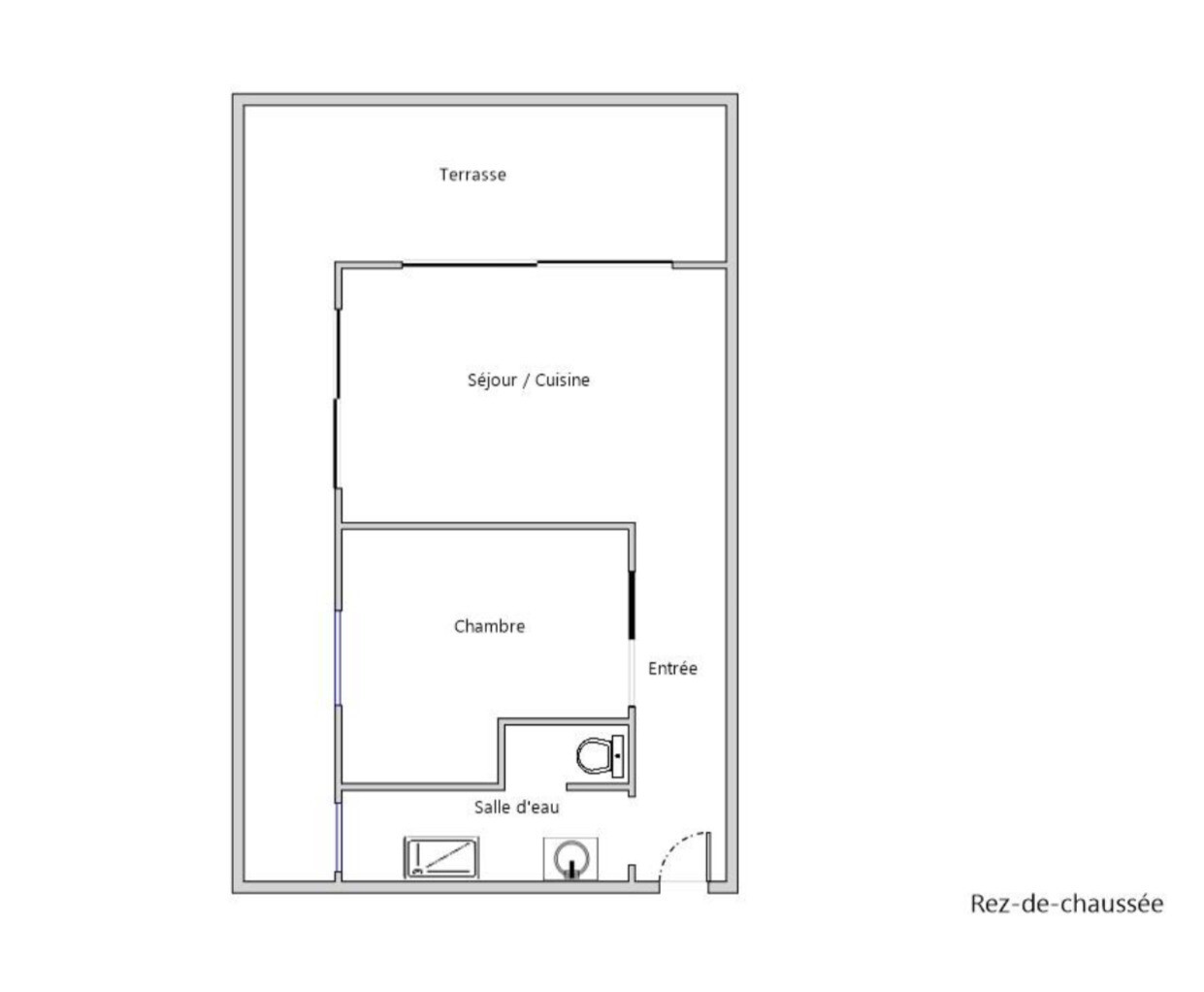
Situé à proximité immédiate de la Marina Baie des Anges, cet appartement-maison de 37 m² séduit par son vaste jardin privatif de 175 m², un véritable havre de paix les pieds dans l’eau.

Dès le grand portail franchi, la sensation est immédiate : on entre dans une maison.
Le bien bénéficie d’une entrée indépendante, d’une terrasse ensoleillée, et d’un jardin paysager exceptionnel offrant :
une belle terrasse conviviale pour les repas,
un espace détente verdoyant,
et une zone de stationnement privatif pouvant accueillir jusqu’à 4 véhicules.

L’intérieur comprend un séjour lumineux avec cuisine ouverte, une chambre confortable, et une salle d’eau avec fenêtre.
Depuis le jardin, la vue mer est directe, et il suffit de quelques secondes pour atteindre la plage.

Les points forts
• Front de mer – vue mer directe depuis le jardin
• Appartement-maison avec 2 entrées dont une entrée privative et grand portail
• Jardin exceptionnel de 175 m²
• Stationnement privatif pour 4 véhicules
• Exposition Sud-Ouest – lumineux
• Résidence calme, entretenue et sécurisée
• Commerces, gare et port accessibles à pied

Caractéristiques
• Surface habitable : 37m² (Loi Carrez)
• Extérieurs : 175 m² (terrasse + jardin + stationnement)
• Copropriété stable, aucun gros travaux voté

Un bien rare en front de mer, combinant le charme d’une maison indépendante et le confort d’un appartement, dans un cadre de vie exceptionnel où la mer fait partie du décor.

Les informations sur les risques auxquels ce bien est exposé sont disponibles sur le site Géorisques : www.georisques.gouv.fr

Caractéristiques

Honoraires charge
mandant
Type
appartement
État général
bon
Environnement
plage
Orientation
Sud
Disponibilité
immédiate
Construction
1980
Surface totale
200 m²
Surface terrain
212 m²
Surface habitable
37 m²
Nb. chambres
1
Nb. salles d'eau
1
Nb. cuisines
1
Nb. parking
4
Types de cuisine
équipée
Chauffages
électricité
Parking privé
Rez-de-jardin
Bien soumis au statut de la copropriété
Procédure en cours
aucune
Charges budget prévisionnel annuel
2 400,00 €
Nb. de logements
45
Nb. de lots
90
Taxe foncière
719,00 €

Télécharger le barème des honoraires

Localisation Villeneuve Loubet, 06270

DécouvrirLa ville

DécouvrirLe quartier

Présentation vidéo du quartier

Pour des raisons de confidentialité, la géolocalisation de ce bien a été dégradée.

Tous les outils pour vos projets immobiliers

Découvrez Mon CID,

mon compagnon immobilier digital

Accès à toutes les ventes immobilières,

boussole à réalité augmentée,

tester le débit de votre futur achat,

calculatrice de mensualité, etc.

Application mobile disponible sur

En savoir plus

Plans

Performance énergétique

logement extrêmement performant
bâtiment performantpassoire énergétique
  • A< 72
  • B72 - 112
  • C112 - 185
  • D185 - 255
  • E255 - 335327kWh/m².an10 *kg CO2/m².an
  • F335 - 425
  • G> 425
logement extrêmement peu performant

* Dont émissions de gaz à effet de serre

peu d'émissions de CO2
  • A< 7
  • B7 - 1210kg CO2/m².an
  • C12 - 31
  • D31 - 51
  • E51 - 71
  • F71 - 101
  • G> 101
émissions de CO2 très importantes

Estimation des dépenses annuelles d'énergie pour un usage standard

entre 800 € et 1 100 € / an *

* Prix moyens des énergies indexés pour l'année 2024 (abonnement compris).

Simulation de prêt

(10% du prix du bien)
%
(taux moyen hors assurance)

Montant estimé

1984 € / mois *

* Calculs effectués sur la base d'un prêt à taux fixe de 3,32% sur une durée de 25 ans avec un apport de 10% et hors assurance. Le coût de l'assurance de prêt dépend du capital assuré, de votre âge, de la durée du prêt, du taux d'intérêt du prêt, de votre questionnaire de santé et/ou médical, et de votre profession. Les calculs et solutions indiqués ne revêtent aucun caractère contractuel et ne sont en aucun cas une offre de prêt. Seuls les banques et organismes de financement sont habilités à accorder un financement. Pour tout crédit immobilier, vous êtes protégés par un délai de réflexion de 10 jours. Aucun versement de quelque nature que ce soit ne peut être exigé d'un particulier avant l'obtention d'un ou de plusieurs prêts d'argent. L'achat est subordonné à l'obtention du prêt. S'il n'est pas obtenu, le vendeur doit rembourser les sommes versées. Un crédit vous engage et doit être remboursé. Vérifiez vos capacités de remboursement avant de vous engager.

Cette annonce vous intéresse ?

Prenez contact avec Françoise Popa (EI)

Françoise Popa

Agent commercial en immobilier immatriculé au RSAC de Créteil sous le n°842185274

Développeur d'équipe Titan de bronze 2023/2024
Ventes Titan de bronze 2024/2025

ou

Logo La Fédé de l'Immo

La Fédé de l’Immo rassemble des agences immobilières indépendantes qui ont choisi d’adhérer à un modèle plus collaboratif, plus puissant et plus moderne. Ici, chaque agence reste indépendante. Mais aucune n’est isolée. En rejoignant La Fédé de l’Immo, les agences mutualisent leurs outils, leur visibilité et leurs opportunités, tout en conservant leur identité locale.

Coordonnées du siège

La Fédé de l'Immo

(France)

Chaque Membre de la Fédération est juridiquement et financièrement indépendant.

Filtres SVG
Logo La Fédé de l'Immo Logo La Fédé de l'Immo La Fédé de l'Immo

En poursuivant votre navigation sur ce site, vous acceptez l'utilisation de Cookies pour mesurer l'audience de notre site.

En savoir plus