Description

52 m²
3 pièces
2 chambres
1 sdb

Découvrez cet appartement de 52m2, idéalement situé au cœur du 11ème arrondissement de Paris, un quartier dynamique et prisé.
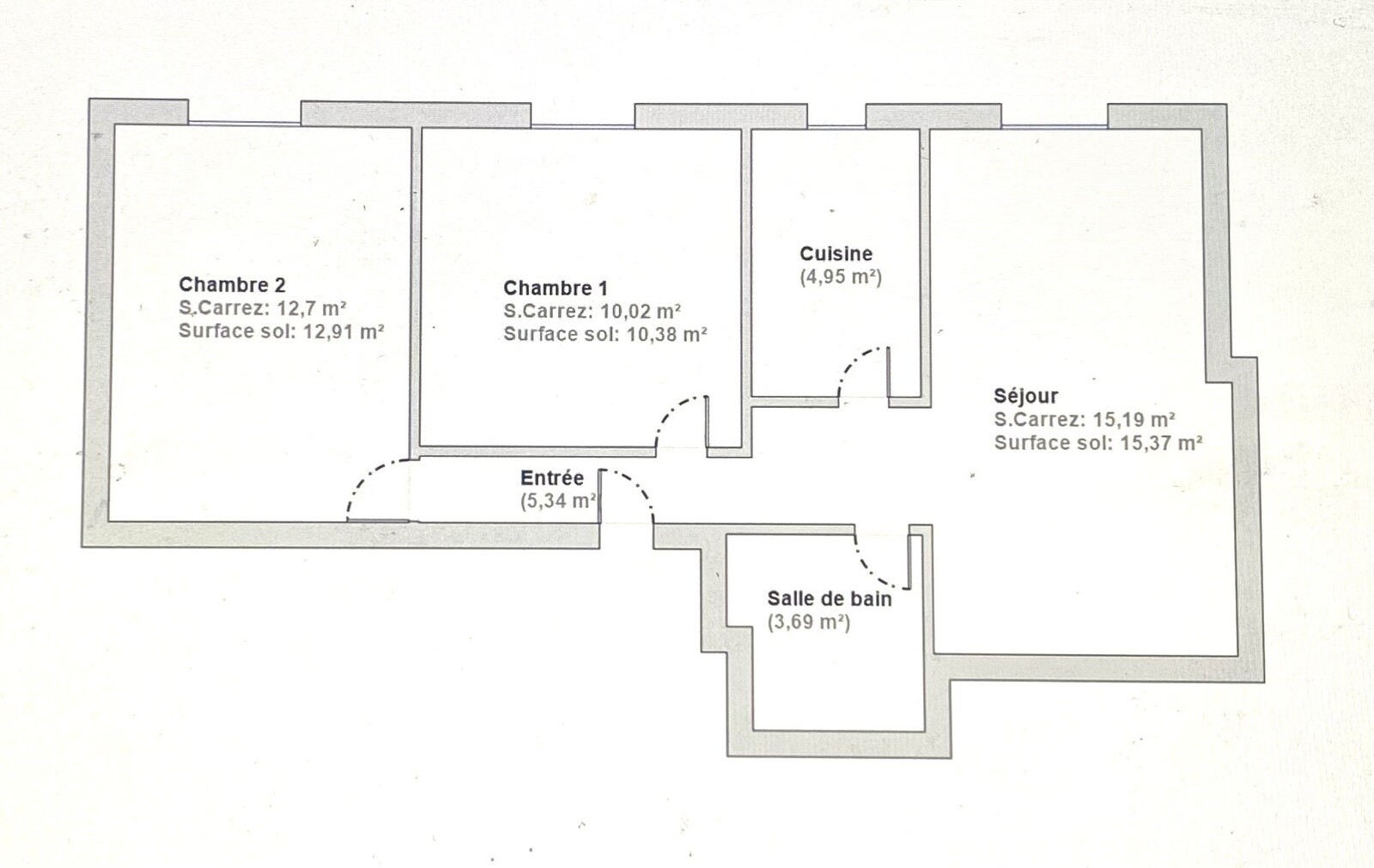
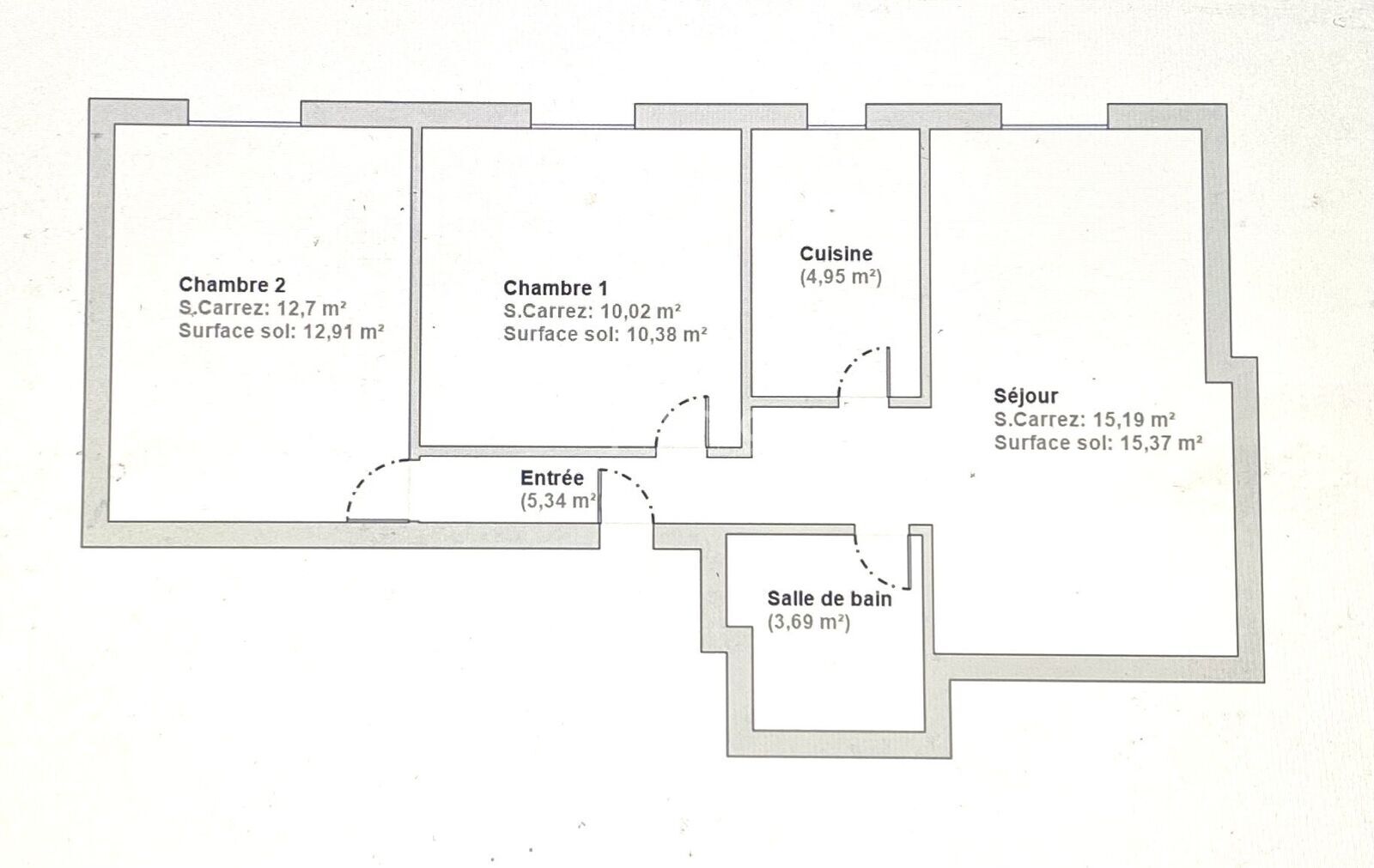
L'appartement est au 2ème étage avec ascenseur, il se compose d’une entrée, de deux chambres, d'un séjour, d'une cuisine (possibilité de casser le mur entre la cuisine et le salon), d'une salle de bain avec wc.
Profitez de la proximité des commerces, des cafés animés et des transports en commun.
Que vous soyez primo-accédant, investisseur ou à la recherche d'un pied-à-terre, cet appartement est une opportunité à ne pas manquer.
Contactez-moi dès maintenant pour organiser une visite et laissez-vous charmer par ce bien.

Les informations sur les risques auxquels ce bien est exposé sont disponibles sur le site Géorisques : www.georisques.gouv.fr

Caractéristiques

Honoraires charge
mandant
Type
appartement
État général
à rafraîchir
Environnement
centre ville
Orientation
Est
Disponibilité
à l'acte
Construction
1904
Surface habitable
52 m²
Étage
2
Floor count
6
Nb. chambres
2
Nb. salles de bains
1
Nb. cuisines
1
Types de cuisine
équipement de base
Chauffages
électricité
Ascenseur
Bien soumis au statut de la copropriété
Procédure en cours
aucune
Charges budget prévisionnel annuel
1 940,00 €
Nb. de logements
23
Nb. de lots
42
Taxe foncière
889,00 €

Télécharger le barème des honoraires

Localisation Paris, 75011

Tous les outils pour vos projets immobiliers

Découvrez Mon CID,

mon compagnon immobilier digital

Accès à toutes les ventes immobilières,

boussole à réalité augmentée,

tester le débit de votre futur achat,

calculatrice de mensualité, etc.

Application mobile disponible sur

En savoir plus

Plans

Performance énergétique

logement extrêmement performant
bâtiment performantpassoire énergétique
  • A< 70
  • B70 - 110
  • C110 - 180
  • D180 - 250
  • E250 - 330287kWh/m².an9 *kg CO2/m².an
  • F330 - 420
  • G> 420
logement extrêmement peu performant

* Dont émissions de gaz à effet de serre

peu d'émissions de CO2
  • A< 6
  • B6 - 119kg CO2/m².an
  • C11 - 30
  • D30 - 50
  • E50 - 70
  • F70 - 100
  • G> 100
émissions de CO2 très importantes

Estimation des dépenses annuelles d'énergie pour un usage standard

entre 1 170 € et 1 630 € / an *

* Prix moyens des énergies indexés pour l'année 2025 (abonnement compris).

Simulation de prêt

(10% du prix du bien)
%
(taux moyen hors assurance)

Montant estimé

2348 € / mois *

* Calculs effectués sur la base d'un prêt à taux fixe de 3,43% sur une durée de 25 ans avec un apport de 10% et hors assurance. Le coût de l'assurance de prêt dépend du capital assuré, de votre âge, de la durée du prêt, du taux d'intérêt du prêt, de votre questionnaire de santé et/ou médical, et de votre profession. Les calculs et solutions indiqués ne revêtent aucun caractère contractuel et ne sont en aucun cas une offre de prêt. Seuls les banques et organismes de financement sont habilités à accorder un financement. Pour tout crédit immobilier, vous êtes protégés par un délai de réflexion de 10 jours. Aucun versement de quelque nature que ce soit ne peut être exigé d'un particulier avant l'obtention d'un ou de plusieurs prêts d'argent. L'achat est subordonné à l'obtention du prêt. S'il n'est pas obtenu, le vendeur doit rembourser les sommes versées. Un crédit vous engage et doit être remboursé. Vérifiez vos capacités de remboursement avant de vous engager.

Cette annonce vous intéresse ?

Contactez-nous

Agent commercial en immobilier immatriculé au RSAC de Créteil sous le n°422137802

Ventes Titan d'argent 2023/2024

ou

Autres annonces à découvrir...

Logo La Fédération de l’Immobilier

La Fédé de l’Immo rassemble des agences immobilières indépendantes qui ont choisi d’adhérer à un modèle plus collaboratif, plus puissant et plus moderne. Ici, chaque agence reste indépendante. Mais aucune n’est isolée. En rejoignant La Fédé de l’Immo, les agences mutualisent leurs outils, leur visibilité et leurs opportunités, tout en conservant leur identité locale.

Coordonnées du siège

La Fédération de l’Immobilier
34 avenue des Champs Elysées
Paris, 75008 (France)
+33 3 88 62 97 69
contact@lafede.immo

Chaque Membre de la Fédération est juridiquement et financièrement indépendant.

Filtres SVG
Logo La Fédération de l’Immobilier Logo La Fédération de l’Immobilier La Fédération de l’Immobilier

En poursuivant votre navigation sur ce site, vous acceptez l'utilisation de Cookies pour mesurer l'audience de notre site.

En savoir plus