Description

400 m²

Situé dans un environnement très calme, ce terrain bénéficie d’une localisation idéale, alliant tranquillité et proximité immédiate des commodités, accessibles aussi bien à pied qu’en voiture.

Caractéristiques du terrain :

Surface : 400 m²
Terrain constructible
Non clôturé
Légèrement en pente
Exposition plein sud ☀️
Terrain viabilisé
Étude de sol G1 réalisée
Référence cadastrale : BV 303

Un permis de construire a déjà été déposé et accepté, offrant une réelle opportunité de gain de temps pour votre projet :
Maison de 84,35 m²
3 chambres
Possibilité de créer un garage supplémentaire de 17,95 m²

Nous pouvons également vous accompagner dans la réalisation de votre maison, en collaboration avec un constructeur individuel reconnu depuis de nombreuses années sur le secteur limouxin, gage de sérieux et de qualité.

Un très joli projet, clé en main ou personnalisable, dans un secteur prisé où les opportunités sont rares.
À découvrir sans tarder – Nouveauté sur le marché !

Les informations sur les risques auxquels ce bien est exposé sont disponibles sur le site Géorisques : www.georisques.gouv.fr

Caractéristiques

Honoraires charge
mandant
Type
terrain à bâtir
État général
à rafraîchir
Environnement
lotissement
Disponibilité
à l'acte
Surface terrain
400 m²

Télécharger le barème des honoraires

Localisation Limoux, 11300

Tous les outils pour vos projets immobiliers

Découvrez Mon CID,

mon compagnon immobilier digital

Accès à toutes les ventes immobilières,

boussole à réalité augmentée,

tester le débit de votre futur achat,

calculatrice de mensualité, etc.

Application mobile disponible sur

En savoir plus

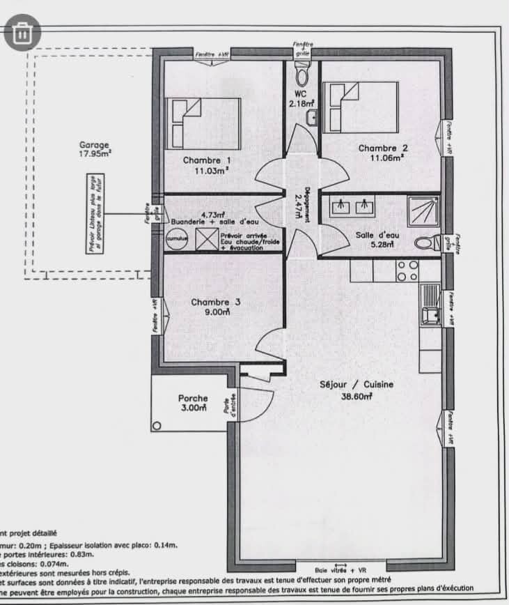
Plans

Détail des pièces

piece de vie 39 m²
chambre 11 m²
chambre 11 m²
chambre 9 m²
dégagement 2,5 m²
salle d'eau 5,3 m²
buandarie 4,7 m²
toilette 2,2 m²

Performance énergétique

logement extrêmement performant
bâtiment performantpassoire énergétique
  • A< 70
  • B70 - 110
  • C110 - 180
  • D180 - 250
  • E250 - 330
  • F330 - 420
  • G> 420
logement extrêmement peu performant

* Dont émissions de gaz à effet de serre

peu d'émissions de CO2
  • A< 6
  • B6 - 11
  • C11 - 30
  • D30 - 50
  • E50 - 70
  • F70 - 100
  • G> 100
émissions de CO2 très importantes

Simulation de prêt

(10% du prix du bien)
%
(taux moyen hors assurance)

Montant estimé

215 € / mois *

* Calculs effectués sur la base d'un prêt à taux fixe de 3,43% sur une durée de 25 ans avec un apport de 10% et hors assurance. Le coût de l'assurance de prêt dépend du capital assuré, de votre âge, de la durée du prêt, du taux d'intérêt du prêt, de votre questionnaire de santé et/ou médical, et de votre profession. Les calculs et solutions indiqués ne revêtent aucun caractère contractuel et ne sont en aucun cas une offre de prêt. Seuls les banques et organismes de financement sont habilités à accorder un financement. Pour tout crédit immobilier, vous êtes protégés par un délai de réflexion de 10 jours. Aucun versement de quelque nature que ce soit ne peut être exigé d'un particulier avant l'obtention d'un ou de plusieurs prêts d'argent. L'achat est subordonné à l'obtention du prêt. S'il n'est pas obtenu, le vendeur doit rembourser les sommes versées. Un crédit vous engage et doit être remboursé. Vérifiez vos capacités de remboursement avant de vous engager.

Cette annonce vous intéresse ?

Prenez contact avec Gwendoline Gouazé (EI)

Gwendoline Gouazé

Agent commercial en immobilier immatriculé au RSAC de Carcassonne sous le n°879221356

Développeur d'équipe Titan de bronze 2023/2024
Développeur d'équipe Titan d'or 2024/2025
Ventes Titan de bronze 2024/2025

ou

Autres annonces à découvrir...

Logo La Fédération de l’Immobilier

La Fédé de l’Immo rassemble des agences immobilières indépendantes qui ont choisi d’adhérer à un modèle plus collaboratif, plus puissant et plus moderne. Ici, chaque agence reste indépendante. Mais aucune n’est isolée. En rejoignant La Fédé de l’Immo, les agences mutualisent leurs outils, leur visibilité et leurs opportunités, tout en conservant leur identité locale.

Coordonnées du siège

La Fédération de l’Immobilier
34 avenue des Champs Elysées
Paris, 75008 (France)
+33 3 88 62 97 69
contact@lafede.immo

Chaque Membre de la Fédération est juridiquement et financièrement indépendant.

Filtres SVG
Logo La Fédération de l’Immobilier Logo La Fédération de l’Immobilier La Fédération de l’Immobilier

En poursuivant votre navigation sur ce site, vous acceptez l'utilisation de Cookies pour mesurer l'audience de notre site.

En savoir plus