Description

98 m²
537 m²
5 pièces
2 chambres
2 garages
1 sdb

Située à Haguenau, dans le quartier Marxenhouse, au cœur d’une rue résidentielle très calme, cette maison bénéficie d’un environnement privilégié, avec un vis-à-vis limité, tout en restant à proximité des commodités et du centre-ville.

Implantée sur une parcelle de 5,37 ares constructible, la propriété offre un fort potentiel de valorisation, nécessitant une rénovation globale permettant de révéler tout le potentiel du bien.

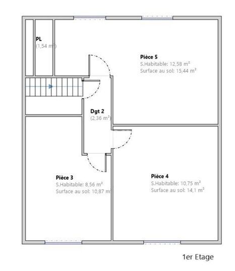
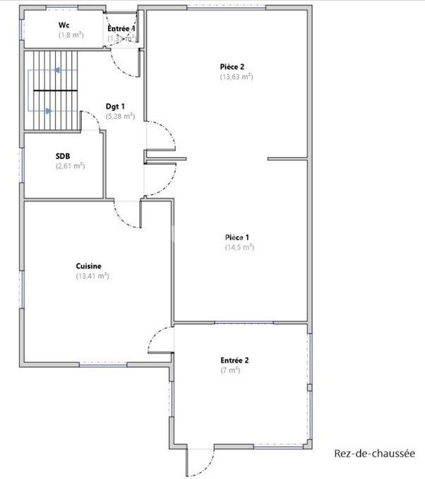
La maison développe une surface habitable d’environ 88 m² et se compose actuellement de 4 pièces. Les volumes existants et la configuration permettent de repenser entièrement les espaces selon vos envies.

À l’arrière de la maison, une extension de type véranda couverte vient compléter le rez-de-chaussée. Celle-ci permet notamment, via l’ouverture d’une trappe, l’accès à un sous-sol complet, occupant toute la surface de la maison, offrant ainsi un espace supplémentaire appréciable pour le stockage ou d’autres usages.

Le système de chauffage actuellement en place est au fuel.

Une dépendance complète ce bien et offre des possibilités supplémentaires d’aménagement ou de stockage, renforçant encore le potentiel global de la propriété.

Amateurs de projets, investisseurs ou passionnés de rénovation, cette maison est faite pour vous.

Les informations sur les risques auxquels ce bien est exposé sont disponibles sur le site Géorisques : www.georisques.gouv.fr

Caractéristiques

Honoraires charge
mandant
Type
maison
État général
à rénover
Environnement
zone Résidentielle
Disponibilité
à l'acte
Construction
1950
Surface terrain
537 m²
Surface habitable
98 m²
Nb. chambres
2
Nb. salles de bains
1
Nb. cuisines
1
Nb. garages
2
Types de cuisine
équipée
Chauffages
fuel
Cave

Télécharger le barème des honoraires

Localisation Haguenau, 67500

Tous les outils pour vos projets immobiliers

Découvrez Mon CID,

mon compagnon immobilier digital

Accès à toutes les ventes immobilières,

boussole à réalité augmentée,

tester le débit de votre futur achat,

calculatrice de mensualité, etc.

Application mobile disponible sur

En savoir plus

Performance énergétique

logement extrêmement performant
bâtiment performantpassoire énergétique
  • A< 70
  • B70 - 110
  • C110 - 180
  • D180 - 250
  • E250 - 330
  • F330 - 420369kWh/m².an72 *kg CO2/m².anLogement à consommation énergétique excessive
  • G> 420
logement extrêmement peu performant

* Dont émissions de gaz à effet de serre

peu d'émissions de CO2
  • A< 6
  • B6 - 11
  • C11 - 30
  • D30 - 50
  • E50 - 70
  • F70 - 10072kg CO2/m².an
  • G> 100
émissions de CO2 très importantes

Estimation des dépenses annuelles d'énergie pour un usage standard

entre 3 400 € et 4 650 € / an *

* Prix moyens des énergies indexés pour l'année 2021 (abonnement compris).

Simulation de prêt

(10% du prix du bien)
%
(taux moyen hors assurance)

Montant estimé

844 € / mois *

* Calculs effectués sur la base d'un prêt à taux fixe de 3,37% sur une durée de 25 ans avec un apport de 10% et hors assurance. Le coût de l'assurance de prêt dépend du capital assuré, de votre âge, de la durée du prêt, du taux d'intérêt du prêt, de votre questionnaire de santé et/ou médical, et de votre profession. Les calculs et solutions indiqués ne revêtent aucun caractère contractuel et ne sont en aucun cas une offre de prêt. Seuls les banques et organismes de financement sont habilités à accorder un financement. Pour tout crédit immobilier, vous êtes protégés par un délai de réflexion de 10 jours. Aucun versement de quelque nature que ce soit ne peut être exigé d'un particulier avant l'obtention d'un ou de plusieurs prêts d'argent. L'achat est subordonné à l'obtention du prêt. S'il n'est pas obtenu, le vendeur doit rembourser les sommes versées. Un crédit vous engage et doit être remboursé. Vérifiez vos capacités de remboursement avant de vous engager.

Cette annonce vous intéresse ?

Prenez contact avec Valentin Weber (EI)

Valentin Weber

Agent commercial en immobilier immatriculé au RSAC de STRASBOURG sous le n°918491689

Ventes Titan de bronze 2024/2025

ou

Autres annonces à découvrir...

Logo La Fédération de l’Immobilier

La Fédé de l’Immo rassemble des agences immobilières indépendantes qui ont choisi d’adhérer à un modèle plus collaboratif, plus puissant et plus moderne. Ici, chaque agence reste indépendante. Mais aucune n’est isolée. En rejoignant La Fédé de l’Immo, les agences mutualisent leurs outils, leur visibilité et leurs opportunités, tout en conservant leur identité locale.

Coordonnées du siège

La Fédération de l’Immobilier
34 avenue des Champs Elysées
Paris, 75008 (France)
+33 3 88 62 97 69
contact@lafede.immo

Chaque Membre de la Fédération est juridiquement et financièrement indépendant.

Filtres SVG
Logo La Fédération de l’Immobilier Logo La Fédération de l’Immobilier La Fédération de l’Immobilier

En poursuivant votre navigation sur ce site, vous acceptez l'utilisation de Cookies pour mesurer l'audience de notre site.

En savoir plus