Description

244 m²
9864 m²
10 pièces
3 garages
2 sdb

Venez découvrir avec Olivier Dhulu LF Immo, cette propriété historique de 244 m² à rénover sur près d’un hectare .

Située sur la commune de Bavincourt, au cœur d’un environnement bucolique et champêtre, cette propriété de caractère, édifiée en 1874, développe 244 m² habitables et s’implante sur une parcelle de 9 864 m², composée de pâtures et de zones boisées, offrant un cadre naturel préservé, sans vis-à-vis et propice au calme.

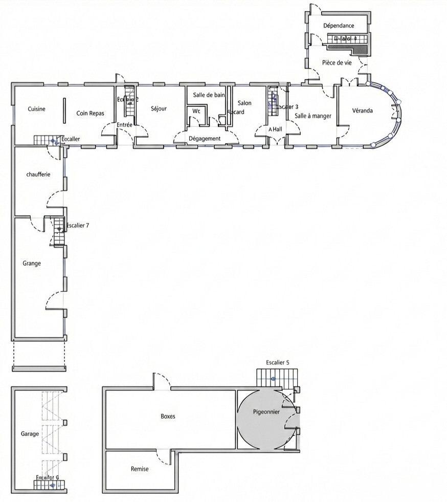
Un ensemble immobilier rare aux volumes exceptionnels
La maison principale est complétée par un ensemble de dépendances représentant plus de 230 m² supplémentaires, formant un véritable site indépendant :

Dépendance principale :
75 m² au rez-de-chaussée + 75 m² à l’étage, soit 150 m² sur deux niveaux
Dépendance avec pigeonnier :
Environ 55 m², élément patrimonial emblématique du lieu
Troisième dépendance :
50 m² au rez-de-chaussée + 50 m² à l’étage, soit 100 m² supplémentaires

L’ensemble offre une capacité d’aménagement et de valorisation rare, parfaitement adaptée à des projets de grande envergure.

Un lieu chargé d’histoire
La propriété conserve de nombreux témoignages de son passé, qui participent pleinement à son identité :

Le pigeonnier ancien, symbole du patrimoine rural
Les boxes à chevaux, avec la présence encore visible du lit du palefrenier dans l’écurie
La chambre de l’ouvrier agricole au sein des granges
L’ancien four à pain et bien d’autres surprises

Ces éléments confèrent au lieu une authenticité forte, particulièrement recherchée dans les projets ouverts au public.

Localisation et cadre de vie

Bavincourt, village à l’ambiance rurale et paisible, offrant un cadre idéal pour un projet de vie ou d’accueil
Beaumetz-lès-Loges à quelques minutes, avec l’ensemble des commerces et services de proximité
Arras accessible rapidement (environ un quart d’heure), avec sa gare, ses commerces, ses écoles et son attractivité touristique
Accès aisé pour les visiteurs et stationnement possible sur site

Cette situation permet de conjuguer calme absolu, accessibilité et attractivité territoriale, un critère déterminant pour les projets événementiels ou touristiques.

Potentiel et usages compatibles
Bien à rénover, cette propriété offre une liberté totale de réinterprétation, avec des usages naturellement compatibles :
Activités événementielles : mariages, réceptions, séminaires, événements privés ou professionnels
Tourisme et hébergement : gîtes, chambres d’hôtes, accueil de groupes
Activités en lien avec la nature ou le cheval, grâce aux pâtures et aux installations existantes

Projet mêlant patrimoine, nature et accueil, dans un cadre authentique et différenciant

Le terrain boisé, les volumes, l’isolement relatif et l’histoire du site en font un support idéal pour des projets à forte valeur ajoutée émotionnelle.

En résumé
Il s’agit ici non pas d’une simple maison, mais d’un véritable lieu, offrant :
une architecture ancienne de caractère,
un ensemble de dépendances exceptionnel,
un cadre naturel rare,
et un potentiel d’exploitation multiple.

Une opportunité singulière pour les acquéreurs en quête d’un projet de vie ou d’activité hors standard, à proximité immédiate d’Arras.

Vous voulez découvrir cette maison sans vous déplacer ? Visite virtuelle disponible sur demande après un échange téléphonique.

Les informations sur les risques auxquels ce bien est exposé sont disponibles sur le site Géorisques : www.georisques.gouv.fr

Caractéristiques

Honoraires charge
mandant
Type
ferme
État général
à rénover
Environnement
village
Orientation
Sud
Disponibilité
à l'acte
Construction
1874
Surface terrain
9864 m²
Surface habitable
244 m²
Nb. salles de bains
2
Nb. cuisines
1
Nb. garages
3
Chauffages
bois
Parking privé
Cave
Cheminée
Taxe foncière
1 498,00 €

Télécharger le barème des honoraires

Localisation Bavincourt, 62158

Tous les outils pour vos projets immobiliers

Découvrez Mon CID,

mon compagnon immobilier digital

Accès à toutes les ventes immobilières,

boussole à réalité augmentée,

tester le débit de votre futur achat,

calculatrice de mensualité, etc.

Application mobile disponible sur

En savoir plus

Plans

Performance énergétique

logement extrêmement performant
bâtiment performantpassoire énergétique
  • A< 70
  • B70 - 110
  • C110 - 180
  • D180 - 250
  • E250 - 330
  • F330 - 420389kWh/m².an11 *kg CO2/m².anLogement à consommation énergétique excessive
  • G> 420
logement extrêmement peu performant

* Dont émissions de gaz à effet de serre

peu d'émissions de CO2
  • A< 6
  • B6 - 11
  • C11 - 3011kg CO2/m².an
  • D30 - 50
  • E50 - 70
  • F70 - 100
  • G> 100
émissions de CO2 très importantes

Estimation des dépenses annuelles d'énergie pour un usage standard

entre 5 290 € et 7 220 € / an *

* Prix moyens des énergies indexés pour l'année 2022 (abonnement compris).

Simulation de prêt

(10% du prix du bien)
%
(taux moyen hors assurance)

Montant estimé

2055 € / mois *

* Calculs effectués sur la base d'un prêt à taux fixe de 3,32% sur une durée de 25 ans avec un apport de 10% et hors assurance. Le coût de l'assurance de prêt dépend du capital assuré, de votre âge, de la durée du prêt, du taux d'intérêt du prêt, de votre questionnaire de santé et/ou médical, et de votre profession. Les calculs et solutions indiqués ne revêtent aucun caractère contractuel et ne sont en aucun cas une offre de prêt. Seuls les banques et organismes de financement sont habilités à accorder un financement. Pour tout crédit immobilier, vous êtes protégés par un délai de réflexion de 10 jours. Aucun versement de quelque nature que ce soit ne peut être exigé d'un particulier avant l'obtention d'un ou de plusieurs prêts d'argent. L'achat est subordonné à l'obtention du prêt. S'il n'est pas obtenu, le vendeur doit rembourser les sommes versées. Un crédit vous engage et doit être remboursé. Vérifiez vos capacités de remboursement avant de vous engager.

Cette annonce vous intéresse ?

Prenez contact avec Olivier Dhulu (EI)

Olivier Dhulu

Agent commercial en immobilier immatriculé au RSAC de ARRAS sous le n°834463093

Ventes Titan de bronze 2024/2025

ou

Logo La Fédé de l'Immo

La Fédé de l’Immo rassemble des agences immobilières indépendantes qui ont choisi d’adhérer à un modèle plus collaboratif, plus puissant et plus moderne. Ici, chaque agence reste indépendante. Mais aucune n’est isolée. En rejoignant La Fédé de l’Immo, les agences mutualisent leurs outils, leur visibilité et leurs opportunités, tout en conservant leur identité locale.

Coordonnées du siège

La Fédé de l'Immo

(France)

Chaque Membre de la Fédération est juridiquement et financièrement indépendant.

Filtres SVG
Logo La Fédé de l'Immo Logo La Fédé de l'Immo La Fédé de l'Immo

En poursuivant votre navigation sur ce site, vous acceptez l'utilisation de Cookies pour mesurer l'audience de notre site.

En savoir plus