Description

80,79 m²
3 pièces
2 chambres
1 garage
1 sdb

Découvrez ce charmant appartement T3 de 82,5 m² idéalement situé, à proximité de la rocade et du secteur prisé de Bordeaux Lac.

Points forts :
Balcon-terrasse de 13 m² exposé Est, offrant un espace extérieur agréable pour profiter des beaux jours.
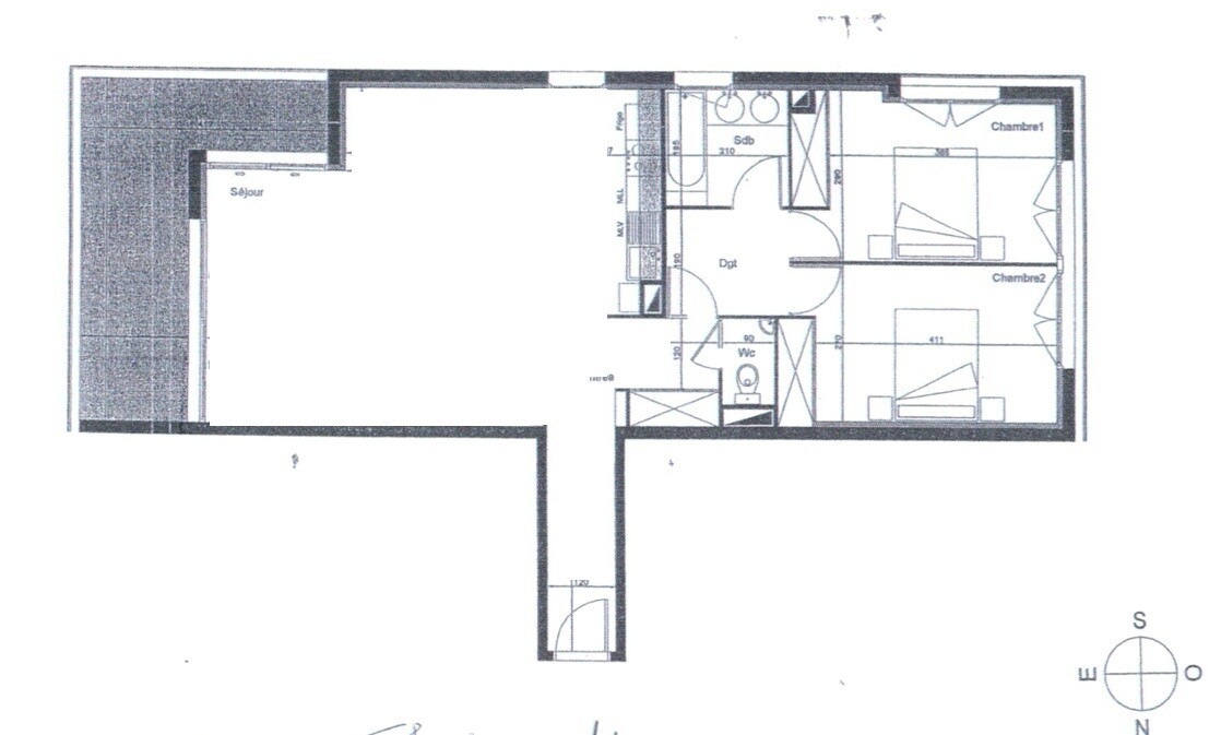
Belle pièce de vie lumineuse de 37m2 avec cuisine ouverte, conviviale et fonctionnelle.
2 chambres spacieuses avec placards, parfaites pour une famille ou un bureau supplémentaire.
Salle de bain équipée pour un confort optimal.

Stationnement sécurisé : garage en sous-sol.
Chauffage individuel au gaz.

Travaux déjà pris en charge : ravalement et étanchéité du toit.

Appartement idéalement situé, proche des commodités et de la rocade pour un accès rapide à Bordeaux et ses environs.

Les informations sur les risques auxquels ce bien est exposé sont disponibles sur le site Géorisques : www.georisques.gouv.fr

Caractéristiques

Honoraires charge
mandant
Type
appartement
État général
très bon
Environnement
zone Résidentielle
Orientation
Est
Disponibilité
immédiate
Construction
2007
Surface totale
108,57 m²
Surface terrain
0 m²
Surface habitable
80,79 m²
Étage
2
Floor count
4
Nb. chambres
2
Nb. salles de bains
1
Nb. cuisines
1
Nb. garages
1
Nb. parking
1
Nb. balcons
1
Types de cuisine
super équipée
Chauffages
gaz
Parking privé
Ascenseur
Terrasse
Tout à l'égout
Bien soumis au statut de la copropriété
Procédure en cours
aucune
Charges budget prévisionnel annuel
1 350,00 €
Nb. de logements
76
Nb. de lots
142
Taxe foncière
1 554,00 €

Télécharger le barème des honoraires

Localisation Bruges, 33520

Pour des raisons de confidentialité, la géolocalisation de ce bien a été dégradée.

Tous les outils pour vos projets immobiliers

Découvrez Mon CID,

mon compagnon immobilier digital

Accès à toutes les ventes immobilières,

boussole à réalité augmentée,

tester le débit de votre futur achat,

calculatrice de mensualité, etc.

Application mobile disponible sur

En savoir plus

Plans

Performance énergétique

logement extrêmement performant
bâtiment performantpassoire énergétique
  • A< 70
  • B70 - 110
  • C110 - 180116kWh/m².an23 *kg CO2/m².an
  • D180 - 250
  • E250 - 330
  • F330 - 420
  • G> 420
logement extrêmement peu performant

* Dont émissions de gaz à effet de serre

peu d'émissions de CO2
  • A< 6
  • B6 - 11
  • C11 - 3023kg CO2/m².an
  • D30 - 50
  • E50 - 70
  • F70 - 100
  • G> 100
émissions de CO2 très importantes

Estimation des dépenses annuelles d'énergie pour un usage standard

entre 940 € et 1 320 € / an *

* Prix moyens des énergies indexés pour l'année 2023 (abonnement compris).

Simulation de prêt

(10% du prix du bien)
%
(taux moyen hors assurance)

Montant estimé

1781 € / mois *

* Calculs effectués sur la base d'un prêt à taux fixe de 3,39% sur une durée de 25 ans avec un apport de 10% et hors assurance. Le coût de l'assurance de prêt dépend du capital assuré, de votre âge, de la durée du prêt, du taux d'intérêt du prêt, de votre questionnaire de santé et/ou médical, et de votre profession. Les calculs et solutions indiqués ne revêtent aucun caractère contractuel et ne sont en aucun cas une offre de prêt. Seuls les banques et organismes de financement sont habilités à accorder un financement. Pour tout crédit immobilier, vous êtes protégés par un délai de réflexion de 10 jours. Aucun versement de quelque nature que ce soit ne peut être exigé d'un particulier avant l'obtention d'un ou de plusieurs prêts d'argent. L'achat est subordonné à l'obtention du prêt. S'il n'est pas obtenu, le vendeur doit rembourser les sommes versées. Un crédit vous engage et doit être remboursé. Vérifiez vos capacités de remboursement avant de vous engager.

Cette annonce vous intéresse ?

Prenez contact avec Michaël Larant (EI)

Michaël Larant

Agent commercial en immobilier immatriculé au RSAC de BORDEAUX sous le n°907635809

Ventes Titan d'argent 2023/2024
Ventes Titan de bronze 2024/2025

ou

Autres annonces à découvrir...

Logo La Fédération de l'Immobilier

La Fédération de l’Immobilier by LF met à disposition des professionnels une structure éprouvée, alliant outils technologiques, formation et accompagnement de haut niveau. Une vision claire : partager nos ressources pour bâtir un immobilier plus solide, plus agile, plus humain

Coordonnées

La Fédération de l'Immobilier

(France)

Chaque Membre de la Fédération est juridiquement et financièrement indépendant.

Filtres SVG
Logo La Fédération de l'Immobilier Logo La Fédération de l'Immobilier La Fédération de l'Immobilier

En poursuivant votre navigation sur ce site, vous acceptez l'utilisation de Cookies pour mesurer l'audience de notre site.

En savoir plus