Description

210 m²
1391 m²
6 pièces
4 chambres
1 garage
2 sdb

62223 Anzin-Saint-Aubin - Maison d'architecte en semi plain-pied

Découvrez avec Olivier Dhulu LF Immo cette maison d’architecte de 210 m² habitables, bâtie en 1981, sur un terrain de 1 391m² et idéalement située dans la commune très prisée d’Anzin-Saint-Aubin.

Une maison d’architecte qui ne se livre pas au premier regard : depuis la rue, elle intrigue... puis elle surprend. On a presque l’impression d’entrer dans la maison par le toit avant d’en découvrir toute la profondeur.

Emplacement privilégié
Au cœur d’un secteur résidentiel recherché, cette maison bénéficie d’un environnement calme tout en restant proche de la qualité de vie d’Anzin-Saint-Aubin :
Cadre de vie prisé : atmosphère familiale, grand jardin et espaces verts attenants
Proximité d’Arras : accès rapide au centre-ville, à la gare TGV et aux commerces
Services & commodités : écoles, commerces, équipements sportifs et loisirs à portée de main
Mobilité facilitée : accès rapide vers les communes de la CUA, l’A1 et l’A26

Une parcelle généreuse et des volumes remarquables
Édifiée sur une parcelle de 1 391 m², cette maison séduit par ses espaces audacieux, lumineux et modulables.

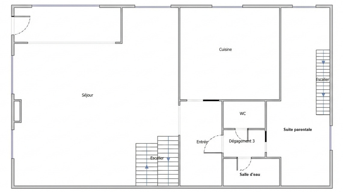
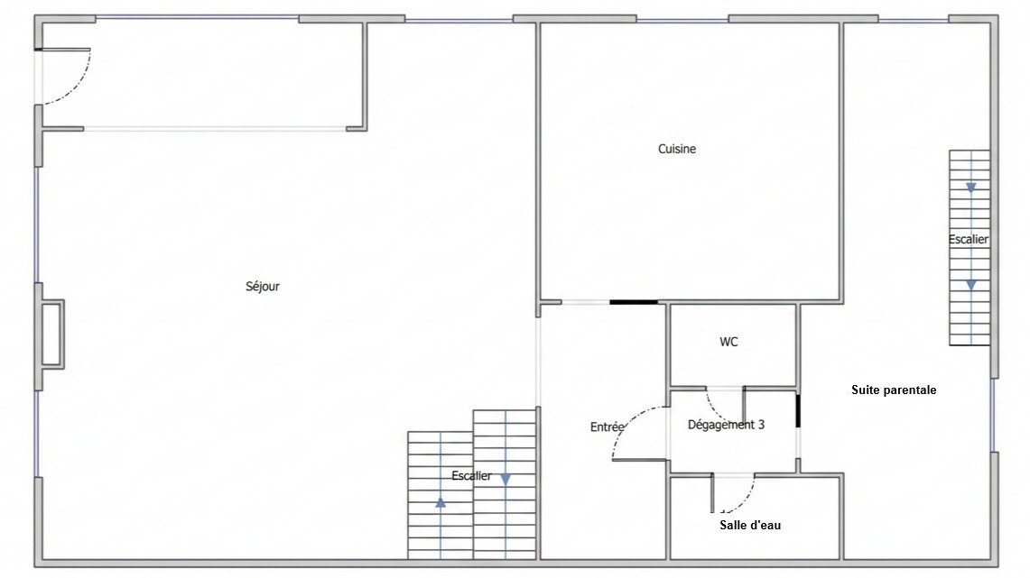
Au niveau zéro :
Hall d’entrée distribuant les pièces
Séjour de 90 m², baigné de lumière grâce à de grandes ouvertures, avec accès direct à une première terrasse
Cuisine indépendante de 20 m², fonctionnelle et conviviale
Suite parentale de 30 m²
Salle d’eau
Wc séparés

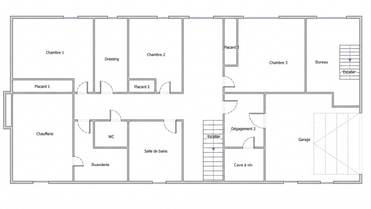
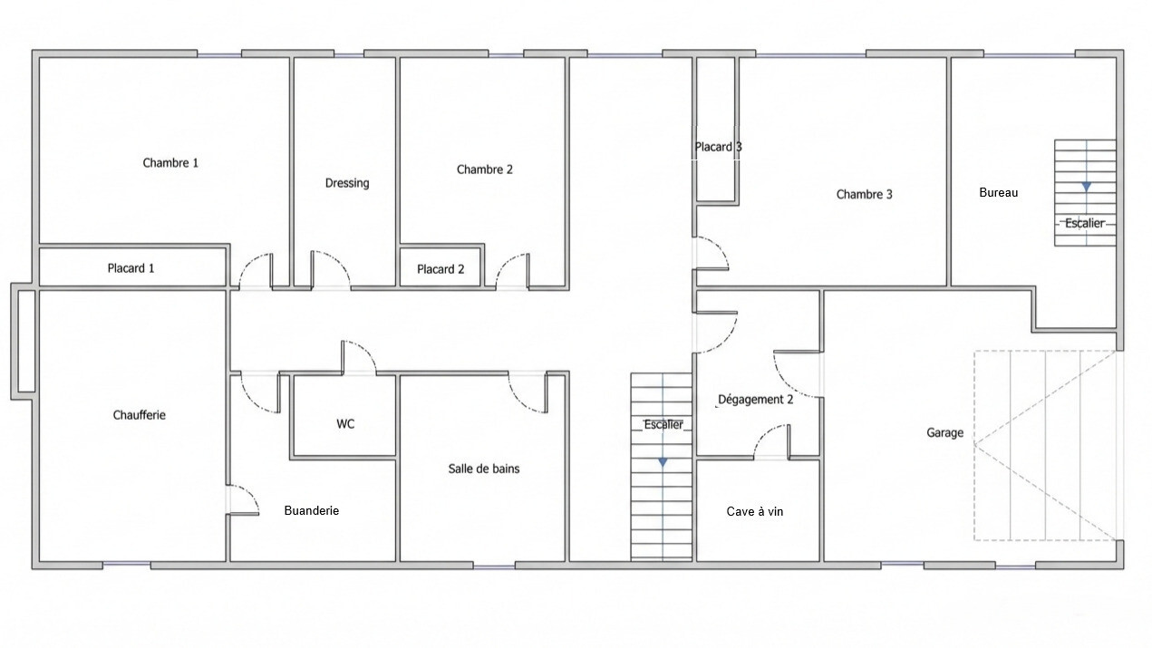
Au niveau inférieur :
3 chambres
Dressing
Bureau
Salle de bains avec baignoire et douche
Wc séparés
Cave à vin, buanderie et chaufferie
Garage

Au niveau supérieur :
Grenier aménageable : salle de sport, salle de jeux, espace loisirs… laissez libre cours à votre imagination.

Ce semi plain-pied offre un confort optimal et une répartition des pièces idéale pour la vie de famille.

Extérieurs et annexes :
Jardin avec grand chalet de jardin et une deuxième terrasse
Places de stationnement
Espaces modulables pour profiter de l’extérieur ou aménager selon vos besoins

Confort & état du bien :
Maison en bon état général nécessitant quelques travaux de rafraîchissement
Architecture pensée pour la vie de famille, espaces lumineux et modulables

Une maison qui se découvre bien mieux qu’elle ne se décrit. Contactez-moi pour organiser votre visite et vous laisser surprendre.

Les informations sur les risques auxquels ce bien est exposé sont disponibles sur le site Géorisques : www.georisques.gouv.fr

Caractéristiques

Prix hors honoraires d'agence
580 000,00 €
Honoraires charge
acquéreur
Pourcentage à la charge de l'acquéreur
2,93%
Type
maison
État général
bon
Environnement
parc
Orientation
Ouest
Disponibilité
à l'acte
Construction
1981
Surface terrain
1391 m²
Surface habitable
210 m²
Nb. chambres
4
Nb. salles de bains
2
Nb. salles d'eau
1
Nb. cuisines
1
Nb. garages
1
Nb. parking
4
Types de cuisine
équipée et aménagée
Chauffages
gaz
Parking privé
Terrasse
Cheminée
Tout à l'égout
Taxe foncière
2 471,00 €

Télécharger le barème des honoraires

Tous les outils pour vos projets immobiliers

Découvrez Mon CID,

mon compagnon immobilier digital

Accès à toutes les ventes immobilières,

boussole à réalité augmentée,

tester le débit de votre futur achat,

calculatrice de mensualité, etc.

Application mobile disponible sur

En savoir plus

Performance énergétique

logement extrêmement performant
bâtiment performantpassoire énergétique
  • A< 70
  • B70 - 110
  • C110 - 180
  • D180 - 250
  • E250 - 330236kWh/m².an51 *kg CO2/m².an
  • F330 - 420
  • G> 420
logement extrêmement peu performant

* Dont émissions de gaz à effet de serre

peu d'émissions de CO2
  • A< 6
  • B6 - 11
  • C11 - 30
  • D30 - 50
  • E50 - 7051kg CO2/m².an
  • F70 - 100
  • G> 100
émissions de CO2 très importantes

Estimation des dépenses annuelles d'énergie pour un usage standard

entre 4 250 € et 5 790 € / an *

* Prix moyens des énergies indexés pour l'année 2022 (abonnement compris).

Simulation de prêt

(10% du prix du bien)
%
(taux moyen hors assurance)

Montant estimé

2638 € / mois *

* Calculs effectués sur la base d'un prêt à taux fixe de 3,32% sur une durée de 25 ans avec un apport de 10% et hors assurance. Le coût de l'assurance de prêt dépend du capital assuré, de votre âge, de la durée du prêt, du taux d'intérêt du prêt, de votre questionnaire de santé et/ou médical, et de votre profession. Les calculs et solutions indiqués ne revêtent aucun caractère contractuel et ne sont en aucun cas une offre de prêt. Seuls les banques et organismes de financement sont habilités à accorder un financement. Pour tout crédit immobilier, vous êtes protégés par un délai de réflexion de 10 jours. Aucun versement de quelque nature que ce soit ne peut être exigé d'un particulier avant l'obtention d'un ou de plusieurs prêts d'argent. L'achat est subordonné à l'obtention du prêt. S'il n'est pas obtenu, le vendeur doit rembourser les sommes versées. Un crédit vous engage et doit être remboursé. Vérifiez vos capacités de remboursement avant de vous engager.

Cette annonce vous intéresse ?

Prenez contact avec Olivier Dhulu (EI)

Olivier Dhulu

Agent commercial en immobilier immatriculé au RSAC de ARRAS sous le n°834463093

Ventes Titan de bronze 2024/2025

ou

Autres annonces à découvrir...

Logo La Fédé de l'Immo

La Fédé de l’Immo rassemble des agences immobilières indépendantes qui ont choisi d’adhérer à un modèle plus collaboratif, plus puissant et plus moderne. Ici, chaque agence reste indépendante. Mais aucune n’est isolée. En rejoignant La Fédé de l’Immo, les agences mutualisent leurs outils, leur visibilité et leurs opportunités, tout en conservant leur identité locale.

Coordonnées du siège

La Fédé de l'Immo

(France)

Chaque Membre de la Fédération est juridiquement et financièrement indépendant.

Filtres SVG
Logo La Fédé de l'Immo Logo La Fédé de l'Immo La Fédé de l'Immo

En poursuivant votre navigation sur ce site, vous acceptez l'utilisation de Cookies pour mesurer l'audience de notre site.

En savoir plus