Description

33,22 m²
1 pièce
1 sdb

Situé dans le secteur calme et prisé de Boisparisis, cet appartement traversant représente une opportunité d’investissement locatif sécurisée, avec locataire en place.

À proximité immédiate des commerces, écoles et transports, il bénéficie d’un emplacement stratégique : gare RER B Villeparisis/Mitry à 15 minutes à pied, accès rapide à Roissy Charles-de-Gaulle (15 minutes en voiture), et pour l’équilibre travail/nature, le canal de l’Ourcq à deux pas.

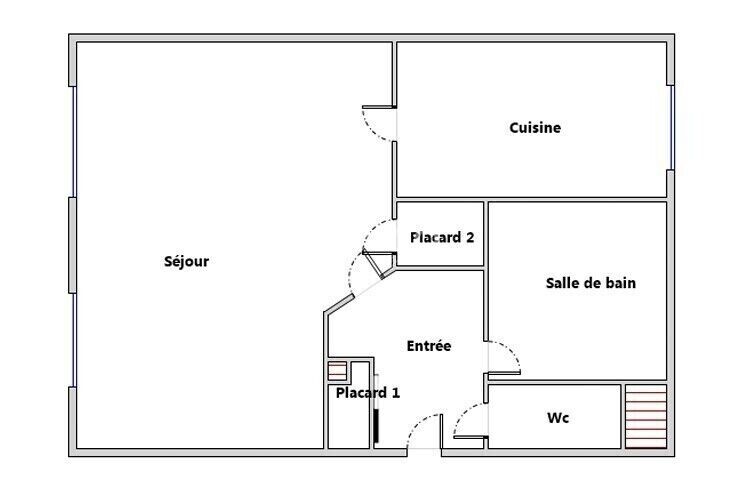
En rez-de-chaussée, cet appartement 1 pièce traversant Est/Ouest offre une belle luminosité tout au long de la journée. Il se compose :

d’une pièce de vie de 19 m²,

d’une cuisine indépendante aménagée,

d’une salle de bain carrelée avec emplacement pour machine à laver,

de WC séparés,

d’une entrée avec placard intégré.

Le bien a fait l’objet d’une rénovation complète (peintures, parquet, ballon d’eau chaude), garantissant un logement en excellent état et sans travaux à prévoir.

Un emplacement de parking privatif en sous-sol sécurisé complète l’ensemble — un vrai plus sur le secteur.

Bien vendu loué : solution idéale pour un investissement serein, avec rentabilité immédiate et gestion simplifiée.

Les informations sur les risques auxquels ce bien est exposé sont disponibles sur le site Géorisques : www.georisques.gouv.fr

Caractéristiques

Honoraires charge
mandant
Type
appartement
État général
bon
Environnement
urbain
Orientation
Est
Disponibilité
à l'acte
Construction
1990
Surface habitable
33,22 m²
Nb. salles de bains
1
Nb. cuisines
1
Nb. parking
1
Types de cuisine
aménagée
Chauffages
électricité
Bien soumis au statut de la copropriété
Procédure en cours
aucune
Charges budget prévisionnel annuel
1 020,00 €
Nb. de logements
18
Nb. de lots
51
Taxe foncière
1 041,00 €

Télécharger le barème des honoraires

Localisation Villeparisis, 77270

Pour des raisons de confidentialité, la géolocalisation de ce bien a été dégradée.

Tous les outils pour vos projets immobiliers

Découvrez Mon CID,

mon compagnon immobilier digital

Accès à toutes les ventes immobilières,

boussole à réalité augmentée,

tester le débit de votre futur achat,

calculatrice de mensualité, etc.

Application mobile disponible sur

En savoir plus

Performance énergétique

logement extrêmement performant
bâtiment performantpassoire énergétique
  • A< 74
  • B74 - 114
  • C114 - 191
  • D191 - 261
  • E261 - 342277kWh/m².an10 *kg CO2/m².an
  • F342 - 432
  • G> 432
logement extrêmement peu performant

* Dont émissions de gaz à effet de serre

peu d'émissions de CO2
  • A< 7
  • B7 - 1210kg CO2/m².an
  • C12 - 31
  • D31 - 51
  • E51 - 71
  • F71 - 101
  • G> 101
émissions de CO2 très importantes

Estimation des dépenses annuelles d'énergie pour un usage standard

entre 900 € et 1 260 € / an *

* Prix moyens des énergies indexés pour l'année 2023 (abonnement compris).

Simulation de prêt

(10% du prix du bien)
%
(taux moyen hors assurance)

Montant estimé

552 € / mois *

* Calculs effectués sur la base d'un prêt à taux fixe de 3,32% sur une durée de 25 ans avec un apport de 10% et hors assurance. Le coût de l'assurance de prêt dépend du capital assuré, de votre âge, de la durée du prêt, du taux d'intérêt du prêt, de votre questionnaire de santé et/ou médical, et de votre profession. Les calculs et solutions indiqués ne revêtent aucun caractère contractuel et ne sont en aucun cas une offre de prêt. Seuls les banques et organismes de financement sont habilités à accorder un financement. Pour tout crédit immobilier, vous êtes protégés par un délai de réflexion de 10 jours. Aucun versement de quelque nature que ce soit ne peut être exigé d'un particulier avant l'obtention d'un ou de plusieurs prêts d'argent. L'achat est subordonné à l'obtention du prêt. S'il n'est pas obtenu, le vendeur doit rembourser les sommes versées. Un crédit vous engage et doit être remboursé. Vérifiez vos capacités de remboursement avant de vous engager.

Cette annonce vous intéresse ?

Prenez contact avec Régis Desmoulins (EI)

Régis Desmoulins

Agent commercial en immobilier immatriculé au RSAC de MEAUX sous le n°978394294


ou

Autres annonces à découvrir...

Logo La Fédé de l'Immo

La Fédé de l’Immo rassemble des agences immobilières indépendantes qui ont choisi d’adhérer à un modèle plus collaboratif, plus puissant et plus moderne. Ici, chaque agence reste indépendante. Mais aucune n’est isolée. En rejoignant La Fédé de l’Immo, les agences mutualisent leurs outils, leur visibilité et leurs opportunités, tout en conservant leur identité locale.

Coordonnées du siège

La Fédé de l'Immo

(France)

Chaque Membre de la Fédération est juridiquement et financièrement indépendant.

Filtres SVG
Logo La Fédé de l'Immo Logo La Fédé de l'Immo La Fédé de l'Immo

En poursuivant votre navigation sur ce site, vous acceptez l'utilisation de Cookies pour mesurer l'audience de notre site.

En savoir plus