Description

107 m²
300 m²
6 pièces
3 chambres
1 garage
1 sdb

🏡 Duplex 107 m² – Fort potentiel – Jardin clos & dépendance – Commune de Rothau

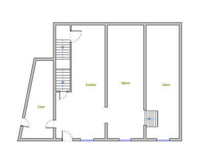
Situé sur la commune de Rothau, venez découvrir ce duplex de 107 m² offrant de beaux volumes et un fort potentiel d’aménagement.

Le bien se compose au rez-de-chaussée d’une cuisine, d’une salle à manger, d’un séjour, ainsi que des espaces nuit comprenant quatre chambres (dont chambres en enfilade), une salle de bain et un WC séparé.
Chauffage au gaz datant de 2008.

🔨 Des travaux de rénovation sont à prévoir, laissant libre cours à vos envies :

Rafraîchissement global
Redistribution possible des pièces
Optimisation des volumes existants
Création d’une chambre supplémentaire dans les combles (aménagement total à prévoir)
Un bien idéal pour un projet familial ou pour un investisseur souhaitant valoriser le potentiel existant.

🌳 À l’extérieur, vous bénéficierez :

D’un jardin clos d’environ 300 m²
Stationnements
D’une annexe de rangement d’environ 30 m², parfaite pour stockage, atelier,...


Un bien avec du cachet et de nombreuses possibilités d’évolution.

Les informations sur les risques auxquels ce bien est exposé sont disponibles sur le site Géorisques : www.georisques.gouv.fr

Caractéristiques

Honoraires charge
mandant
Type
duplex
État général
à rafraîchir
Environnement
village
Disponibilité
à l'acte
Construction
1900
Surface terrain
300 m²
Surface habitable
107 m²
Nb. chambres
3
Nb. salles de bains
1
Nb. cuisines
1
Nb. garages
1
Nb. parking
2
Types de cuisine
aménagée
Chauffages
gaz
Parking privé
Cave
Terrasse
Bien soumis au statut de la copropriété
Procédure en cours
aucune
Charges budget prévisionnel annuel
0,00 €
Nb. de logements
2
Nb. de lots
4

Télécharger le barème des honoraires

Localisation Rothau, 67570

Tous les outils pour vos projets immobiliers

Découvrez Mon CID,

mon compagnon immobilier digital

Accès à toutes les ventes immobilières,

boussole à réalité augmentée,

tester le débit de votre futur achat,

calculatrice de mensualité, etc.

Application mobile disponible sur

En savoir plus

Performance énergétique

logement extrêmement performant
bâtiment performantpassoire énergétique
  • A< 70
  • B70 - 110
  • C110 - 180
  • D180 - 250
  • E250 - 330279kWh/m².an61 *kg CO2/m².an
  • F330 - 420
  • G> 420
logement extrêmement peu performant

* Dont émissions de gaz à effet de serre

peu d'émissions de CO2
  • A< 6
  • B6 - 11
  • C11 - 30
  • D30 - 50
  • E50 - 7061kg CO2/m².an
  • F70 - 100
  • G> 100
émissions de CO2 très importantes

Estimation des dépenses annuelles d'énergie pour un usage standard

entre 2 630 € et 3 610 € / an *

* Prix moyens des énergies indexés pour l'année 2021 (abonnement compris).

Simulation de prêt

(10% du prix du bien)
%
(taux moyen hors assurance)

Montant estimé

444 € / mois *

* Calculs effectués sur la base d'un prêt à taux fixe de 3,37% sur une durée de 25 ans avec un apport de 10% et hors assurance. Le coût de l'assurance de prêt dépend du capital assuré, de votre âge, de la durée du prêt, du taux d'intérêt du prêt, de votre questionnaire de santé et/ou médical, et de votre profession. Les calculs et solutions indiqués ne revêtent aucun caractère contractuel et ne sont en aucun cas une offre de prêt. Seuls les banques et organismes de financement sont habilités à accorder un financement. Pour tout crédit immobilier, vous êtes protégés par un délai de réflexion de 10 jours. Aucun versement de quelque nature que ce soit ne peut être exigé d'un particulier avant l'obtention d'un ou de plusieurs prêts d'argent. L'achat est subordonné à l'obtention du prêt. S'il n'est pas obtenu, le vendeur doit rembourser les sommes versées. Un crédit vous engage et doit être remboursé. Vérifiez vos capacités de remboursement avant de vous engager.

Cette annonce vous intéresse ?

Prenez contact avec Miguel Martins Clara (EI)

Miguel Martins Clara

Agent commercial en immobilier immatriculé au RSAC de SAVERNE sous le n°932190986


ou

Autres annonces à découvrir...

Logo La Fédération de l’Immobilier

La Fédé de l’Immo rassemble des agences immobilières indépendantes qui ont choisi d’adhérer à un modèle plus collaboratif, plus puissant et plus moderne. Ici, chaque agence reste indépendante. Mais aucune n’est isolée. En rejoignant La Fédé de l’Immo, les agences mutualisent leurs outils, leur visibilité et leurs opportunités, tout en conservant leur identité locale.

Coordonnées du siège

La Fédération de l’Immobilier
34 avenue des Champs Elysées
Paris, 75008 (France)
+33 3 88 62 97 69
contact@lafede.immo

Chaque Membre de la Fédération est juridiquement et financièrement indépendant.

Filtres SVG
Logo La Fédération de l’Immobilier Logo La Fédération de l’Immobilier La Fédération de l’Immobilier

En poursuivant votre navigation sur ce site, vous acceptez l'utilisation de Cookies pour mesurer l'audience de notre site.

En savoir plus