Description

85 m²
373 m²
4 pièces
3 chambres
1 garage

Entre Bize-Minervois et Narbonne

Un emplacement recherché, du plain-pied et une vraie qualité de vie entre Minervois et Narbonne.

Imaginez-vous ouvrir vos volets le matin et profiter d’une belle lumière naturelle dans votre séjour exposé à l’est… Ici, la journée commence en douceur.

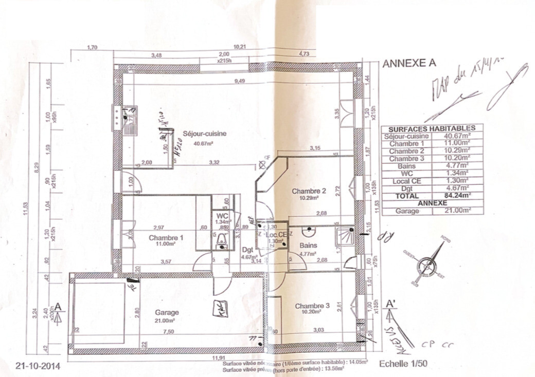
Située au Somail, dans un secteur particulièrement apprécié pour sa position stratégique entre Bize-Minervois et Narbonne, cette maison de plain-pied développe 85 m² habitables pensés pour une vie simple et confortable.

Le séjour lumineux constitue le cœur de la maison, un espace convivial où l’on partage les moments du quotidien. Les trois chambres permettent d’accueillir une famille, de recevoir ou d’aménager un bureau selon vos besoins.

À l’extérieur, le terrain de 373 m² offre suffisamment d’espace pour profiter des beaux jours sans contrainte d’entretien excessive. Terrasse, coin détente, espace pour les enfants… chacun y trouve sa place.

Le garage de 21 m² est un véritable atout : stationnement sécurisé, rangement, atelier… un confort appréciable au quotidien.

Son autre point fort, et non des moindres : la localisation. Entre Narbonne et le Minervois, avec les commerces et le collège à proximité, vous profitez d’un cadre agréable tout en restant connecté aux axes principaux. Un équilibre rare entre tranquillité et praticité.

Que ce soit pour une résidence principale ou un projet de vie au soleil, cette maison offre une base saine et fonctionnelle dans un secteur recherché.

Pour plus d’informations ou pour organiser une visite, contactez-moi.
Les maisons de plain-pied bien situées sur ce secteur partent rapidement.

Les informations sur les risques auxquels ce bien est exposĂ© sont disponibles sur le site GĂ©orisques : www.georisques.gouv.fr

Caractéristiques

Honoraires charge
mandant
Type
maison
État général
à rafraîchir
Environnement
lotissement
Orientation
Sud
Disponibilité
immédiate
Construction
2015
Surface totale
106 m²
Surface terrain
373 m²
Surface habitable
85 m²
Nb. chambres
3
Nb. salles d'eau
1
Nb. cuisines
1
Nb. garages
1
Nb. parking
1
Types de cuisine
équipement de base
Chauffages
clim réversible et poêle à granulés
Terrasse
Tout à l'égout
Taxe foncière
1 000,00 €
Panneaux solaires

Télécharger le barème des honoraires

Localisation Le Somail Ă  Saint Nazaire, 11120

DécouvrirLa ville

DécouvrirLe quartier

Présentation vidéo du quartier

Tous les outils pour vos projets immobiliers

Découvrez Mon CID,

mon compagnon immobilier digital

Accès à toutes les ventes immobilières,

boussole à réalité augmentée,

tester le débit de votre futur achat,

calculatrice de mensualité, etc.

Application mobile disponible sur

En savoir plus

Plans

Performance énergétique

logement extrĂŞmement performant
bâtiment performantpassoire énergétique
  • A< 7069kWh/m².an2 *kg CO2/m².an
  • B70 - 110
  • C110 - 180
  • D180 - 250
  • E250 - 330
  • F330 - 420
  • G> 420
logement extrĂŞmement peu performant

* Dont émissions de gaz à effet de serre

peu d'émissions de CO2
  • A< 62kg CO2/m².an
  • B6 - 11
  • C11 - 30
  • D30 - 50
  • E50 - 70
  • F70 - 100
  • G> 100
émissions de CO2 très importantes

Estimation des dépenses annuelles d'énergie pour un usage standard

entre 520 € et 770 € / an *

* Prix moyens des énergies indexés pour l'année 2023 (abonnement compris).

Simulation de prĂŞt

€
€
(10% du prix du bien)
%
(taux moyen hors assurance)

Montant estimé

1056 € / mois *

* Calculs effectués sur la base d'un prêt à taux fixe de 3,32% sur une durée de 25 ans avec un apport de 10% et hors assurance. Le coût de l'assurance de prêt dépend du capital assuré, de votre âge, de la durée du prêt, du taux d'intérêt du prêt, de votre questionnaire de santé et/ou médical, et de votre profession. Les calculs et solutions indiqués ne revêtent aucun caractère contractuel et ne sont en aucun cas une offre de prêt. Seuls les banques et organismes de financement sont habilités à accorder un financement. Pour tout crédit immobilier, vous êtes protégés par un délai de réflexion de 10 jours. Aucun versement de quelque nature que ce soit ne peut être exigé d'un particulier avant l'obtention d'un ou de plusieurs prêts d'argent. L'achat est subordonné à l'obtention du prêt. S'il n'est pas obtenu, le vendeur doit rembourser les sommes versées. Un crédit vous engage et doit être remboursé. Vérifiez vos capacités de remboursement avant de vous engager.

Cette annonce vous intĂ©resse ?

Prenez contact avec Ludovic Pagliasso-Alcaraz (EI)

Ludovic Pagliasso-Alcaraz

Agent commercial en immobilier immatriculé au RSAC de Narbonne sous le n°890520240

Développeur d'équipe Titan de bronze 2023/2024
Ventes Titan de bronze 2023/2024
Développeur d'équipe Titan de bronze 2024/2025
Ventes Titan d'or 2024/2025

ou

Autres annonces à découvrir...

Logo La Fédé de l'Immo

La Fédé de l’Immo rassemble des agences immobilières indépendantes qui ont choisi d’adhérer à un modèle plus collaboratif, plus puissant et plus moderne. Ici, chaque agence reste indépendante. Mais aucune n’est isolée. En rejoignant La Fédé de l’Immo, les agences mutualisent leurs outils, leur visibilité et leurs opportunités, tout en conservant leur identité locale.

Coordonnées du siège

La Fédé de l'Immo

(France)

Chaque Membre de la Fédération est juridiquement et financièrement indépendant.

Filtres SVG
Logo La Fédé de l'Immo Logo La Fédé de l'Immo La Fédé de l'Immo

En poursuivant votre navigation sur ce site, vous acceptez l'utilisation de Cookies pour mesurer l'audience de notre site.

En savoir plus