Description

76,82 m²
3 pièces
2 chambres

Située au cœur du village de Saissac, à proximité immédiate des commerces (boulangerie, épicerie, petit supermarché), de l’école, de la mairie, des restaurants et du château, cette charmante maison de village offre une surface habitable de 76 m², complétée par une cave aménagée, pour un total d’environ 104 m².

La maison a bénéficié de travaux importants en 2020 : électricité, plomberie et isolation refaites à neuf. Elle dispose de menuiseries en double vitrage, de la fibre optique et d’un chauffage électrique très peu utilisé grâce à un poêle à pellets.

L’intérieur est bien agencé avec :

Une cuisine équipée

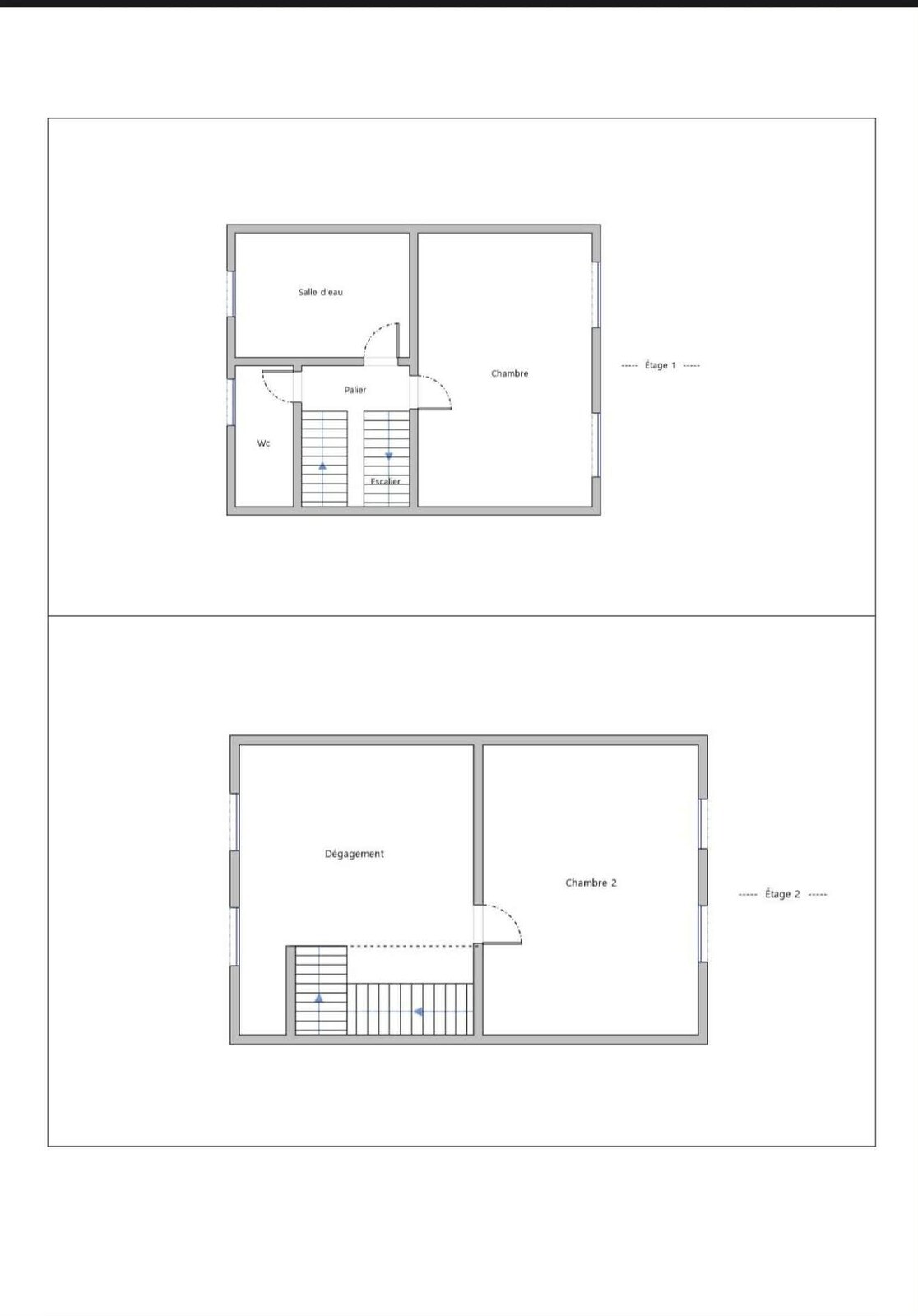
Deux chambres avec dressing, chacune avec lit et télévision

Un dégagement de 12 m² au dernier étage

Une salle d’eau en excellent état, bien équipée

Parquet stratifié dans toute la maison

Le sous-sol aménagé offre un espace supplémentaire avec du matériel de sport inclus dans la vente et dispose d’un accès direct vers l’extérieur.

La toiture est en très bon état (environ 20 ans).
Un parking public est situé juste devant la maison, facilitant le stationnement.

Taxe foncière : 731 €

Une maison idéale pour une résidence principale, secondaire ou un investissement locatif dans un village dynamique et touristique.

Les informations sur les risques auxquels ce bien est exposé sont disponibles sur le site Géorisques : www.georisques.gouv.fr

Caractéristiques

Honoraires charge
mandant
Type
maison
État général
très bon
Environnement
village
Orientation
Nord
Disponibilité
à l'acte
Rénovation
2020
Surface totale
104,9 m²
Surface habitable
76,82 m²
Nb. chambres
2
Nb. salles de bains
0
Nb. salles d'eau
1
Nb. cuisines
1
Types de cuisine
équipée
Chauffages
électricité et poêle à granulés
Meublé
Sous-sol
Cave
Tout à l'égout
Taxe foncière
731,00 €

Télécharger le barème des honoraires

Localisation Saissac, 11310

Pour des raisons de confidentialité, la géolocalisation de ce bien a été dégradée.

Tous les outils pour vos projets immobiliers

Découvrez Mon CID,

mon compagnon immobilier digital

Accès à toutes les ventes immobilières,

boussole à réalité augmentée,

tester le débit de votre futur achat,

calculatrice de mensualité, etc.

Application mobile disponible sur

En savoir plus

Performance énergétique

logement extrêmement performant
bâtiment performantpassoire énergétique
  • A< 70
  • B70 - 110
  • C110 - 180165kWh/m².an6 *kg CO2/m².an
  • D180 - 250
  • E250 - 330
  • F330 - 420
  • G> 420
logement extrêmement peu performant

* Dont émissions de gaz à effet de serre

peu d'émissions de CO2
  • A< 6
  • B6 - 116kg CO2/m².an
  • C11 - 30
  • D30 - 50
  • E50 - 70
  • F70 - 100
  • G> 100
émissions de CO2 très importantes

Estimation des dépenses annuelles d'énergie pour un usage standard

entre 1 190 € et 1 660 € / an *

* Prix moyens des énergies indexés pour l'année 2022 (abonnement compris).

Simulation de prêt

(10% du prix du bien)
%
(taux moyen hors assurance)

Montant estimé

563 € / mois *

* Calculs effectués sur la base d'un prêt à taux fixe de 3,43% sur une durée de 25 ans avec un apport de 10% et hors assurance. Le coût de l'assurance de prêt dépend du capital assuré, de votre âge, de la durée du prêt, du taux d'intérêt du prêt, de votre questionnaire de santé et/ou médical, et de votre profession. Les calculs et solutions indiqués ne revêtent aucun caractère contractuel et ne sont en aucun cas une offre de prêt. Seuls les banques et organismes de financement sont habilités à accorder un financement. Pour tout crédit immobilier, vous êtes protégés par un délai de réflexion de 10 jours. Aucun versement de quelque nature que ce soit ne peut être exigé d'un particulier avant l'obtention d'un ou de plusieurs prêts d'argent. L'achat est subordonné à l'obtention du prêt. S'il n'est pas obtenu, le vendeur doit rembourser les sommes versées. Un crédit vous engage et doit être remboursé. Vérifiez vos capacités de remboursement avant de vous engager.

Cette annonce vous intéresse ?

Prenez contact avec Romain Duthoit (EI)

Romain Duthoit

Agent commercial en immobilier immatriculé au RSAC de CARCASSONNE sous le n°994656437


ou

Logo La Fédération de l’Immobilier

La Fédé de l’Immo rassemble des agences immobilières indépendantes qui ont choisi d’adhérer à un modèle plus collaboratif, plus puissant et plus moderne. Ici, chaque agence reste indépendante. Mais aucune n’est isolée. En rejoignant La Fédé de l’Immo, les agences mutualisent leurs outils, leur visibilité et leurs opportunités, tout en conservant leur identité locale.

Coordonnées du siège

La Fédération de l’Immobilier
34 avenue des Champs Elysées
Paris, 75008 (France)
+33 3 88 62 97 69
contact@lafede.immo

Chaque Membre de la Fédération est juridiquement et financièrement indépendant.

Filtres SVG
Logo La Fédération de l’Immobilier Logo La Fédération de l’Immobilier La Fédération de l’Immobilier

En poursuivant votre navigation sur ce site, vous acceptez l'utilisation de Cookies pour mesurer l'audience de notre site.

En savoir plus