Description

66 m²
3 pièces
2 chambres
1 sdb

-"Sous Offre"-
Spéciale investisseurs à Hœnheim – Appartement T3 de 66 m² traversant en rez-de-chaussée haut, climatisée avec balcon et parking – Appartement loué – Proche tram B –
Situé rue d’Andlau à Hœnheim, dans une résidence avec ascenseur, découvrez cet appartement 3 pièces de 66 m² Carrez climatisée (70m² au total avec la loggia), actuellement loué, idéal pour un investissement locatif sécurisé.
Situé à proximité du tram B (station Le Ried), des bus, des commerces de proximité, supermarchés, écoles et services (crèche, restaurant, …). L’appartement bénéficie d’un emplacement pratique permettant de rejoindre rapidement Strasbourg centre et les principaux axes routiers.
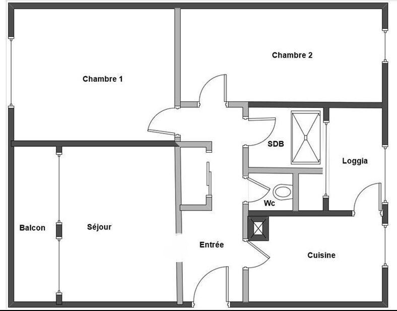
L’appartement est en rez-de-chaussée haut d’un immeuble de 7 étages avec ascenseur et se compose :
D’une entrée, d’un séjour avec accès au balcon, de deux chambres (15,5m² et 12,5m²), d’une cuisine indépendante avec accès à la loggia, d’une salle de bains et d’un WC séparé.
Le bien dispose également d’un emplacement de parking privatif, d’un balcon de 5,4 m² offrant un espace extérieur agréable avec vue sur un grand parc et d’une cave.
La copropriété possède aussi une local vélo et un local poubelle.
L’appartement nécessite une remise au goût du jour, offrant un potentiel de valorisation intéressant.
Le ravalement et l’isolation extérieur a été effectué, ainsi que la réfection des parties communes
Situation locative : le loyer mensuel hors charges est de 746 €/mois, vous garantissant un bon rendement locatif brute. Ce bien représente ainsi une opportunité d’investissement locatif avec un locataire en place.
Les charges annuelles s'élèvent à 2911€ et comprennent le chauffage, l'eau chaude, l'eau froide, ainsi que l'entretien des parties communes et des espaces verts. Ces services assurent un confort quotidien et un cadre de vie soigné.
Cet appartement séduit par son emplacement, sa tranquillité et le bon entretien de la copropriété.
Plus d’information et votre visite exclusive sur RDV téléphonique.

Les informations sur les risques auxquels ce bien est exposé sont disponibles sur le site Géorisques : www.georisques.gouv.fr

Caractéristiques

Honoraires charge
mandant
Type
appartement
État général
à rafraîchir
Environnement
urbain
Disponibilité
à l'acte
Construction
1970
Surface totale
70 m²
Surface habitable
66 m²
Étage
0
Floor count
7
Nb. chambres
2
Nb. salles de bains
1
Nb. cuisines
1
Nb. parking
1
Nb. balcons
1
Types de cuisine
équipée
Chauffages
gaz
Chauffage collectif
Parking privé
Cave
Ascenseur
Tout à l'égout
Bien soumis au statut de la copropriété
Procédure en cours
aucune
Charges budget prévisionnel annuel
2 910,00 €
Nb. de logements
144
Nb. de lots
432

Télécharger le barème des honoraires

Localisation Hoenheim, 67800

Tous les outils pour vos projets immobiliers

Découvrez Mon CID,

mon compagnon immobilier digital

Accès à toutes les ventes immobilières,

boussole à réalité augmentée,

tester le débit de votre futur achat,

calculatrice de mensualité, etc.

Application mobile disponible sur

En savoir plus

Plans

Performance énergétique

logement extrêmement performant
bâtiment performantpassoire énergétique
  • A< 70
  • B70 - 110
  • C110 - 180
  • D180 - 250183kWh/m².an39 *kg CO2/m².an
  • E250 - 330
  • F330 - 420
  • G> 420
logement extrêmement peu performant

* Dont émissions de gaz à effet de serre

peu d'émissions de CO2
  • A< 6
  • B6 - 11
  • C11 - 30
  • D30 - 5039kg CO2/m².an
  • E50 - 70
  • F70 - 100
  • G> 100
émissions de CO2 très importantes

Estimation des dépenses annuelles d'énergie pour un usage standard

entre 970 € et 1 380 € / an *

* Prix moyens des énergies indexés pour l'année 2023 (abonnement compris).

Simulation de prêt

(10% du prix du bien)
%
(taux moyen hors assurance)

Montant estimé

618 € / mois *

* Calculs effectués sur la base d'un prêt à taux fixe de 3,37% sur une durée de 25 ans avec un apport de 10% et hors assurance. Le coût de l'assurance de prêt dépend du capital assuré, de votre âge, de la durée du prêt, du taux d'intérêt du prêt, de votre questionnaire de santé et/ou médical, et de votre profession. Les calculs et solutions indiqués ne revêtent aucun caractère contractuel et ne sont en aucun cas une offre de prêt. Seuls les banques et organismes de financement sont habilités à accorder un financement. Pour tout crédit immobilier, vous êtes protégés par un délai de réflexion de 10 jours. Aucun versement de quelque nature que ce soit ne peut être exigé d'un particulier avant l'obtention d'un ou de plusieurs prêts d'argent. L'achat est subordonné à l'obtention du prêt. S'il n'est pas obtenu, le vendeur doit rembourser les sommes versées. Un crédit vous engage et doit être remboursé. Vérifiez vos capacités de remboursement avant de vous engager.

Cette annonce vous intéresse ?

Prenez contact avec Simon Wurtz (EI)

Simon Wurtz

Agent commercial en immobilier immatriculé au RSAC de Strasbourg sous le n°832720676

Ventes Titan de bronze 2023/2024
Ventes Titan de bronze 2024/2025

ou

Autres annonces à découvrir...

Logo La Fédération de l’Immobilier

La Fédé de l’Immo rassemble des agences immobilières indépendantes qui ont choisi d’adhérer à un modèle plus collaboratif, plus puissant et plus moderne. Ici, chaque agence reste indépendante. Mais aucune n’est isolée. En rejoignant La Fédé de l’Immo, les agences mutualisent leurs outils, leur visibilité et leurs opportunités, tout en conservant leur identité locale.

Coordonnées du siège

La Fédération de l’Immobilier
34 avenue des Champs Elysées
Paris, 75008 (France)
+33 3 88 62 97 69
contact@lafede.immo

Chaque Membre de la Fédération est juridiquement et financièrement indépendant.

Filtres SVG
Logo La Fédération de l’Immobilier Logo La Fédération de l’Immobilier La Fédération de l’Immobilier

En poursuivant votre navigation sur ce site, vous acceptez l'utilisation de Cookies pour mesurer l'audience de notre site.

En savoir plus