Description

141 m²
6 pièces
2 chambres
1 sdb

Aux Églises-d'Argenteuil, maison de village de 141 m², deux chambres, cuisine équipée, salle d'eau et wc au rez-de-chaussée et à l'étage, possibilité troisième chambre au rez-de-chaussée.
Cuisine aménagée, poêle à pellets
Deux places de parking, terrasse et petit jardin.

Les informations sur les risques auxquels ce bien est exposé sont disponibles sur le site Géorisques : www.georisques.gouv.fr

Caractéristiques

Honoraires charge
mandant
Type
maison
État général
à rafraîchir
Environnement
village
Disponibilité
à l'acte
Surface habitable
141 m²
Nb. chambres
2
Nb. salles de bains
1
Nb. salles d'eau
1
Nb. cuisines
1
Nb. parking
2
Types de cuisine
aménagée
Chauffages
électricité
Terrasse
Fosse septique (ANC)

Télécharger le barème des honoraires

Tous les outils pour vos projets immobiliers

Découvrez Mon CID,

mon compagnon immobilier digital

Accès à toutes les ventes immobilières,

boussole à réalité augmentée,

tester le débit de votre futur achat,

calculatrice de mensualité, etc.

Application mobile disponible sur

En savoir plus

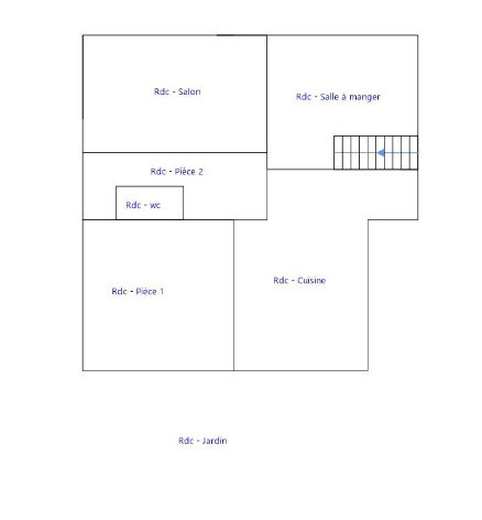
Détail des pièces

Entrée 16 m²
SALON 21 m²
CUISINE 23 m²
Pièce 17 m²
salle d'eau 2,3 m²

Chambre
Chambre 23 m²
salle de Bains 8 m²
Toilettes 1 m²

Performance énergétique

logement extrêmement performant
bâtiment performantpassoire énergétique
  • A< 70
  • B70 - 110
  • C110 - 180167kWh/m².an6 *kg CO2/m².an
  • D180 - 250
  • E250 - 330
  • F330 - 420
  • G> 420
logement extrêmement peu performant

* Dont émissions de gaz à effet de serre

peu d'émissions de CO2
  • A< 6
  • B6 - 116kg CO2/m².an
  • C11 - 30
  • D30 - 50
  • E50 - 70
  • F70 - 100
  • G> 100
émissions de CO2 très importantes

Estimation des dépenses annuelles d'énergie pour un usage standard

entre 1 800 € et 2 500 € / an *

* Prix moyens des énergies indexés pour l'année 2021 (abonnement compris).

Simulation de prêt

(10% du prix du bien)
%
(taux moyen hors assurance)

Montant estimé

671 € / mois *

* Calculs effectués sur la base d'un prêt à taux fixe de 3,43% sur une durée de 25 ans avec un apport de 10% et hors assurance. Le coût de l'assurance de prêt dépend du capital assuré, de votre âge, de la durée du prêt, du taux d'intérêt du prêt, de votre questionnaire de santé et/ou médical, et de votre profession. Les calculs et solutions indiqués ne revêtent aucun caractère contractuel et ne sont en aucun cas une offre de prêt. Seuls les banques et organismes de financement sont habilités à accorder un financement. Pour tout crédit immobilier, vous êtes protégés par un délai de réflexion de 10 jours. Aucun versement de quelque nature que ce soit ne peut être exigé d'un particulier avant l'obtention d'un ou de plusieurs prêts d'argent. L'achat est subordonné à l'obtention du prêt. S'il n'est pas obtenu, le vendeur doit rembourser les sommes versées. Un crédit vous engage et doit être remboursé. Vérifiez vos capacités de remboursement avant de vous engager.

Cette annonce vous intéresse ?

Prenez contact avec Yves Soulard (EI)

Yves Soulard

Agent commercial en immobilier immatriculé au RSAC de Saintes sous le n°344937503


ou

Logo La Fédération de l’Immobilier

La Fédé de l’Immo rassemble des agences immobilières indépendantes qui ont choisi d’adhérer à un modèle plus collaboratif, plus puissant et plus moderne. Ici, chaque agence reste indépendante. Mais aucune n’est isolée. En rejoignant La Fédé de l’Immo, les agences mutualisent leurs outils, leur visibilité et leurs opportunités, tout en conservant leur identité locale.

Coordonnées du siège

La Fédération de l’Immobilier
34 avenue des Champs Elysées
Paris, 75008 (France)
+33 3 88 62 97 69
contact@lafede.immo

Chaque Membre de la Fédération est juridiquement et financièrement indépendant.

Filtres SVG
Logo La Fédération de l’Immobilier Logo La Fédération de l’Immobilier La Fédération de l’Immobilier

En poursuivant votre navigation sur ce site, vous acceptez l'utilisation de Cookies pour mesurer l'audience de notre site.

En savoir plus